▼项目概览,project overview
HAKUNA MATATA “I say HAKUNA .I say MATATA”.简单上口的非洲谚语,回忆起儿时动漫的场景。无忧无虑,没有烦恼。这是MATATA想传递的精神。
HAKUNA MATATA “I say HAKUNA .I say MATATA”. Simple and catchy African proverb recalls me of the cartoons scenes which I watched in my childhood . No worries, no problems, which is just the spirit that MATATA wants to convey.
黑色肌理贯穿整个空间,虚化的视觉语言,空间永远担当配角,沉静优雅温和。金色与线条的点缀,附上岁月的痕迹如绅士的等待。
The black texture running through the whole space, the blurred visual language, the supporting role of the space, which are quiet, elegant and gentle. The ornament of aureate and line attach the trace of years just like a gentleman waiting for something.
酒精是否减轻了身体的密度,“轻轻的我走了,正如我轻轻的来”与酒的邂逅,形色各异的酒品期待着与你一次亲切的对话。
Does alcohol reduce the bodys density? Very quietly I take my leave as quietly as I came here. To encounter with the wine, different wines are looking forward to a closing conversation with you.
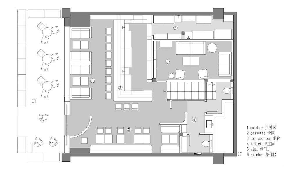
▼一层平面图,first floor plan
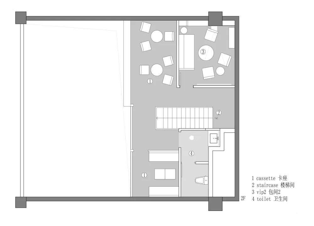
▼二层平面图,second floor plan
▼空间爆炸轴测图,the exploded axon
半遮挡的弧形墙面,将视线引入空间主题,阵列的酒品存储于高挑的酒柜中。分布散落各处的座位围绕酒柜展开。
The half block arc wall introduces the sight to the space and the arrayed wine stored in tall wine cabinet. And the scattered seats are spad out around the wine cabinet.
错落迷宫般的墙面将卫生间隐藏于楼梯旁及下部的角落空间。
Labyrinth-like walls conceal toilet at the low part of the corner at the stair side.
向上的楼梯引向较私密的包间及单座区域。
The ascending staircase leads to more private rooms and single-seater areas.
▼店铺外观,exterior view
松弛的植物隔断,围合了与室内过度的半户外空间,透过橱窗与灯光,享受户外的独有惬意。
The casual plant partition encloses the semi-outdoor space with the indoor transition where you can enjoy the unique comfortable outdoor through the window and the light.
弧形墙面将视线引入酒柜,过渡且点题。
Arc wall introduces the sight to the wine ark, which is excessive but to the point.
▼一层吧台区域,bar area on the first floor
06一层吧台区域.jpg (1.59 MB, 下载次数: 0)
2020-4-30 13:28 上传
复古的线板和罗马柱为酒吧台成列提供力量支持,金色的点缀在灯光的映衬下与琥珀晶莹的酒品交相辉映。
The line board that restores the ancient ways and Roman Columns provide the strength to support the bars array with golden decorations set against the light to complement the amber wines.
▼沙发区,sofa area
▼楼梯细部,detailed stairs
包间隐蔽在隐形门后,金色不锈钢楼梯墙板为楼梯侧面耐磨性提供保障的同时,也用同样虚化的空间处理手法,让环境成为配角。
Private rooms conceal in invisible door hind and the aureate stainless steel stair wallboard not only offers safeguard for stair flank, but also use the empty space technique to let the environment become the supporting role.
灯带在楼梯踏步和扶手的应用为轻盈的身体提供安全性。
The light belt in stair step and handrail provides safety for the light body.
▼二层座位区,seating area on the second floor
复古的线板与壁灯丰富虚化背景的细节,不至于呆板冷清。
The line board that restores the ancient ways and the wall lamps enrich the detail of dim setting, which look not so inflexible and cold.
▼酒吧卫生间,the restroom of the bar
▼细部,details
设计名称:MATATA 项目地址:四川·成都·高新区 全案设计:未見空间设计 全案-设计执行:王军、黄滤橙 项目摄影:贺川

