项目信息 项目名称 | 南宁 锦上城Loft公寓样板间单/双钥匙 硬装设计 | DESIO DESIGN 软装设计 | DESIO DESIGN 设计主创 | 张波、孙蕊 设计团队 | 陈伟、张译丹 设计时间 | 2020年08月 完工时间 | 2020年08月 空间面积 | 各60㎡ 项目摄影 | RICCI 邕城南宁,是广西省首府、北部湾城市群核心都市,亦是西南地区连接出海通道的综合交通枢纽,本次锦上城Loft公寓样板间项目便落地于南宁市西南部的江南区,紧邻双线地铁、周边设施便利,为近年快速崛起、发展的区域。
01 单钥匙 · 家也可以是奢侈品 © DÊSIO DESIGN 定位户主为服装品牌的30 女性设计师,拥有时尚独特的审美、对于面料材质极高的敏感度,并且追求简约品质的生活,所以我们此次的设计主题将家喻为一件奢侈品,一件高定单品。
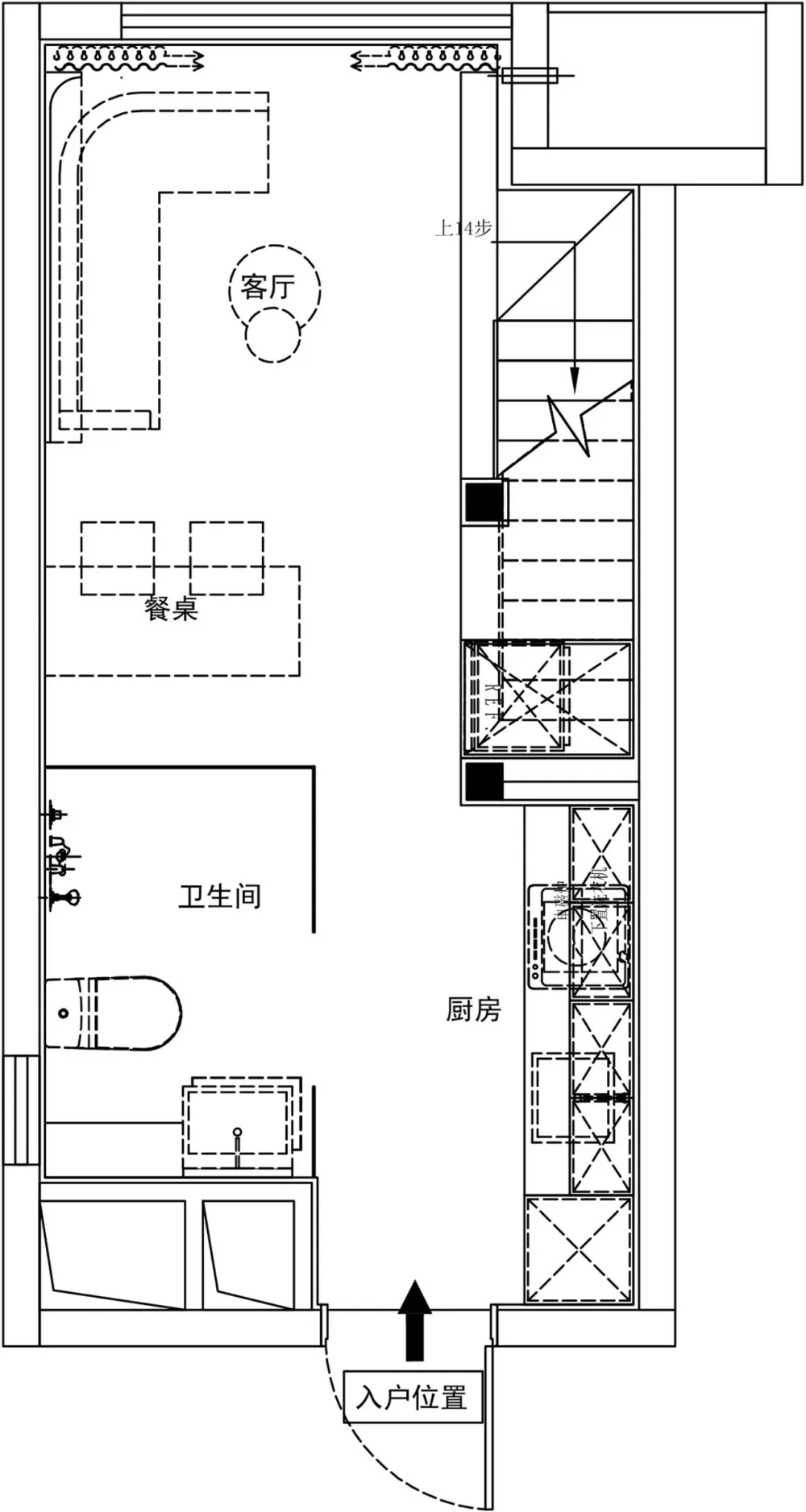
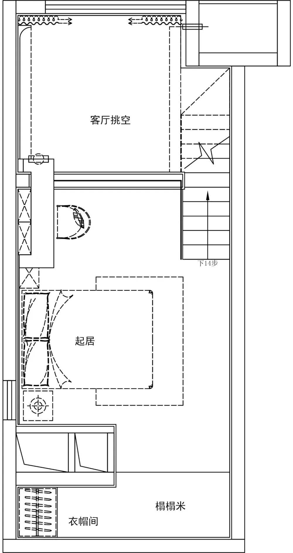
©单钥匙左一层、右二层平面图
02 双钥匙 · 蒙德里安风丨潮流亦经典 © DÊSIO DESIGN
定位双钥匙其一户主为28岁的年轻建筑师、极简主义者,崇尚简单、纯粹的生活,对于色彩有独特的自我见解,所以我们的设计主题是蒙德里安风,此种风格最为常见的元素便是红黄蓝三原色、直线与直角等,是极具个性、特色与前卫的艺术风格,本次通过硬软装近乎完美融合,得以呈现出简单有趣、色彩鲜明且带有抽象精神的家居情境。
定位双钥匙其二户主为35岁的品牌模特,工作缘由能够预测时尚趋势并引领潮流美学,我们的设计灵感来源于奢侈品牌PRADA,Miuccia Prada的独特天赋在于对新创意的不懈追求,通过寻找与传统皮料不同的新颖材质
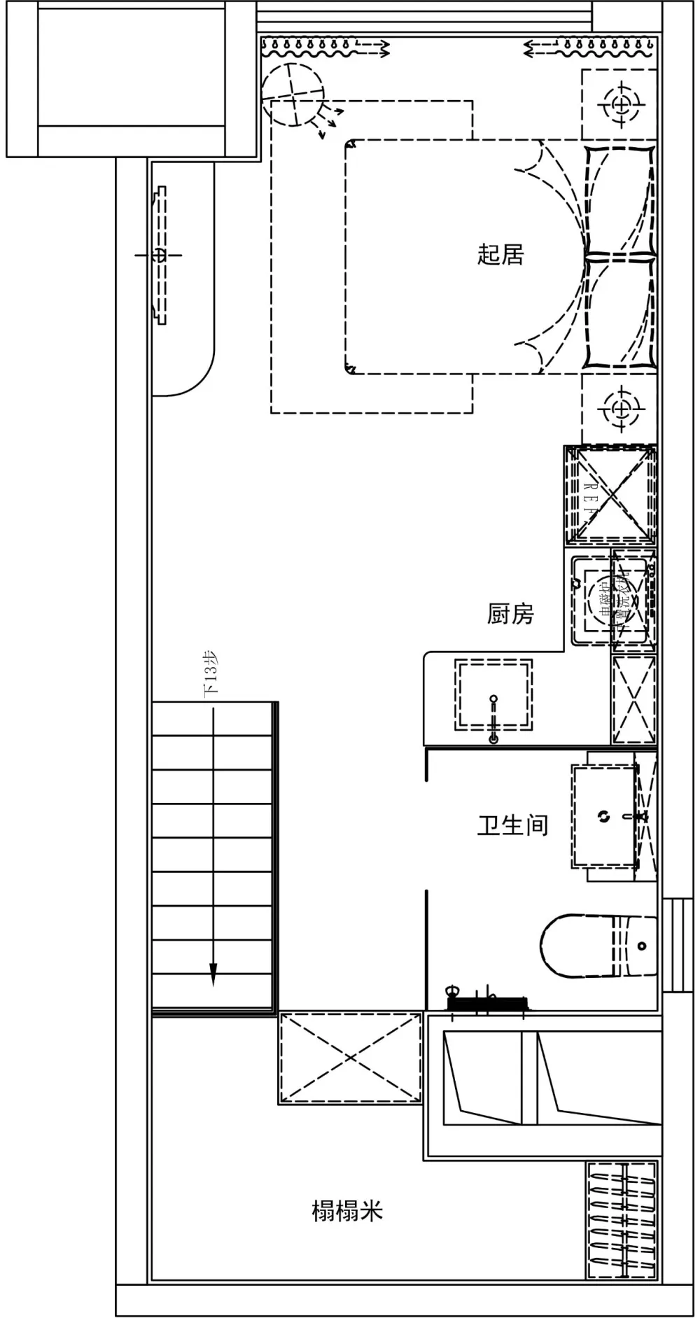
©双钥匙左一层、右二层平面图
©DESIO设计创始人 ©Sherry孙蕊


谢谢分享