总部位于巴西的事务所 Arquitetura Nacional,由 Eduardo Maurmann、Elen B.N. Maurmann 以及 Paula Otto 三人于 2010 年创立。
他们的作品尊重巴西的建筑传统,但也充满了前卫的设计理念以及实验精神。在众多作品中,他们的住宅设计尤其特别。
Arquitetura Nacional 团队合影
在巴西这样炎热潮湿的地方,阳光能照射进房间很深的地方,所以门窗设计的重要性不言而喻。为了同时保证隐私以及通风、采光,Arquitetura Nacional 经常采用独特的开合方式来做设计。
下面是他们的 6 个精选作品。
这所房子位于南里奥格兰德海岸的社区内,在周围一众普通的房子中,它的建筑外立面显得尤为独特 ▼
外立面采用了 390 个 80x80cm 的模块组件构成,材料的成分为白色水泥和玻璃纤维 ▼
这样的结构成为了建筑的外立面,可以随时开合,让不同方向的光照以及空气流通到室内当中 ▼
外立面的独特模块让光线在室内有着独特的视觉效果,另外,大量采用的水泥覆盖在天花板以及柱子当中 ▼
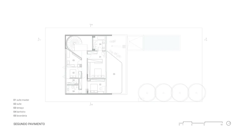
房子内的顶层还带有一个 SPA 中心,这里的设计融合了传统与现代的元素 ▼
隐藏式的门打开以后里面是一个按摩间 ▼
在构件上开的空洞,也让其能同时保证隐私与视野 ▼
入户门前的天花板采用了木条材料,墙面则是倾斜成一个角度,让进入室内的过程中拥有了一种直觉感以及仪式感 ▼
室内空间大部分都采用了开放式的设计,并且搭配上绿植,整体的氛围温馨而且具有热带风情 ▼
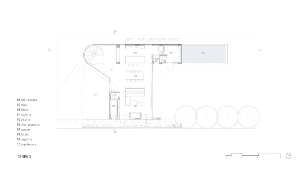
泳池、露台与客厅餐厅等起居空间相连 ▼
白色是整个空间主要的基调,而天花板采用的条木则进一步增强室内外一体化的视觉效果以及空间的分区 ▼
这栋非常酷的住宅,材料以混凝土、黑色木材为主,有一种雕塑的美感 ▼
除了房子的二层可以开合之外,在一层的外立面也同样可以打开,将房子与外部空间相结合 ▼
房子的一层还能看到大面积的带有弧度的落地玻璃窗 ▼
窗户内有一个混凝土的旋转楼梯 ▼
室内的这个空间还有一个小庭院,增强了整个空间的自然感受 ▼
这是一个正在建设中的住宅设计,整个房子的构造非常奇特,以木条为住的外立面为其赋予了一种独特的秩序感。
其外立面的开合方式非常丰富 ▼
房子的内部有一个开放的庭院设计,带有一个弧形水池以及一棵树木 ▼
房子的二层外立面开合的状态 ▼
一层采用了大面积的落地玻璃窗,增强了室内与室外空间的连接 ▼
这栋房子位于空旷的平原上,可以享受到几乎只属于自己的风景。
房子的建筑结构示意图 ▼
房子的外立面材料与色彩非常丰富而且充满对比 ▼
同样采用了可开合的条木门 ▼
房子带有一个游泳池,并且泳池还带有一个滑轨的盖子,可以根据需求将泳池开放或者关闭 ▼
这栋海滨别墅有着秩序感十足的体块,并且自然材料凸显出其干净的外观 ▼
外立面通过开合可以控制采光以及室内外的连接感 ▼
开放式的室内布局让空间更加宽广 ▼
近乎全白的室内设计干净、明亮,充满生活的美好气息 ▼
独特的开合设计同样在厨房中可以看到,不用时能将厨具电器隐藏起来 ▼
另一边的墙面上设置了储物柜 ▼

