无论是在空间的切割还是色彩的运用方面,
都能在我们设计小户型时,提供很多可以参考的灵感和创意。
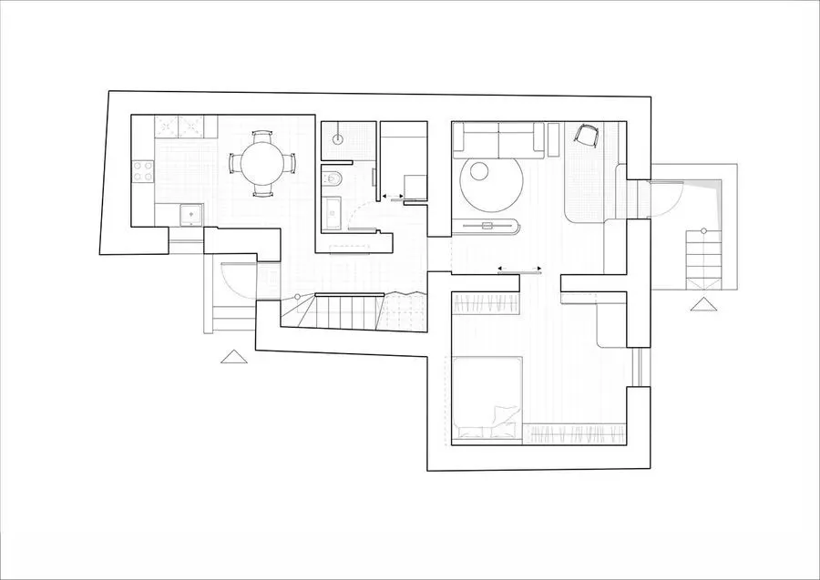
设计:LIS设计工作室
设计:LIS设计工作室
项目面积:67.4平方米
版权声明:本文内容由用户自行发布上传或投稿由设计芝士代为发布,版权归原作者所有,设计芝士不拥有其著作权,亦不承担相应法律责任。如果您发现本站中有涉嫌抄袭或侵权的内容,请点此提交工单进行举报,一经查实,本站将立刻删除涉嫌侵权内容。

