 
 
“当技术实现了它的真正使命,它就升华为艺术”
MEI JI FILE 柒合设计 \ 视界张弛,游梦为境 中国 . 宁波
TRANQUILITY / WARMTH / MINIMALIST
AESTHETICS / CHINA
 
 
Form comes from function.
[美] 沙利文(Sullivan)
柒合设计是位于宁波一家新锐设计师组成的设计团队,他们的作品持续一贯的现代简约风格,呈现满满高级质感,层次丰富干净利落,时尚又不失品味。
Qihe Design is a design team composed of up-and-coming designers in Ningbo. Their works continue to have a consistent modern and simple style, psenting a high-end texture, rich and clean, stylish and tasteful.
 
 
DESIGN DESCRIPTION
对于空间的思索,源于理性主义与感性主义的结合。想象力给予生活更多启迪,它使我们既脱离过去,也脱离当代,它始终面对未来开放。一如此宅,光影、素色、仙人掌的组合……让人置身于一种素雅朴质的哲学里。
The thinking about space originates from the combination of rationalism and perceptualism. Imagination gives more enlightenment to life. It makes us divorce from the past and the psent. It is always open to the future. In such a house, the combination of light and shadow, plain color, and cactus… makes people feel in a simple and simple philosophy.
 
 
 
 
 
 
一个空间一旦变得独立自主以后,它就有了一个新的起点。从根本上说,现象学终结过去,而面对新颖。去掉窗帘、电视柜、吊灯,以及多余的一切,将以往的经验全都遗忘之后,我们发现了新的视界。
Once a space becomes independent, it has a new starting point. Fundamentally speaking, phenomenology ends the past and faces novelty. After removing the curtains, TV cabinets, chandeliers, and everything superfluous, and forgetting all the past experiences, we discovered a new horizon.
 
 
 
 
 
 
 
 
棉麻的材质给人更多舒适的触感,舒雅的色调让空间回归宁静的想象。将所有的光线藏起,“见光而不见灯”的设计是对于人最舒适的顾及。
The material of cotton and linen gives people a more comfortable touch, and the comfortable tones make the space return to the quiet imagination. Hiding all the light, the design of seeing the light but not the light is the most comfortable consideration for people.
 
 
 
 
 
 
 
 
优雅的曲线与柔和的空间相互交叠,此间居所展示了一种强大的融合力量。将人的思想、回忆和梦想融合在一起。过去、现在与未来,融入生活,融化于丰裕物质的温柔之中。
Elegant curves and soft spaces overlap each other, and this residence shows a powerful fusion power. Fuse peoples thoughts, memories and dreams together. The past, psent and future are integrated into life and melted in the tenderness of abundant material.
 
 
 
 
 
 
于想象之中,呈现前所未有的纯粹。让内心映射时间的意义,从而在某种意义上获得对于房间体积的新意识。
In imagination, it psents unpcedented purity. Let the heart reflect the meaning of time, so as to gain a new awareness of the volume of the room in a certain sense.
 
 
 
 
精致与简约的哲学表达,让我们更加清晰的认识到自己的内心空间,并为我们的内心空间确定位置。寂静、沉默、博智之中,打动我们存在的深处,重新赋予我们幻想的情境。
The exquisite and simple philosophical expssion allows us to recognize our inner space more clearly and determine the position of our inner space. The silence, silence, and wisdom touches the depths of our existence and re-gives us a fantasy situation.
 
 
 
 
 
 
 
 
 
 
若想要体验居住功能的形象,就不应该为外在的美丽所引诱。外表会打乱关于内心空间的沉思。在沉思中重新产生心中对静观所引起的共鸣,从而增大广阔的想象。
If you want to experience the image of residential functions, you should not be seduced by external beauty. Appearance disrupts contemplation about inner space. In the meditation, regenerate the resonance in the mind for contemplation, thereby increasing the broad imagination.
 
 
 
 
 
 
 
 
 
 
 
 
亦如朱尔•瓦莱斯所说:空间总是让我沉静下来。
As Jules Valles said: Space always calms me down.
DRAWING PRESENTATION
 
 
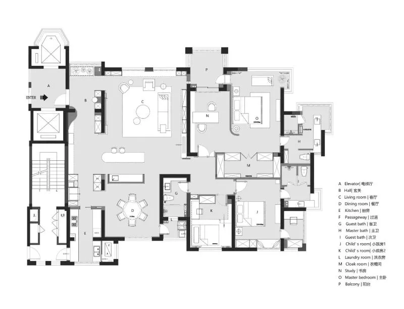
– Name | 项目名称 –
吴先生的宅
– Co-creative Design | 联合主创设计 –
张湖杰 . 姜克文
-Project Name | 项目地点 –
浙江 . 宁波
– Area | 项目面积 –
258 ㎡
– Project time|项目时间 –
2021年
 
 
柒合设计事务所成立于2017年7月,致力于研究室内设计的原创和独立为发展方向,团队成员拥有扎实的专业知识以及丰富的创意美学。柒合设计追寻当代美学,探索设计美学,为呈现空间的张力和协调,让人感受内在的安宁。
Qihe Design Office was established in July 2017, dedicated to researching the originality and independence of interior design as the development direction. The team members have solid professional knowledge and rich creative aesthetics. Qihe Design pursues contemporary aesthetics, explores design aesthetics, in order to psent the tension and coordination of the space, and let people feel the inner peace.
我们致力于打造每个空间的实景落地,一直坚持不断创新,力求生活与设计情怀的最佳契合。
We are committed to creating the reality of each space, always insisting on continuous innovation, and striving for the best fit between life and design feelings.
内容策划 / Presented
策划 Producer :Mei Ji File
撰文 Writer:Long 排版 Editor:W/fei
图片版权 Copyrig


