红瓦黄墙的东欧古建筑群,穿城而过的伏尔塔瓦河,仿佛一个古老的童话世界,实则是被尼采称之为“神秘”的布拉格小镇独有的风情,电影《布拉格之恋》又为其打上浓浓的爱情烙印。
当这一切在丽水的南明湖畔落地开花,便促成了中南锦时布拉格项目的诞生。壹舍设计受邀操刀其商业 住宅样板间,因势沿袭布拉格小镇的生活理念与运营模式,并以此为基础,提取坚贞爱情象征的水晶元素,力求打造集品质与奢华为一体的宜商宜居之所。
“在确立构筑商业店铺 住宅样板间的复合业态类型时,设计团队对项目进行了前期分析论证及实地调研考察,认为妥善把控二者的平衡是设计思考的重点与难点:既要求保证各自的特色与定位,又要兼顾整体的统一相融,以及一脉相承的舒适与品质。” 设计师方磊解释道。
规划的商业架构以水晶为主角,设计团队仔细梳理了功能分区与动线关系,旨在呈现宛如奢侈品店的情景氛围。同时又遵循商业设计所要表达的商业逻辑,搭建多元、全方位的展陈形式,并有效利用夹层设置互通、错层的视觉,预设洽谈区与水吧台,进一步提升商业服务质量,强化访客体验。
入户以高挑空营造恢宏气势,墙面采用素色壁布铺就,内嵌金属分割条,并以内凹的造型手法设置大面积展示区。结合品牌墙及顶面吊灯,无处不彰显着水晶的主角地位,为访客带来全方位的立体观感。
壁布一路向右侧延伸,垭口上方覆以夹丝玻璃所构筑成的立面,与墙体良好互衬,一种别样的高级灰质感扑面而来。同时采用各式橱窗、展示柜,搭配水晶衍生品进行陈列,材料、肌理与色泽于此交织对照,达成丰富意义的消费体验,为空间赋予更多的商业价值。
洽谈区是展示区向吧台的过渡,在硬朗的基调中,注重选用带有圆弧型的家具、灯具及陈设饰品,以及自带温润触感的布料使其更显柔软与舒缓。
于一楼架设夹层,合理规划老板及员工的办公区,进一步满足其商业性需求。摒弃一切复杂、花哨与繁冗,结合夹丝玻璃的通透与贯穿始终的线条感,展现时尚不失精细、简约但不简单的海归精英办公室。
移步向下,B1层楼梯口设立水晶钻石造型的陈列品,彰显其非凡的地位。
水吧台、西厨、餐厅随即映入眼帘,三者巧妙联合又各有特色。木饰面、大理石及金属的有效配比,在光线映衬下,传达出一种年轻化且富有时尚感的轻奢气质。
餐厅处的挑空极具广阔的视觉效果,纵横两端的延展给予空间丰富层次,墙面的展陈区则带来几分新潮与艺术美,低调奢华之感呼之欲出。
为了增加商业互动性,B1夹层设置水晶饰品手工体验区及珍品展示区。专业的道具既是见证水晶饰品制作全过程的DIY工具,又可作为墙面及桌面装置充实工艺调性。
背后的珍品展示区则由大小各异、高低错落的格架组成,配以灯带点缀,以穿插、通透实现区域间的互动关系,打破了常规的沉闷,极具美感与趣味性。
生活区延续楼下商业空间的设计手法,在材料类型、质感、色彩等选择上,注重融合统一,着力打造更加舒适与温馨的憩息之地,这也是对一贯的克制平衡之道的遵循与践行。穿过弥散布拉格风景人文气息的艺术走廊,即可进入家庭成员的卧室。
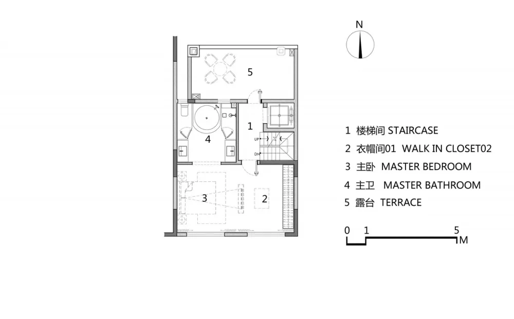
主卧套间在开放的格局中,流畅地诠释出起伏的美感,各功能分区在交错延伸中创造出丰富而统一的设计语言,尽显精致优雅的样貌。
在阳光映射下,沿用金属与玻璃材质的衣帽间,释放出干练型格与微妙张力。既凸显其本身的光泽与韵味,又保证了与套间的温暖联结。
主卫遵循对称手法,矩形体块与圆弧形态有机搭配,其背后则是依据人在场景中的功用及感受来排布。加上对细节、造型、灯光的谨慎把握,共同演绎大气格调。
次卧套间功能齐全,睡眠区注重柔软雅致,以素色铺陈室内,加入些许宝石绿妆点,沐浴在自然光之下,更显宁静平和、含蓄低调。
套间一隅设独立衣帽间,并嵌入灯带为其添上独特的情调。这既是空间的合理化利用和居者需求的完善,亦是生活品质的缩影与细节的极致追求。
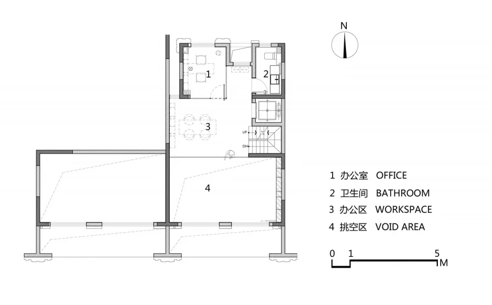
开放式书房与睡眠区相望,融合了现代人的功用性与审美需求,并予以其更深的自由度与灵活性。多功能书架,在一脉相承的设计理念中,呈现充沛的线条律动,渲染宽广的精神境域,尽显高级细致之美。
适度的粉嫩昭示小公主的私人领地,以马卡龙色配合低饱和度的色彩进行叠加组合,辅以音乐元素妆点,一种欢快、活泼、灵动与童趣充盈其间。
设计师方磊表示:“设计的价值在于解决问题,引导人们养成良好的生活方式与习惯。整个项目既试图满足对居家享受的追求,又希望赋予其卓越的商业之势,在二者的和谐统一中,让设计成就更多的可能性。”
纯粹的材质,精致的工艺,软硬配比的调和,让中南锦时布拉格的生活感观与商业调性恰到好处。这是壹舍设计团队对商业与住宅一体化复合型空间的尝试,亦是对边界的一次探索,以及对未来业态重构、精英人士工作与生活理念的一次全新突破。
项目名称 | 中南锦时布拉格 商业 住宅样板间
项目地点 | 浙江省 丽水市
项目面积 | 388㎡
完工时间 | 2019年12月
设计公司 | ONE HOUSE DESIGN 壹舍设计
参与设计 | 蒙程鹏、徐金山
视觉陈列 | 李文婷、刘艳、李蕾蕾
项目摄影 | 三像摄 陆彬
方磊,知名室内设计师,壹舍设计创始人
近年来获得诸多国内外室内设计大奖。擅长用现代简约的美学精神展开空间多维描述,以克制与平衡的手法、表像和内在的矛盾统一来表现丰富而纯粹的设计本质。方磊先生认为设计师思维是感性与理性的结合,设计工作实际是表里不一的呈现。他喜欢用设计语汇解构空间内涵,并执着于将设计演绎到极致,屡创精彩的设计佳作。
壹舍设计创建于2009年,是集室内设计、环境设计、软装设计等一体化的综合性专业设计公司,主要从事商业空间、办公空间、高端楼盘样板间、高档别墅、精品酒店等设计项目。通过多样化设计经验的磨练与累积,公司拥有资深的服务团队,其项目获得多项国内外设计大奖。公司对设计素质要求极为严谨,以专业团队的努力协作,从空间、材料、 家具、软装,各个环节丝丝入扣,确保为客户提供至高水准的个性化定制服务。
作为华侨城、华润、万科、保利、中南、融信、融侨、新华协信、路劲、嘉华、九龙仓、仁恒等一线地产商长期战略合作伙伴,壹舍设计打造出华侨城苏河湾、华侨城新浦江城、宁波华侨城欢乐海岸、上海华润外滩九里、路劲地产上海院子、嘉华嘉御庭、重庆新华协信星光68、合肥万科森林公园等一系列重量级作品,并以其优质的服务和良好的信誉获得了业界一致赞誉。
F HOUSE、宁波欢乐海岸售楼处、华侨城上海苏河湾、华润外滩九里、浦江城十号院、合肥万科森林公园/城市之光、上海中鹰黑森林、重庆新华协信中心、华润静安府、路劲地产上海院子、成都花样年花漾锦江、嘉华集团上海嘉天汇/嘉御庭。
现代 复合空间 住宅样板间 精致 奢华 时尚

