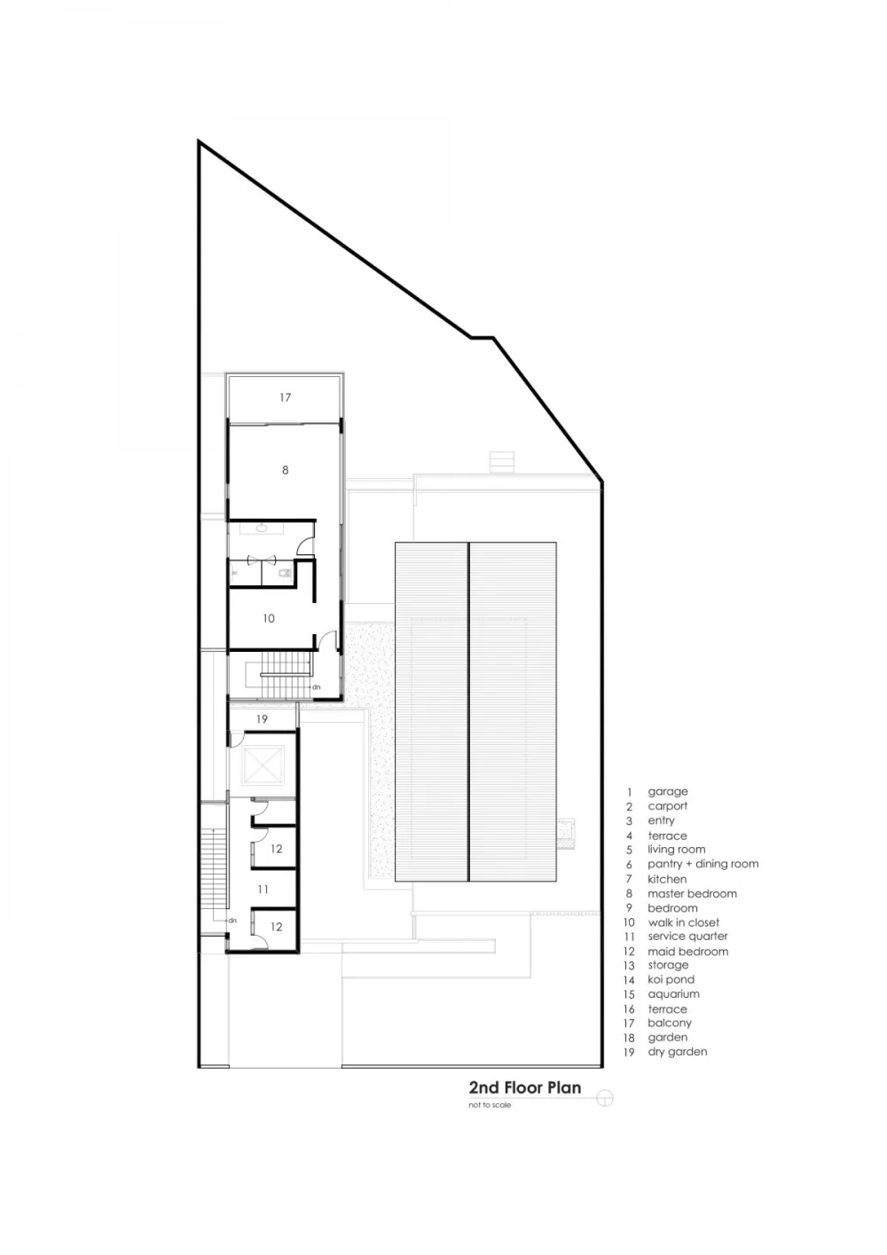
位于印度尼西亚万隆的Iyashi House,由印尼当地的建筑及室内设计工作室Pranala Associates设计。房子被周围的墙温柔地隐藏起来,前面是一条由Alang Alang草框成的上升通道。主入口走道通向室内庭院,配有定制的预制混凝土瓷砖,装饰着一棵常青树。











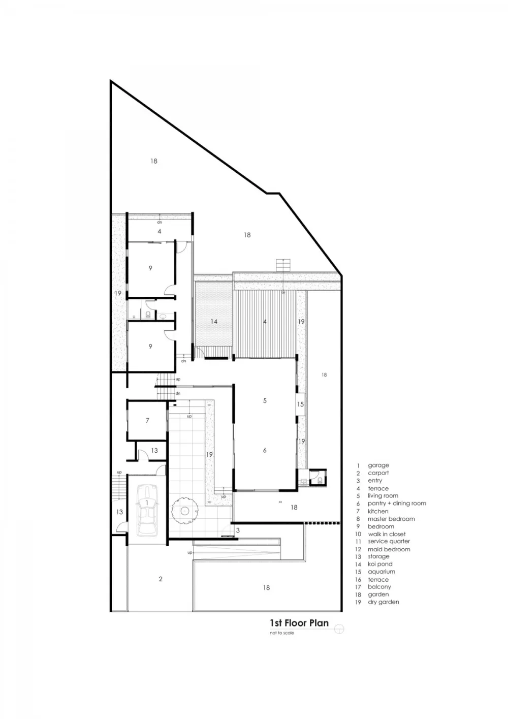
该建筑的特点是将完美的现浇混凝土、哑光钢架和铁木屋顶尖锐地并置在一起。引人注目的日本式屋顶由混凝土墙向内偏移而突出,并由钢结构支撑,使其“半漂浮”的外观和细长的悬挑得以实现。











位于印度尼西亚万隆的Iyashi House,由印尼当地的建筑及室内设计工作室Pranala Associates设计。房子被周围的墙温柔地隐藏起来,前面是一条由Alang Alang草框成的上升通道。主入口走道通向室内庭院,配有定制的预制混凝土瓷砖,装饰着一棵常青树。











该建筑的特点是将完美的现浇混凝土、哑光钢架和铁木屋顶尖锐地并置在一起。引人注目的日本式屋顶由混凝土墙向内偏移而突出,并由钢结构支撑,使其“半漂浮”的外观和细长的悬挑得以实现。










