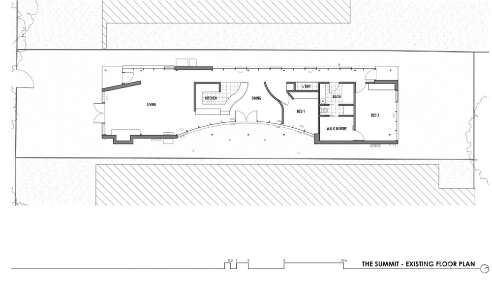
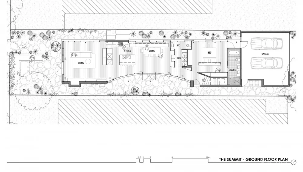
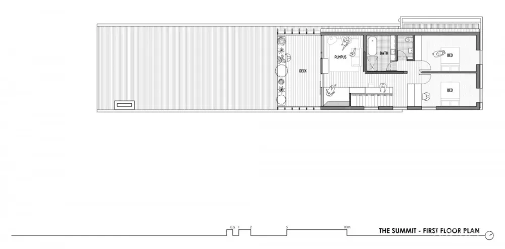
位于澳大利亚墨尔本一栋300平方米的住宅,由当地的室内设计公司Architecture Architecture设计。The Summit House是对Malvern特有的现代主义现代房屋的翻新和扩建,原始房屋的屋顶采用了大胆弯曲的结构,并由一串钢柱精心支撑,弯曲的玻璃墙模仿了屋顶的形状,向内弯曲以形成侧面。庭院四面都有玻璃和花园,房屋充满自然光线。















Architecture Architecture | The Summit House , 简约大胆的现代住宅
位于澳大利亚墨尔本一栋300平方米的住宅,由当地的室内设计公司Architecture Architecture设计。The Summit House是对Malvern特有的现代主义现代房屋的翻新和扩建,原始房屋的屋顶采用了大胆弯曲的结构,并由一串钢柱精心支撑,弯曲的玻璃墙模仿了屋顶的形状,向内弯曲以形成侧面。庭院四面都有玻璃和花园,房屋充满自然光线。
版权声明:本文内容由用户自行发布上传或投稿由设计芝士代为发布,版权归原作者所有,设计芝士不拥有其著作权,亦不承担相应法律责任。如果您发现本站中有涉嫌抄袭或侵权的内容,请点此提交工单进行举报,一经查实,本站将立刻删除涉嫌侵权内容。


?