“北崇太极,南尊咏春”,咏春历经数代武师推陈出新形成广为人知的武术招式,而用于练习咏春拳法的木人桩已然成为一个鲜明的文化符号。野泉烟火白云间,坐饮香茶爱此山。本案坐落在武术之乡一一佛山,这片土地曾因咏春拳扬名四海。UND试图将现代审美与品牌文化糅合,将佛山的本土文化与东方禅意结合在同一个空间里,进行禅武合一的演绎。
“Tai Chi in the north, Wing Chun in the south”. After several generations of martial artists, Wing Chun has developed into a well-known martial art move, and the wooden dummy used to practice Wing Chun has become a distinct cultural symbol. “Between the wild spring fireworks and white clouds, I love this mountain by sitting and drinking fragrant tea.” The design is located in Foshan, the hometown of martial arts, where was once famous for Wing Chun. UND tries to integrate modern aesthetics with brand culture, combining the local culture of Foshan with Oriental Zen in the same space to interpt the unity of Zen and martial arts.
▼室内空间一览,overview of the interior space ©程小乐
咏春木人桩 | Wing Chun Wooden Dummy
在本案设计中,灵感来源自咏春练拳的木人桩,一横一纵的人形结构,柱子作为连接天与地之物而诞生,把原本大面积岩灰色的基底进行合乎比例的切割,解构出空间内部丰富的层次感。水平长线与垂直柱体共同搭建出空间的“坐标”,均衡视觉比例的同时沟通本土文化与现代潮流的新生,有条不紊的空间秩序感来源于此。
In the design of this case, the inspiration comes from the wooden dummy of Wing Chun, a horizontal and vertical humanoid structure. And the pillars are born as objects that connect heaven and earth, cutting the original large area of slate gray basement in proportion to deconstruct a rich sense of hierarchy within the space. The long horizontal lines together with the vertical columns create a “coordinate” of the space, which balances the visual proportions while constituting a new birth of local culture and modern trends. This is where the organized spatial order comes from.
咏春木人桩 | Wing Chun Wooden Dummy
在本案设计中,灵感来源自咏春练拳的木人桩,一横一纵的人形结构,柱子作为连接天与地之物而诞生,把原本大面积岩灰色的基底进行合乎比例的切割,解构出空间内部丰富的层次感。水平长线与垂直柱体共同搭建出空间的“坐标”,均衡视觉比例的同时沟通本土文化与现代潮流的新生,有条不紊的空间秩序感来源于此。
▼榫卯结构细节,details of the mortise-tenon structure ©程小乐
灵感之禅茶 | Inspiration Zen Tea
东方的禅意源自古人对山水的敬畏之心,保持对自然的好奇心使得各方文人雅士饮茶吟诗时,不约而同以山为歌,以水为画。“茶之为饮,发乎神农氏”,设计试图通过茶之根源——茶山,进行艺术化的表达,起伏的茶山装置如若层云叠嶂,置入于空间中心的长形茶台,亦暗示着茶的制作根源。
The oriental meditation originated from the ancient people’s awe of the mountains and waters. Keeping their curiosity about nature made the literati of all sides take mountains as songs and water as paintings when drinking tea and reciting poems. “Tea for drinking, it is from Shennong’s.” The design attempts to expss artistically through the origin of tea – Tea Mountain. The undulating Tea Mountain as layers of clouds, is placed in a long tea table in the center of the space, which also implies the roots of making tea.
向前望去便能看见整齐排列在墙上的茶罐,颜色由深至浅,由多变少,看似水墨晕染。从茶之根源诠释温润有致的饮茶文化,悠长的文化记忆则随着清香扑鼻的茶叶,一起在温水中缓缓泡开……
Looking ahead, you can see the tea pots arranged neatly on the wall, from dark to light, from more to less, seemingly smudged with ink. From the root of tea, a warm and moist tea culture is interpted, and the long cultural memory is slowly brewed in warm water with the fragrant tea…
▼茶罐整齐地排列在墙上,the tea pots are arranged neatly on the wall ©程小乐
以岭南文化与禅茶相互交织,两者在同一个时空里相互调和的结果表达为木人桩上方透明亚克力展示盒,放于其中的醒狮、锅儿墙正是象征岭南文化的本土符号,为空间注入更多文化基因。通过调茶者精心配制,一杯杯清香可口的灵感之茶经由亚克力传送带,输送到茶客手中。岭南元素的图腾与禅茶的传送亦象征着本土文化与品牌文化的传输。从茶山、茶叶到茶汤,结合当地醒狮文化,赋予茶饮前所未有的魅力。
▼木人桩上方的透明亚克力展示盒内放置着象征岭南文化本土的物件,the transparent acrylic display boxes above the wooden stakes contain the native symbols of Lingnan culture ©程小乐
▼室内用餐空间,the interior dining area ©程小乐
禅武合一 | Inspiration Zen Tea
旧时武学宗师从咏春拳法觅见“无我”真谛,现代都市工作者在一杯茶里寻得一刻“自我”时空。品茶的生活方式和人形武学符号,在充满禅意的空间里多元交汇,传统文化和现代行为在人们的日常中不断被扭结、重组,纵使时光荏苒,不变的依旧是生活。禅为主体,武为形态,茶为灵感,三者在同一个空间汇聚碰撞,禅武合一,禅茶静心,温润沉著,清净自在。
In the old days, the master of martial arts discovered the true meaning of “selflessness” from Wing Chun. The workers from modern city can also find a moment of “self” time and space in a cup of tea. The life style of tea tasting and the symbol of martial arts of humanoid form are diversified and intersected in the space full of zen.Traditional culture and modern behavior are constantly tangled and reorganized in people’s daily life. Even if time passes, life will remain unchanged. Zen as the main body, martial arts as the form, and tea as the inspiration. The three come together and collide in the same space. Zen and martial arts are united while Zen tea is calm. Gentle, calm and pure.
▼人形桩演变动态图,gif of the evolution of the wooden dummy ©UND设计事务所
▼空间轴测图,the axon ©UND设计事务所
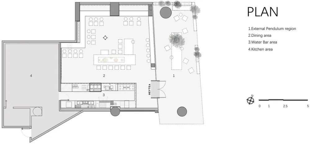
▼平面图,plan ©UND设计事务所
项目名称:喜茶佛山南海万科店
项目地点:中国广东
项目面积:175㎡
项目业主:HEYTEA 喜茶
室内设计:UND设计事务所
设计时间:04/2019
竣工时间:07/2019
摄影版权:程小乐

