交替变换的现代中式与古朴中式意境空间
项目名称:会龙湖农庄大酒店
项目地点:中国上海南汇六灶
项目业主:Ms. Chu
项目面积:2300²
完成时间:2019.12
主创设计:朱云龙 徐海东
装置与陈列:朱云龙
主材:( 地砖 墙布 金属 大理石 木材)
设计主题:交替变换的现代中式与古朴中式意境空间
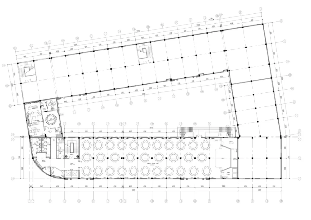
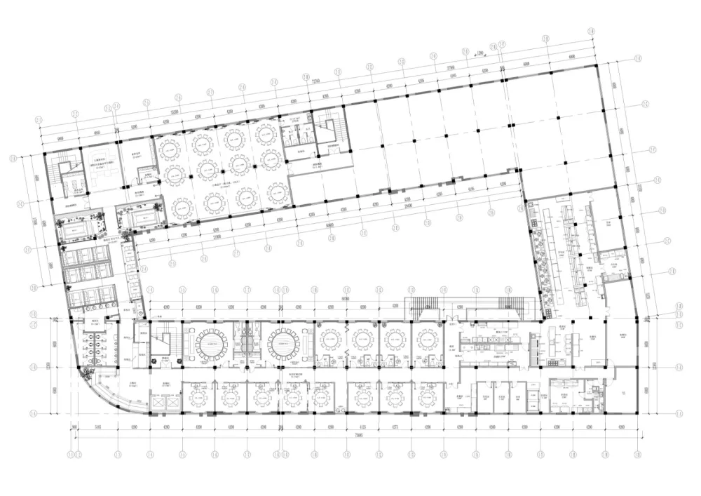
会龙湖农庄是一家坐落于上海乡下地区的农庄式餐饮酒店,以婚庆为主经营方式,菜品以海鲜上海本帮菜为主。现已拆除.本案重在改造升级,负责整栋室内空间设计。项目共三层,一层设计区域包括门头、大堂、前厅接待台 楼梯间 电梯厅 办公区;二层为婚庆大宴会厅加一个总统包房及公用卫生间;三层则包括、展示性鱼池、明档点餐区、散客用餐区、包间、宴会厅、儿童游戏区。
本案以传统中式与现代中式风格相结合的方式,展现中式文化与现代艺术魅力的同时,以简练的线条,纯粹的色彩、不雕琢的质朴表达出传统中式的清雅端庄与现代中式的时尚感。
在三层主空间中,设计师采用中式经典的色彩,巧用徽派青砖石瓦马头墙为结构结合旧木头的徽派房屋制作内景,餐桌搭配新中式款型与整体过度衔接融洽的方式 体现出了古香古色之感而不显古朴质感。此外还采用弓形门洞、雕花窗以及屏风等元素,来描绘传统中式原始质感,漫游在传统与现代交织的世界里让古典情怀肆意流淌,在这里或许可以让你焦虑、浮躁与急功近利的心安定下来,再通过巧妙的艺术构设,融入江南水乡创造出具有诗情画意的景观,一水一船一木均能产生出深远的意境,徜徉其中,可得到心灵的陶冶和美的享受。
区域空间的用餐包间采用新中式风格,质朴的桃木色木饰面,白色系的石英石腰线搭配灰色墙布朴质沉稳,大刀阔斧地书写下空间的气派,以及实用性。在原本沉重的古朴乡土味下,设计师在墙上巧妙地利用颜色醒目的中式墙画作为背景墙装饰搭配灰色墙面的映衬下愈发显得优雅精巧,为空间带来别样柔情。包厢则使用雕花屏风隔断,若隐若现的视觉不仅给空间增加隐秘性也增加了艺术感。
宴会厅则采用新中式风格,搭配大花白石材墙面 蓝色布艺窗帘,以暖色明亮灯光 结合舞台照明效果使婚庆在传统中式的结合下而不失现代奢华感。

