这家170平方米的披萨店位于乌克兰的波里斯皮尔,是一家城市快餐店。室内的主要概念是保持原始材料的外观,并注重纹理的组合。混凝土天花板、柱子、砌块和砖墙具有原始的外观。
空间被分为两个主要部分,开放式厨房和访客区,这两个区域由吧台隔开,吧台上有玻璃隔断,让客人可以观察烹饪过程。依次,游客区由三个功能区组成,一个有沙发和躺椅的黑暗舒适区,一个有5米高的大桌子的中心区域,一个有吧台和窗户的区域。
为了将主要的游客区与厕所分开,安装了壮观的玻璃墙。一方面,这样的墙是一个强调细节,另一方面,它自然地适合于一个银色的混凝土色域。我们在室内使用了黑色钢框架和玻璃隔断的全景窗户,使空间光线充足,通风良好,强调开放和接近游客。
极简主义吊灯——钢腿上的球体,特别为这个项目定制,是为游客在视觉上统一所有区域的重要细节。城市内部由拉丝钢元素和小黑瓦图形墙补充,而灰木家具和灯球创造一个舒适的氛围。
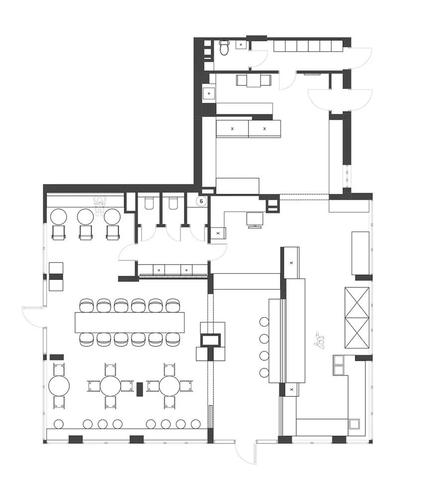
▼平面图
Architects: Palyichuk Olga Design
Area:170.0 m²
Year:2019
Photographs:Yevhenii Avramenko
Manufacturers: Propro

