这座佛教寺庙坐落于东京的东北部,基地周围有许多寺庙和墓地。该建筑使用了复杂而精致的几何造型。它没有采用传统意义上佛教建筑的形式——一个宏大的主殿结构,其余的次殿分散在场地的各处;而是将所有的功能空间都组织在一个三层的单一体量中。
 
 
在寺庙的立面上,混凝土方形体量和嵌着玻璃面板的体量以相同的宽度交替排列,形成凹凸的造型。随着寺庙的高度升高,每一层混凝土体量和嵌着玻璃板的间隙体量的宽度都是其底下一层的一半,同时,混凝土体量向外凸出的深度也开始增加。最终,建筑在外立面上形成了一个巨大的斗拱般的造型。斗拱在传统的日本木制寺庙建筑中是一个连接梁柱的结构构件,这一设计也使得本项目呼应了传统。
 
 
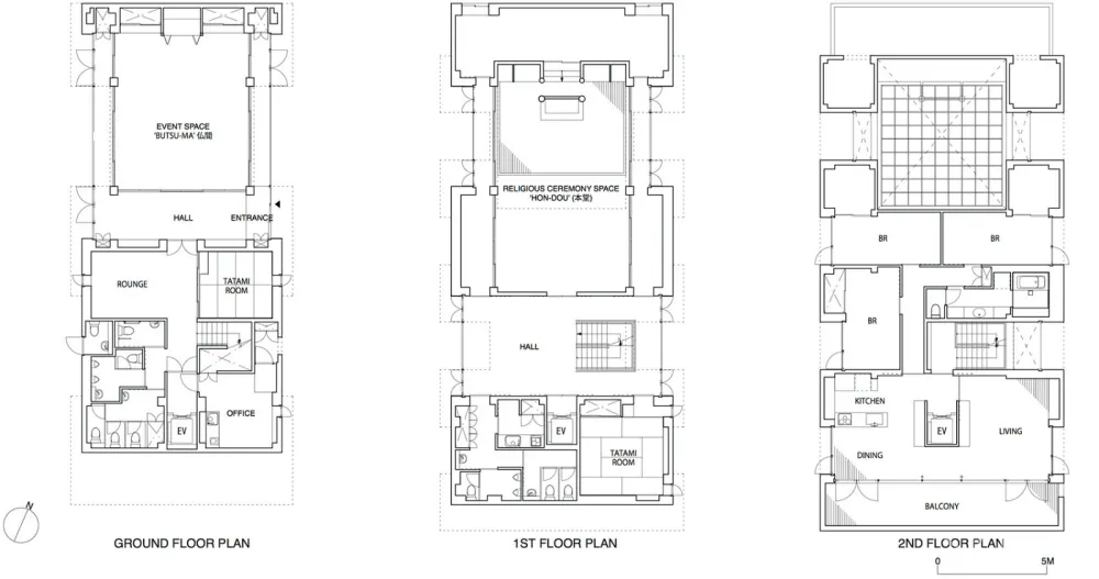
寺庙的首层设置了一系列游客设施,如如入口大厅和名为仏間(Bustu-Ma)的活动空间等。二层则是用于宗教仪式的寺庙正殿(Hon-Dou,本堂)。值得一提的是,在正殿的凸形间隙空间中,还设置了精致的圣坛和格状的木制天花板。顶层空间则是住持僧及其家属的居住空间(Kuri,庫裏)。建筑师在这层设置了一个无顶的凸形混凝土方盒子体量作为“阳台”,就像是一个漂浮在空中的庭院。
 
 
悬挑而出的地板在建筑的室外投射出一系列遮阳避雨的空间,与古老寺庙的大型屋顶下的空间起到了同样的作用。因此,尽管这座寺庙与日本传统的木制寺庙完全不同,但它同时具有着现代感和古朴感。
 
 
 
 
 
 
 
 
 
 
 
 
 
 
 
 
 
 
 
 
 
 
 
 

 
 

 
 
 
 
▼剖面图
 
 
▼总平面图
 
 
▼平面图
 
 
建筑师:Toru Kashihara Architects
项目团队:Toru Kashihara, Yumiko Miyazaki, Tomoya Watanabe
结构工程师:低脂结构公司
机械/电气/管道工程师:渡边康弘,Kanzaki Yoshihisa
承建商:池田建设有限公司
摄影:Takumi在线旅行社


