项目位于上海浦东新外滩国际区域的重要门户位置,起初在教会和当地政府之间产生了分歧,于是当地政府联系了AS +,希望能够寻求一个彼此都满意的解决方案。教会管理局提出的方案琐碎怪异,与浦东政府的期望不符,他们希望这座教堂能够反映出日新月异的现代与国际化状态。除了这一棘手问题之外,场地条件也非常复杂,地铁的地下设施限制了场地与新外滩入口道路的位置,让建筑局限于黄浦江线性公园与新城市发展区域的边缘之地。
这一特殊建筑的系谱与对屋顶形态和景观的解读相互联系,屋顶作为邻近公园的延伸,以米兰、巴塞罗那或者巴黎可上人的欧洲教堂为设计理念。一道独特的公共楼梯像海洋动物尾巴一样摆向建筑前方,通过这道楼梯可以通向建筑的屋顶花园:这是公园和黄浦江上一处自然的观景平台,可以让社区的人们聚集在一起举办户外庆祝活动。
建筑的中心空间即主礼拜堂设计,强调其作为社区聚集场所的象征性特征,融合了两种类型的礼拜空间:传统天主教最基本的纵向中殿和新教的礼堂空间,礼堂空间按照唱诗班声学和象征性、仪式性的角色来设计。这座宗教建筑还增加了一处位于后方座位区、面积更小的礼拜堂,通过一面可折叠木墙与主礼拜堂分隔开,在需要的时候可以移开木墙,让教堂容量扩增至2000人。
项目整体紧张的预算造成材料使用十分受限,建筑师不得不大量使用白色灰泥,将方案与所处环境中的塑性线联系起来,使用混凝土的底部、钟楼和主殿顶部带有一定的post-conciliar特点。材料限制通过策略性、精确性地使用纯粹的建筑元素如自然光线来解决,自然光依据不同空间朝向渗透其中,形成特定的空间意向。

▼剖面图
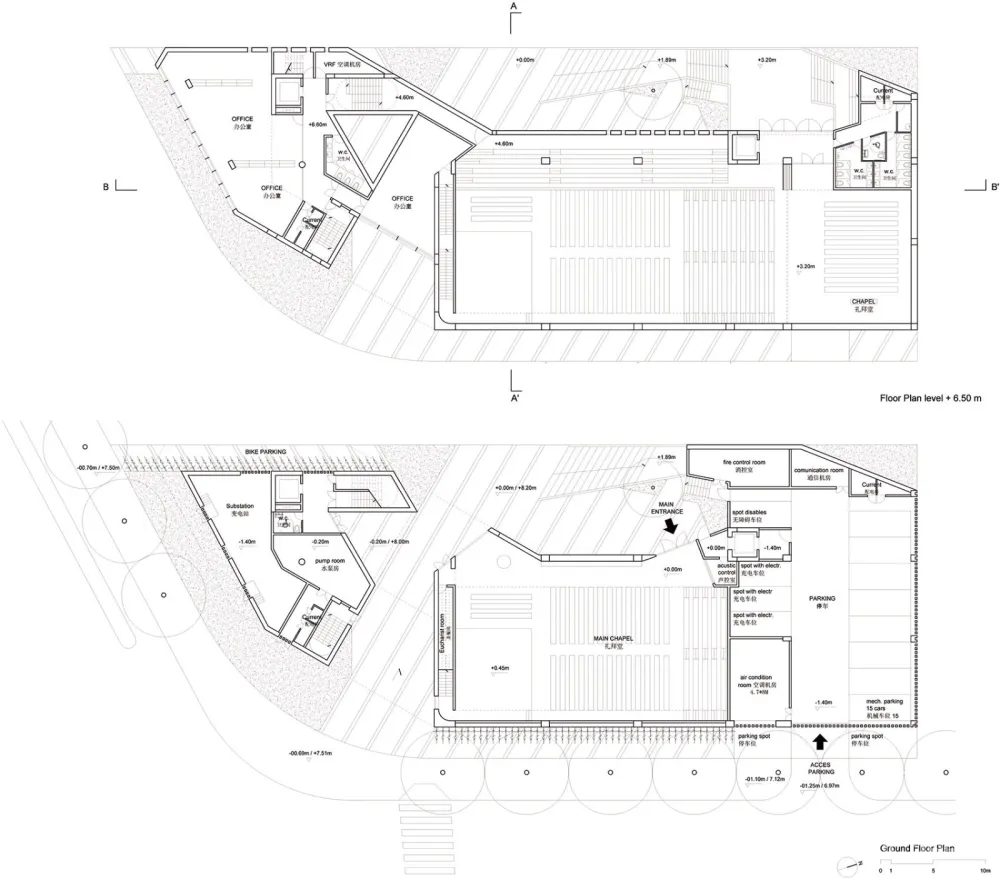
▼平面图
▼立面图
▼草图
新邦教堂(浦东,上海,中国)2016-2018)
地点:新本区,浦东,上海,中国
建筑面积:2837平方米
状态:建造
建筑师: Iñaki Ábalos, Renata Sentkiewicz (Abalos+Sentkiewicz AS+)
摄影师: Zhang Yong (ZYArch Photograp

