© Saverio Cantoni
萨维奥·坎托尼
会议地点
The Meeting Place
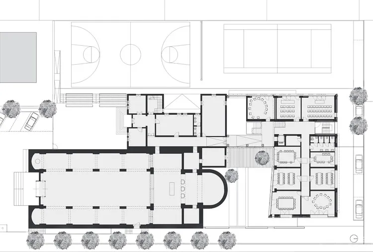
该设计是对礼拜堂周围建筑物的彻底重新思考,包括改造现有的教区、重新安排外部区域和建造一个新的社区中心,以便容纳一个多用途的大厅、供教学用的教室和用于一般教区活动的服务区。
The design is a complete re-thinking of the buildings surrounding the Regina Pacis Church involving the adaptation of the existing parish rectory, the re-arrangement of the external areas and the construction of a new community centre, intended to house a multi-purpose hall, rooms for teaching Catechism and service areas for parish activities generally.
© Saverio Cantoni
萨维奥·坎托尼
新教区中心的设计力求使用建筑语言来传达这项新工作对雷吉纳帕西斯当地社区所代表的意义:这是一项欢迎外界的建筑,鼓励融合和思想的汇合。
The design of the new parish centre seeks to use the language of architecture to transmit what this new work repsents for the local community in Regina Pacis: a construction which is welcoming to the outside, encouraging integration and a meeting of minds.
© Saverio Cantoni
萨维奥·坎托尼
把“新”移植到“老”上的一部作品。
A Work Grafting the New Onto the Old.
新的中心被设想为一项工作,它既取代了现有的环境,又发展成了现有的环境。它是从老国会电影院的基础上升起的,没有侵占以前没有建造过的土地,它采用了一种方法,将它插入到它的环境中,它的布局、形式和建造材料,与它的当地环境产生了共鸣。事实上,这与以前的结构形成了鲜明的对比,以前的结构是独立和自主的,对周围环境完全没有反应。
The new centre has been conceived as a work which both replaces and grows into the existing environment. It rises from the foundations of the old Capitol cinema without encroaching on land not pviously built on, adopting an approach to the way it is inserted in its environment, its layout, form and the materials from which it will be built, generating resonances with its local context. This is in fact in stark contrast with the pvious structure which stood alone and autonomous, entirely unresponsive to its surroundings.
© Saverio Cantoni
萨维奥·坎托尼
中间的空位。
The empty space at the centre.
该中心的主要目标是建立一个庭院,将教堂和新建筑分开,建立一个开放的过滤空间,创造一种适当重视民众的分离,尊重它。它还提供直接进入会议场所和作为一个区域的游戏和外部空间,以放松在多功能厅举行的活动。它是一种教堂广场的形状,向街道开放,但受到保护,既被定义,又被新的延伸所接纳。
The primary aim of the Centre is the establishment of a courtyard to separate the apse of the church and the new building, an open, filtering space, creating a separation which accords due weight to the apse, treating it with respect. It also provides direct access to the meeting place and functions as an area for play and an external space to relax from the activities held in the multi-purpose hall. It is in the shape of a kind of church square, open to the street but protected, to be both defined and embraced by the new extension.
© Saverio Cantoni
萨维奥·坎托尼
因此,新建筑群中的空旷空间被合并为一个非常适合社区活动的地方,因此也是为其使用而设计的建筑的一个焦点。
The empty space is thus incorporated in the new complex as a place well-suited for community activities and hence a focal point for the architecture also designed for their use.
Ground Floor Plan
在物质质量和光之间运动的建筑物。
A Building in Movement Between Material Mass and Lightnes.
这座新建筑无疑是当代文化的一项倡议,旨在建立教会与教区院长之间的密切对话,投射出对整个建筑群的单一看法。
The new building is unmistakably an initiative of contemporary culture, designed to establish a close dialogue between the church and the parish rectory, projecting a unitary view of the whole complex.
© Saverio Cantoni
萨维奥·坎托尼
它是一种上升到宗教主题的建筑,它保持了环境的自然礼仪,但它包含着“家庭生活”的特征,一种受欢迎的感觉,一种家庭的背景,这也是很重要的。这种新结构的特点是试图在这两个极点之间找到平衡点。
It is a construction which rises to the religious theme, maintaining the decorum natural to the setting but it is also important for it to contain characteristics of “domesticity”, a sense of welcome, a familial setting. The character of this new structure is an attempt to find a point of equilibrium between these two poles.
First Floor Plan
一层平面图
最后的设计是一座巨大的围墙建筑,其效果几乎严重,其基础是基本但敏感的几何形状,比如与教堂、顶棚和曲线相连的建筑,这些建筑给中央法院带来了优雅,并产生了一个小的门廊区域。材料的选择(薄薄的浅色空心砖的主要结构,具有相同的灰泥颜色)占据了教堂的色调,尽管整体结构更加统一和生机勃勃。
The final design is of a massive-walled building, almost severe in its effect, based on essential but sensitive geometries such as those seen in its connection with the rectory, the rising roof and curves which give grace to the embrace of the central court as well as generating a small portico area. The choice of materials (the main structure in thin light-coloured hollow bricks with wide mortaring of the same ochre-earth colour) takes up the chromatic tones of the church, although the overall texture is more uniform and vibrant.
© Saverio Cantoni
萨维奥·坎托尼
建筑群的严重性因材料和插入物的相互作用而减轻,而广袤的玻璃墙则象征着新教区中心的开放和欢迎,此外还提供了高亮度的室内装饰。
The severity of the complex is mitigated by the interplay of materials and inserts, while the extensive stretches of glass walls provide a symbol of the new parish centre’s openness and welcome to the outside in addition to providing highly luminous interiors.
East Elevation
社区开放空间。
Open Spaces for the Community.
新建筑位于两层,较低的毗邻建筑与教区的教区院长相连接。入口大厅上升到两种不同的高度,连接不同层次的空间,确保新建筑与已经使用的区域之间完美的功能整合,创造出一个对角线、动态和移动的空间,可供重新设计和想象使用,特别是许多活跃在教区生活中的孩子。
The new building is on two levels with a lower adjoining body mediating and connecting with the parish rectory. The entrance hall rises to two different heights and connects spaces at different levels, ensuring a perfect functional integration between the new building with the areas already in use, creating a diagonal, dynamic and moving space, available to be re-invented and used with imagination, particularly by the many children animating the parish life.
© Saverio Cantoni
萨维奥·坎托尼
多功能厅有最多可容纳150人的座位,可举办活动、晚餐或戏剧娱乐活动。一楼分为两层,设有八间大型会议室,供会议和教授问答。
The multi-purpose hall has enough seating for up to 150 people and is equipped to host events, suppers or theatrical entertainment. The first floor, arranged at two levels, contains the eight large rooms for meetings and teaching catechism.
West Elevation
西向立面图
对可持续性的不同看法。
A Different Idea of Sustainability.
新的中心将取代现有的大楼。这个设计秉承了这样的理念,即一个城镇在内部更新,自我更新而不占用新的、未开发的土地。在降低能耗和节能方面,该建筑将有一个非常好的隔热外壳。广袤的玻璃墙将通过防晒系统和外部卷帘进行遮挡。新的中心将与当地的地区供暖系统连接,并在所有室内环境中使用地板下供暖。
The new centre will be built in replacement of an existing building. The design is wedded to the idea of a town which regenerates internally, renewing itself without taking up new, undeveloped land. With regard to reducing consumption and energy saving, the building will have an extremely well insulated external shell. The extensive glass walls will be screened by a system of protection against the sun and external rolling curtains. The new centre will be connected with the local district heating system and uses under-floor heating for all interior environments.
© Saverio Cantoni
萨维奥·坎托尼
然而,“可持续性”的概念得到了进一步的发展。在最大限度地关注建筑群的环境可持续性问题的同时,该设计还力求确认建筑的审美和社会责任,对其建造环境、对场所及其特征的尊重、建立一种能够让整个社区参与并预期其演变的用途。
The idea of “sustainability” is taken further though. In parallel to the greatest possible attention given to the question of environmental sustainability of the complex, the design also seeks to affirm architecture’s aesthetic and social responsibility to the context in which it is to be built, respect for the place and its characteristics, establishing a use which is able to involve the whole community and anticipate its evolution.
Architects Iotti + Pavarani Architetti
Location Reggio Emilia, Province of Reggio Emilia, Italy
Category Community Center
Area 1500.0 sqm
Project Year 2014
Photographs Saverio Cantoni

