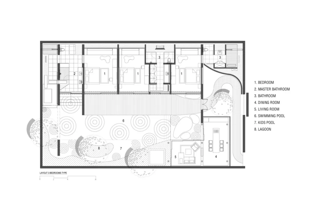
度假别墅内部的空间功能由一系列别墅组成,每栋别墅内有两到三间卧室。由于场地条件限制,别墅没有看向外部的视野景观。因此其设计概念主要集中在内部空间和内部景观的营造。根据项目名称,Santai有休闲放松的含义,于是其设计遵循的方式可以让客人享受到别墅内的放松环境和所有配套设施。
为游客家庭提供的配套设施包括私人泳池、客厅、食品储存室和公共场区域内的餐厅,可以让客人感到更加放松。
该别墅将巴厘岛传统及现代空间的特色融合起来。建筑中所使用的材料都是天然建材,例如科洛布坎石材、当地的尤林木以及瓦屋顶等。
接待区、大堂、餐厅和停车场都设置在一间房屋下,然后连续的屋顶从二楼大厅的顶部开始延伸,到尾部时距离地面只有80厘米的高度。因此建筑屋顶的形式整体统一,易于融入周围环境,与其和谐统一。就空间设计而言,餐厅的地面略有下沉,可以让空间更大。
此外,大堂内由一系列刻有梵文的柱子构成,每根柱子上都用梵语写着“放松”、“平静”和“安心”等词语。
大堂和公共区域内没有安装空调,利用自然通风换气。
木质隔墙的排布方式可以遮阳遮雨,同时还可以突出自然属性和传统样式。除此之外,凉亭内有人功河流和巴厘岛的凉亭,其中凉亭形式遵循现有的外形然后强化了巴厘农村的印象。
小别墅是作为旅游项目之一开发的,可以在支持巴厘岛的旅游服务业方面做出贡献。
建筑师:Antony Liu 建筑师,Studio TonTon
位置:印度尼西亚 巴厘岛 乌马拉斯
建筑师负责人:安东尼·刘,伊万·苏桑托,迈克尔·科,维维卡南达

