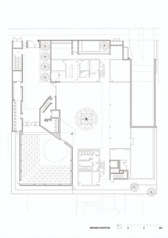
该项目旨在为澳大利亚伊斯兰教团建立一个新的家园,并提供一个复杂的建筑综合体,以方便当地信奉穆斯林信仰的社区成员学习和宗教崇拜。发展将分两个阶段进行,第1阶段是建造可容纳约300名礼拜者的清真寺,第2阶段是建造社区建筑。
建筑被安排在一个部分向一侧开放的四合院周围,这为学生和社区成员提供了一个内部的视野和隐私。这种配置创建了两个相邻但独立的庭院,提供了客户需求概要所要求的主要白天功能的分离。
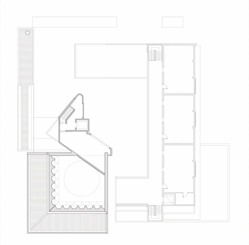
两个庭院中第一个更公共的庭院,可以直接从街道进入,紧邻清真寺。这个庭院主要用作朝拜者进出清真寺的方向和集会空间。第二个庭院更大,更私密,可以穿过,但与第一个庭院在物理上是分开的。
第二阶段清真寺行政大楼和社区教室位于第二庭院周围。第二个庭院也可以向清真寺开放,供大型宗教节日和活动使用。设计允许灵活性,庭院之间的物理连接可以被拓宽,允许整个校园用于宗教教学和其他课外社区活动。

清真寺的建筑表达有意地与未来社区建筑的其余部分分离开来。进入清真寺要经过第一个庭院,男女礼拜者分开在祈祷前进行沐浴。男性朝拜者在接近清真寺时向右散开,进入一层男性沐浴区呈斜三角形的区域,然后穿过通往主祈祷厅的压缩入口天篷。

女性礼拜者从入口庭院左侧的宣礼塔下经过,进入女性沐浴区,然后继续穿过宣礼塔,到达清真寺第1层和第2层的祈祷廊。这些祈祷廊在木制圆顶和oculus下延伸到下面的主要祈祷空间,将女性礼拜者放置在清真寺的中心。
从清真寺入口的门中弹出一堵不规则的混凝土墙,打破了主祈祷空间平面的正交几何形状,将朝拜者引向麦加。该设计创建了一个宗教教学和社区活动中心,以满足现有的和快速扩展的社区为基础的集会,现在和未来。

这座雕塑般的不规则混凝土斜顶天花板通向清真寺主祈祷空间,参考了传统伊斯兰建筑中“muqarnas”的装饰性拱顶,102个不规则混凝土“muqarnas”的每个中心都有一个直径30毫米的洞。阳光通过“muqarnas”被引入主祈祷空间,当太阳从黎明祈祷到中午和下午祈祷,在日落和晚上祈祷之前,移动时照亮了这个空间。
位置:新南威尔士州2196,澳大利亚
年份:2017
面积:549.0 m2
摄影师:Rory Gardiner


小孩子的情趣在里面体现出来了。穿插造型😊