立木在厦门梅沙教育万科园南社区营地竞赛中胜出。项目基地毗邻厦门中山路,包括七幢“横不平、竖不直”的老房子,原本缓坡地形加上建筑年代不同,导致场地内部高差复杂。
▼改造前七幢老宅
业主希望建筑改造后在功能上满足四点半课堂、午托、幼托、早教、英语、写作、益智、形体、活动、音乐、美术等近几十种课程的变化,在尺度上满足从2岁婴儿到14岁少年之间的各年龄段使用。一边是空间复杂的危房,一边是多重复合的功能,立木接下了这个“不可能”的挑战。
▼改造前现场条件
设计面临最初挑战是流动儿童活动空间与老旧建筑之间的矛盾,由于场地里的建筑多数建于民国时期,所有墙体均承担结构作用。与结构多轮的绞合后,在场地内设计了一个没有尽头的环形跑道。原先七幢建筑和场地的复杂高差恰好使这条上上下下的跑道变得更为有趣,孩子们时而“上房揭瓦”,时而“下地玩耍”。
▼没有尽头的跑道
这条跑道串联起了所有的“自在地玩”的功能,孩子们能够在奔跑和玩耍中发现自己的兴趣。长期对0-16岁孩子成长观察和研究,更多的学习是发生在不同年龄的孩子之间,孩子更倾向于向比自己稍长者学习、模仿,这是一个更加自然并且有效的学习方式。
▼二层活动院落
基地中被环绕的“大房子”变成了我们的心跳城堡,这里是“高效地学”,所有需要相对独立的课程被设置在这里。政府要求保留了建筑的全部轮廓,立木通过使用白色的聚碳酸酯板和白色沥青将建筑整个包裹,使它变成了一个轻盈的发光体。其他建筑修复其原有的干粘石和红砖,使场地既具有历史感,又富有未来感。
▼心跳城堡
▼具有历史感的沿街立面
原有建筑的可用沿街面仅40平米,通过连续的空间拱形来引导和放大门厅尺度,将卫生间、储藏室、换鞋区等功能全部暗藏,保持了各室内的纯净感。
▼门厅与其他活动空间
立木通过A(Ability Room)B(Basic Room)C(Cello Room)D(Dance Room)四类教室的变化来满足几十种课程的需求,不同类型教室里的桌椅、收纳、墙体都通过设计来满足若干种变化来适应课程和年龄的变化。
▼A/B教室
设计中我们还暗藏了小王子的旅行线索,从游戏区B-612星球出发,终点滑梯下来在一片沙池,让宇宙、星球、花圃、沙漠变成孩子们童年的浪漫场景。
每个孩子,都是自己星球的小王子。
▼首层平面图
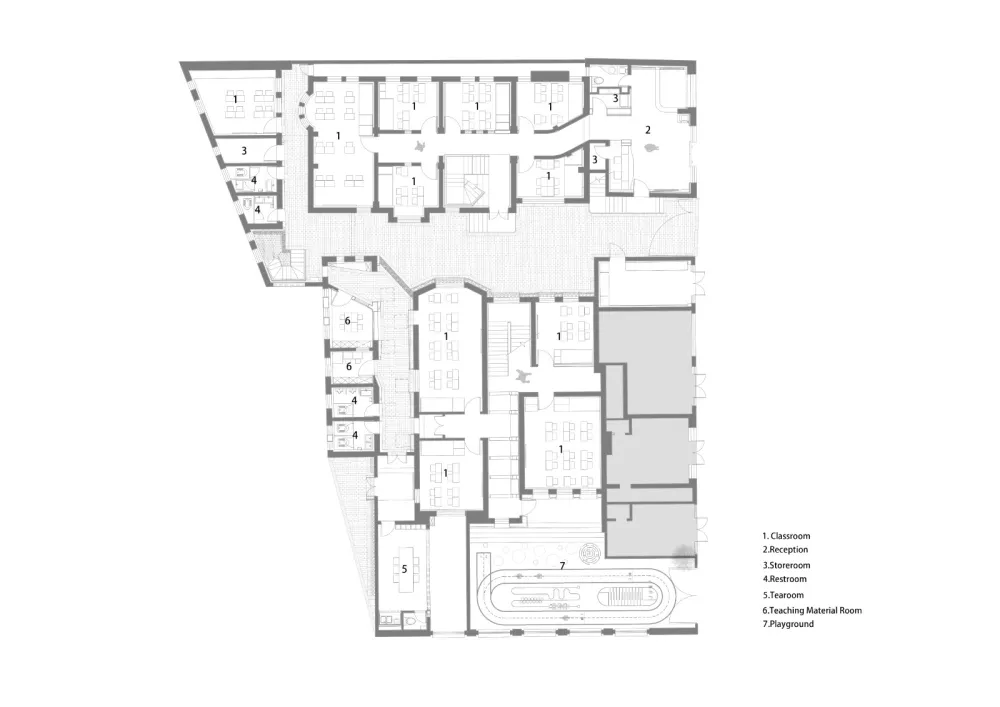
▼二层平面图
▼剖面图
业主: 厦门万科梅沙教育
设计:立木
总建筑师:John
项目经理:郭先生、刘津瑞、冯琼
设计团队:朱嗣君、冯菲、关博隆、郭乾、黄翰仪
建筑施工图:林嶔崟、沈夏晖
室内施工图:赖武艺、陈灿明
机电设计:TEA 立木机电
景观设计:IA 立木景观
效果表达:张恩东
设计图解:明香邑、丁文晓
设计时间:2018.06-10
面积:1200m2

