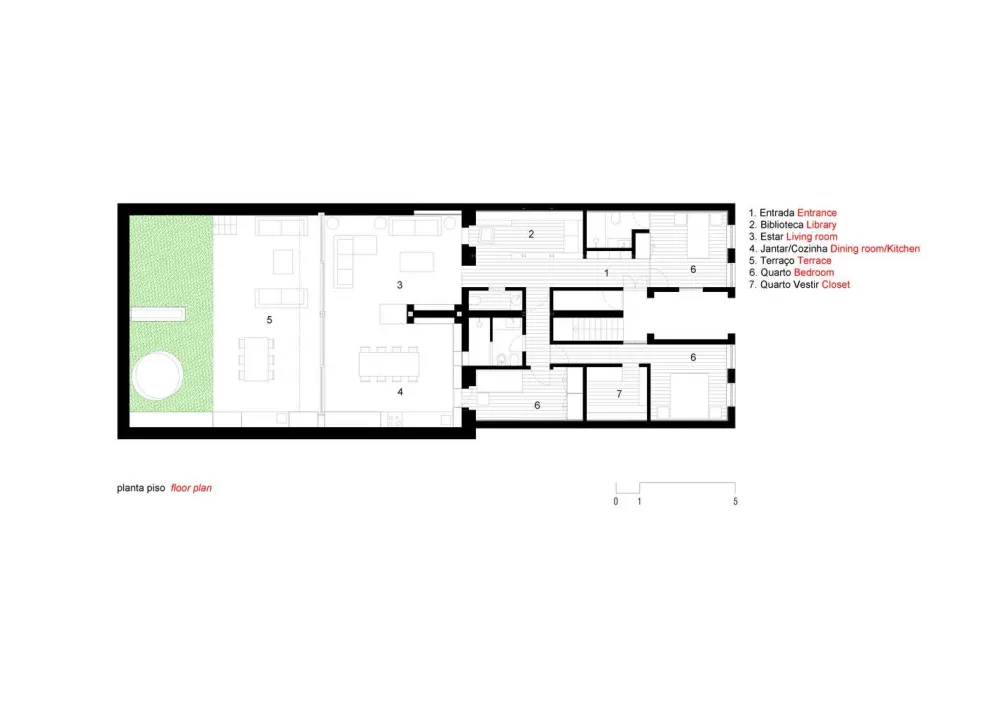
这些公寓位于里斯本的Bairro da Lapa,处于不同的保护阶段。其中一套公寓最近翻修过;另一个实际上是在它最初的状态。该项目的挑战是将两个面积和空间较小的公寓连接起来,将它们转换成一个公寓,同时不失去它们的身份,并赋予它们当代的功能和体验。
为此,该干预作为一个前提,将社交区域集中到花园,卧室位于对面,唯一保留室内的房间被涂上了木板,将外部光线引入室内,而不会失去隐私。图书馆具有双重功能,它既是房屋的入口区域,也是与客厅的连接,该空间的光线通过原有的门跨进入。大体积的木材,壁炉,将客厅和厨房分开,厨房延伸到外面,成为烧烤

公寓通过一扇大窗户完全向花园开放,花园被重新设计的结构墙隔开,就像一座雕塑。使用的材料考虑到了空间的特性,所以Lioz大理石被用于浴室,卧室的木质铺装和社交区域的混凝土。此外,胶合板被用于从木材到混凝土的过渡,给起居区域带来更多的舒适性。公寓因此对外开放,完全投射到花园中,确保内外边界被弱化。






































地址: 葡萄牙 年份:2018 摄影:Francisco Nogueira
版权声明:本文内容由用户自行发布上传或投稿由设计芝士代为发布,版权归原作者所有,设计芝士不拥有其著作权,亦不承担相应法律责任。如果您发现本站中有涉嫌抄袭或侵权的内容,请点此提交工单进行举报,一经查实,本站将立刻删除涉嫌侵权内容。

