实与虚的对弈:GENESIS ROCK是美国CRCM VENTURE公司在中国与当地政府资本打造并运营的风投机构。接到委托任务后,印象最深的是ROCK,关于稳的状态,属性,态度与精神。
寻找空间的元素;极简的空间与原始的肌理结合,空间由几块岩石作为线索的发起点,在这里,岩石是一种精神传递,一种空间特性,一种记忆点,一种强烈却真实的具象雕塑,增强人们对空间的认知。
寻找空间的故事;空间与空间之间由不同材质,颜色的界限串联,将仪式感做到极致,实与虚的对弈在岩石与玻璃之间展开,界限模糊且被拉长,每一个空间点都似乎在传递一些剧本章节里的台词。
平衡,错位,抽象,几何,构成,对比,逻辑,体验,灯光,材料,窥视。一系列的关键词在解决空间基本委托功能的同时渗入了进来,对于一个办公空间而言,空间的属性一定是多变并且感情丰富的。作为故事的发生地,从行为与心理的基本诉求就足以丰满空间的内容,对于我们而言,要做的仅仅是将这些点尽可能的悄悄地隐藏起来,不动声色地完成工作。因为对于这些内容,我们更希望让空间的使用者们,在不经意间的发现与感动。他们传递出来的故事才是真实的表现。
办公空间与公共空间被前厅与展厅划分成两半,动静得以区分。用大量的原始材料,同时又通过安静与简洁的处理方式来传递美学与空间情感部分。尝试着用一种最基本的方式解决问题,关于对平衡的表达则是阐述人与空间的本质,或者说是人与空间的一种关系。悬挂与垂落是平衡在美学上的某种表达方式。空间与材料之间通过艺术装置呈现中心视角的聚焦与精神传达。
作为暗示,在空间中刻意的抹上了一丝红色与蓝色,接下来的颜色都由故事的发起者们填充,我们只是带上第一笔色彩。接待区域用立体雕塑取代了平面岩石LOGO的方式,相对更艺术化的传递。不锈钢与石头的组合让空间变得相对严肃和稳重,相反艺术装置的处理让空间变得更戏剧化和幽默感,这是也属一种平衡,也正是整个空间设计的最核心的内容。
我们尝试尽可能少一些元素去表现空间,更希望通过设计过程与体验过程去深入到照片之外捕捉不到的画面。空间叙述性的手法是我们一直在探寻和实验的其中一个方向,从故事线的带入能让一个空间更具有生命力与存在感,并且是未知的。也希望通过材料本身的特性以最真实的呈现来带到空间的质感,例如玻璃、不锈钢、木头、石材。
最后,关于这个空间本身还是让它自己对来访的人一一介绍,关于这个空间设计与落地过程中结识的那些人儿,这是一段美妙的开始,一段故事的序源由空间而起,我一直感恩这一切,多么美好的一切。
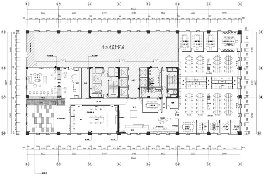
平面图
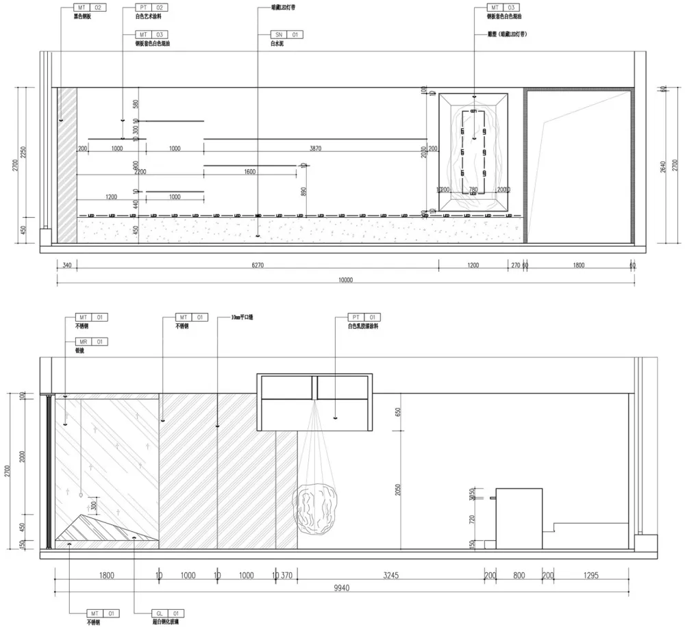
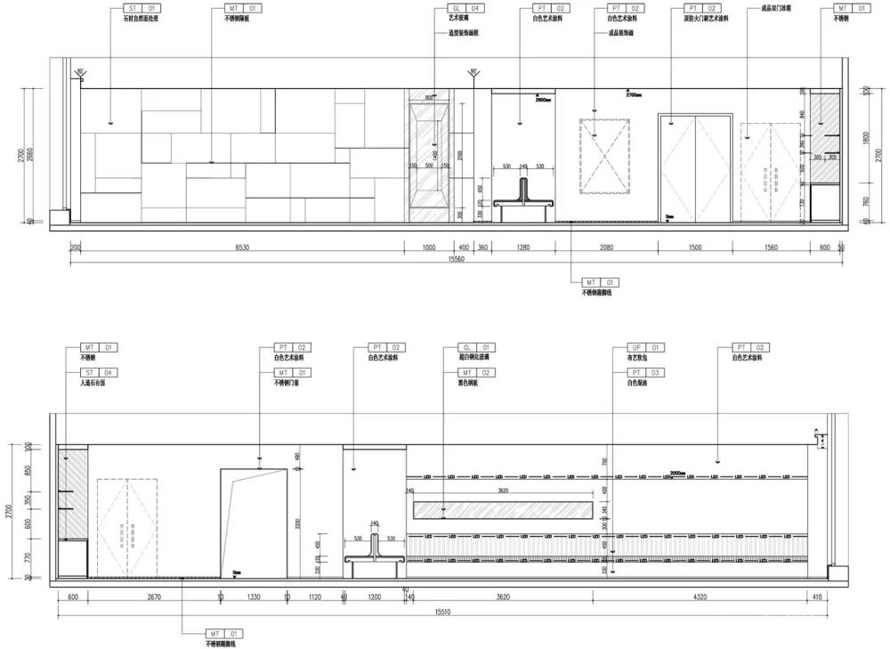
接待区立面图
项目名称:GENESIS ROCK
设计单位:I.F.S.E. SPACE CREATIVE LAB
主案设计:朱啸尘,凌宗生
设计团队:柴尔焕,卢黔兰,蒋冠航
软装单位:TANS ART
软装团队:陈琳,江汀,黄鑫杰,陈杉
项目类型:办公空间
项目规模:1600m2
施工单位:杭州艾丽蒙特工程有限公司 | 陈海建
项目摄影:施峥
委托方:CRCM VENTURE
项目地址:杭州新加坡科技园
完工时间:2019/01
撰文:朱啸尘

