感谢来自 重庆山点水建筑设计事务所 的餐饮空间项目案例分享:
“圆则杌棿
方则啬吝”
天圆则运动变化,
地方则收敛静止。
一动一静、一收一放之间
不满不溢
蕴含着回味无穷的东方平衡美学


一轴入口
两枝韧竹
几许片石
这番柔软雅致
只要你来
就与你温和相拥

踱步至前厅
又见一方豁然明朗
“故人具鸡黍
邀我至田家”
字里行间尽是好客之道
满目眼前还有清山柔水
纤细不失韧劲的雅竹
朴直还带谦和的挂轴
一股向上的力量跃然眼前



空间如人
方圆的圆
是圆润
是融通
是人心的柔软
以柔情待人
用方正律己
一眼到底的层层复圆
似由内而外的柔软涟漪
温和静谧地迎接每一位来者



我与邻桌
卡座与包房
都用这片色调柔软浅淡、
温润喜悦的孔状隔断区别开来
恰到好处的距离
兼并着隐秘与通透




我们和自然
有着与生俱来的亲近感
几支骨正筋柔的绿植
与薄帘上的水墨君子交相呼应
给麻辣鲜香的川菜味蕾再调几分清爽
如此轻灵惬意的就餐氛围里
体验一番味动心静的感官盛宴

这世间
色、声、香、味、触、法
六尘齐备
这般美好
我们愿意以和待之
拙淡中不失乐天达观
做善意的、有温度的情感空间



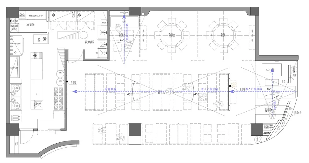
∇ 平面分析

主要项目信息
项目名称:思味堂意境川菜餐厅设计
项目地点:中国 . 重庆 . 江北区财信广场
项目面积:140㎡
完工时间:2019年7月
项目造价:60万元
设计单位:山点水建筑设计事务所
服务内容:空间设计
主持设计:袁新智


谢谢分享