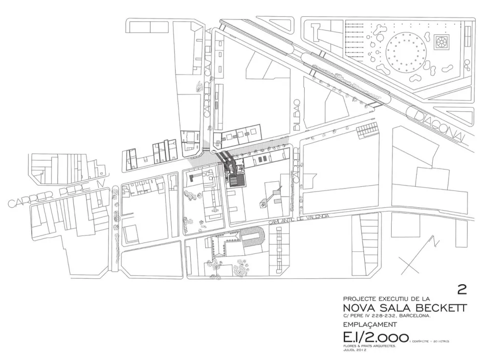
该项目是对一家根植于波布雷诺(Poblenou)社区记忆的老社交俱乐部“Pau i Justícia”进行的改造,俱乐部在之前很长一段时间内是当地邻里举行婚礼庆典、初领圣体以及聚会派对等活动的场所,然而已经很多年不再使用了。现在俱乐部的大门再次向社区敞开,邻里定会意识到记忆中的空间被赋予了新的功能:一家剧院以及一间戏剧学院,一个可以进行戏剧创作的狂欢之地。

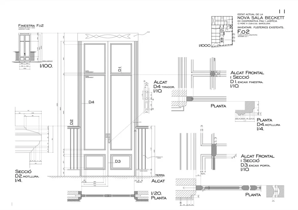
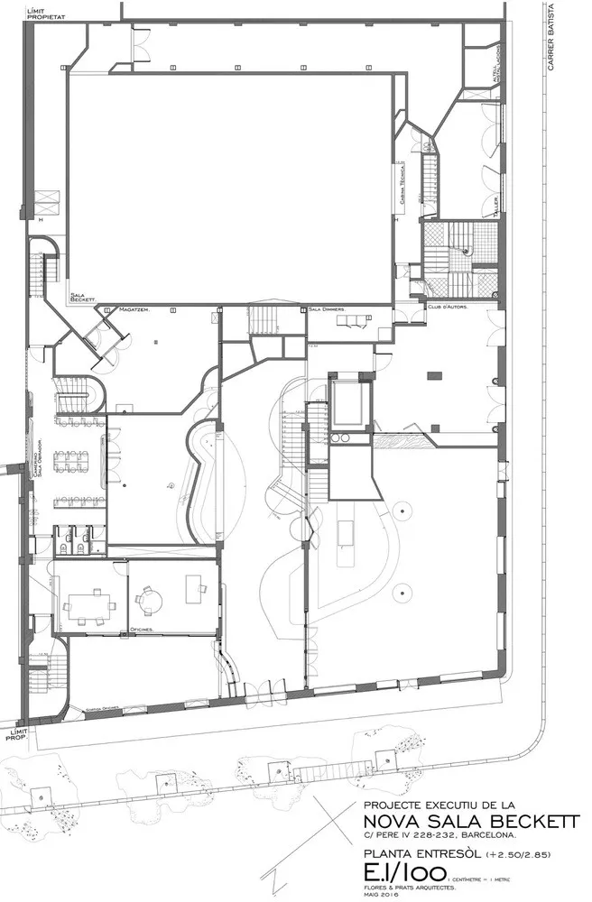
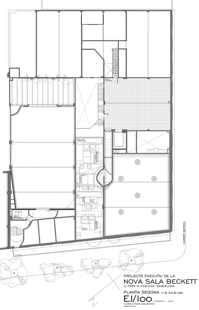
整个设计过程都秉持着对于前社交俱乐部的最高尊重,基于对现存空间与装饰的研究分析创造戏剧中心的新氛围。诺达的门厅通过连续的开洞连接了所有的楼层,也使整栋建筑在内部漫游视线中完整地呈现,参与者一旦进入便会被其吸引而环顾四周,产生与其他参与者邂逅的机遇。因此,门厅成为一个充满不确定性的室内空间,所有关系与交流都在不经意间产生,尤其是在许多转弯、角落及长凳处……真正的戏剧活动蔓延在整栋建筑中而不是仅仅局限在展览与表演空间。

















建筑师 : Flores & Prats 地点 : 2923.0 m2 主创建筑师 : Flores & Prats 项目年份 : 2014 摄影 : Adrià Goula
版权声明:本文内容由用户自行发布上传或投稿由设计芝士代为发布,版权归原作者所有,设计芝士不拥有其著作权,亦不承担相应法律责任。如果您发现本站中有涉嫌抄袭或侵权的内容,请点此提交工单进行举报,一经查实,本站将立刻删除涉嫌侵权内容。


谢谢分享