Tasou Associates翻修了这个建于1850年代的小仓库,为9 Jeffrey’s Place创建了一个充满阳光的办公室。Tasou Associates的介入打开了Jeffrey’s Place的大门,引入了更多的光线,利用了符合建筑工业历史的工业材料。
A small, neglected warehouse built in the 1850s has been renovated by Tasou Associates to create the light-filled 9 Jeffrey’s Place office in London.Tasou Associates’ intervention opened up 9 Jeffrey’s Place to bring in more light, making use of industrial materials that nod to the building’s industrial past.


改造之前,这栋两层楼的建筑被改造成一个陈旧的工作空间,但由于未能处理建筑黑暗、残缺的布局,该工作空间很快被废弃。Tasou Associates对Jeffrey’s Place进行了大修,拆除了建筑,露出了原来的结构。
The overhaul follows an earlier adaptation of the two-storey building into a dated workspace, which was shortly abandoned as it failed to tackle the building’s dark, truncated layout.Tasou Associates began its overhaul of 9 Jeffrey’s Place by stripping back the building to expose the original structure.
通过这样做,他们发现了“历史的各个层面”——从错落有节的砖墙、一扇旧的装货门,到街面上摇摇欲坠的吊车——这些都反映了当时翻修的细节。
By doing so they discovered “layers of its history” – ranging from patchwork brick walls, an old loading door and a crumbling hoist at street level – which informed the details of the renovation.


在内部,一个由折叠钢制成的中央楼梯在地面层和一层同时作为中央隔断。
Inside, a central statement staircase made from folded steel doubles as a central partition on the ground and first floor.
这样可以在不浪费走廊空间的情况下创建半私人工作区,并保持开放式布局。
This creates a mix of semi-private work areas without wasting space on corridors, maintaining an open-plan layout.


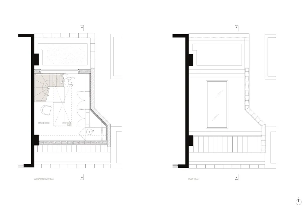
上方,Tasou Associates谨慎的在屋顶扩建部分合并了一个私人办公室。从建筑物的前部退后,从地面几乎看不到它。
Above, Tasou Associates has incorporated a private office in a discreet rooftop extension. Set back from the front of the building, it is barely visible from ground level.
扩建部分覆盖了黑色锌板,这参考了建筑的工业遗产,并通过大窗户和天窗将光线通过楼梯井射入下方的空间。
The extension is clad in black zinc to reference building’s industrial heritage, and punctured by large windows and a skylight that channels light down into the spaces below through the stairwell.


Jeffrey’s Place的所有空间都采用简单的材料调色板装饰,包括裸露的砖、浅灰色的石膏板、橡木和胡桃木的细节。
All the spaces in 9 Jeffrey’s Place are decorated with a simple material palette, including exposed brick, light grey painted plasterboard, and oak and walnut detailing.
室外也使用了木材,建筑的立面以滑动木百叶窗为特色,呼应了建筑原有的正面,有助于控制居住者的隐私。
Wood has also been used outside, and the building’s facade characterised by sliding timber shutters that echo the building’s original frontage, and helps to control its occupant’s privacy.







∇ 平面图 plan


∇ 建筑外立面 elevation

∇ 剖面图 section

主要项目信息
项目名称:JEFFREY’S PLACE
项目位置:英国伦敦
项目类型:建筑改造/办公空间
设计公司:Tasou Associates
摄影:Rory Gardiner

