承载着人们对宁静的向往
GENERAL VIEW
远眺着雁荡山的日起日落
感受着大自然的壮丽柔美
TRANSPARENT
中庭顶部的圆形玻璃天窗
使“池”“月”“天”融为一体
建筑曲线的引导中感受空间的意境
水泥漆保持了空间简素的调性
浅色实木地板给人以链接大自然的温度
角落放置的老木头、老门板、点缀的绿植
给空间增添了一丝生机野趣
整个咖啡馆没有过多的装饰
更多的是咖啡与自然带给人们的精神交融
空间散发着朴真的艺术美感
只剩下平静以及对大自然的神往
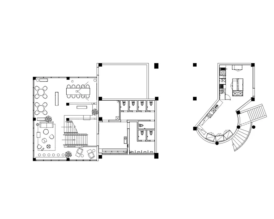
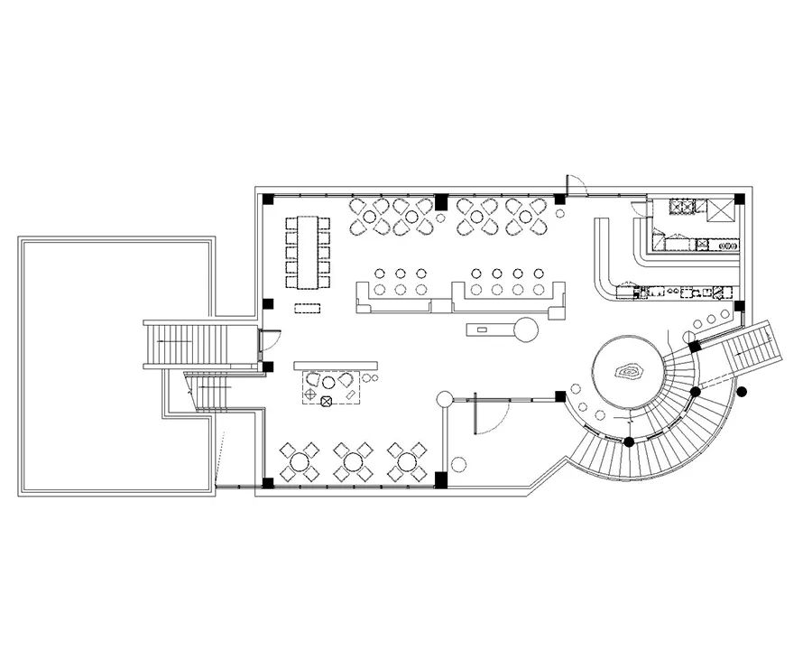
-1F平面图 P. 22
项目名称:虎头山咖啡墅
主创及设计团队:徐晶磊 周毅
MAGNUM OPUS

