© Jaime Navarro
© Jaime Navarro
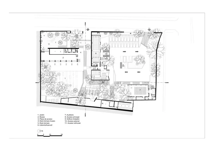
原为殖民地的 Coyoacan 街区包括有墨西哥一些著名的文化机构,而新建的世袭遗产国家中心(Center for Patrimonial Heritage)也将成为其中一员。这个中心旨在将一处私有综合体转换为公共空间,因此,一个合理的设计策略是将整体打散,并原有的功能组织到较小的低层建筑中,最终表达出特定的设计风格,同时保护原有的树木植被。所以这个中心将会分散在四个不同的建筑中展示:博物馆与工坊、保护工作与办公楼、礼堂,以及咖啡厅与图书馆。在对现有树木植被进行加固之后,我们继续进行了项目分区和布置。在“分散”的概念下,我们决定将各个建筑连接并组织在开放空间周围。这样我们希望游客在游览过交错的花园、广场、小路、庭院等空间之后,最终可以发现一系列建筑元素和形象在眼前展开。在总体造型审美的组合上,一些较大的实体建筑物与另外一些被认为是半透明或透明的体量形成有意的反差。这里的设计很大程度上是在节能、美学、使用者活动几方面权衡而得出的结果。
© Jaime Navarro
© Jaime Navarro
根据建筑师,尽管设计的一部分是直接或间接地参考了 Emilio Ambaz 和 Francisco Machado 的建筑理念,但站在设计的角度上,这些假想的影响来自大学城(University City)40年代末至50年代初辉煌的先锋现代建筑。在这些设计原则中,可能与 CU 有关系的是严格的轴线式布置,通常是通过使用坡屋顶、檐或凉棚,用当地山谷的火山石以传统做法制作墙体,最终以能够让人联系到建筑元素(如石柱廊或步道)的简洁体量来完成操作。相对地,整个项目的核心和主要的概念在博物馆的漂浮画廊设计中得到了最佳的体现。通过把这个体量本身想象成一件艺术品,我们将它作为了整个综合体的核心展品,在咖啡厅的露台上可以获得其最佳观赏效果。画廊的分光表皮可以根据光的色温和强度(室内及室外)来分解光谱的颜色,创造出有机、多变,如同万花筒一般的效果,也暗示着墨西哥民间艺术所使用的锐利而鲜艳的色彩。项目的策划者们还在玻璃上加上另外一层——一层大型的平面花纹,这层花纹如同漫射光栅,为建筑带来了纹身的感觉。这个表层系统将室内外的关系、光影与空间的联系扭曲,让游客进行一场精神感受上的游览。
编辑:韩爽 翻译:冯雨萌
© Jorge Rodriguez Almanza
建筑师 Victor Marquez
地址 Calle Salvador Novo 9, Santa Catarina, 04010 Ciudad de México, CDMX, Mexico
建筑面积 5705.0 m2
Category 遗址保护
厂家 加载中……

