菲茨罗伊梯田是对菲茨罗伊北部边缘一处破旧的双层梯田的复杂改造。设计本身通过有意设置的门槛和内部空间的垂直旅程,在新旧之间呈现出一种真正的“模糊”。这反过来响应一个限制性站点,其解决方案最好在小节中获得。
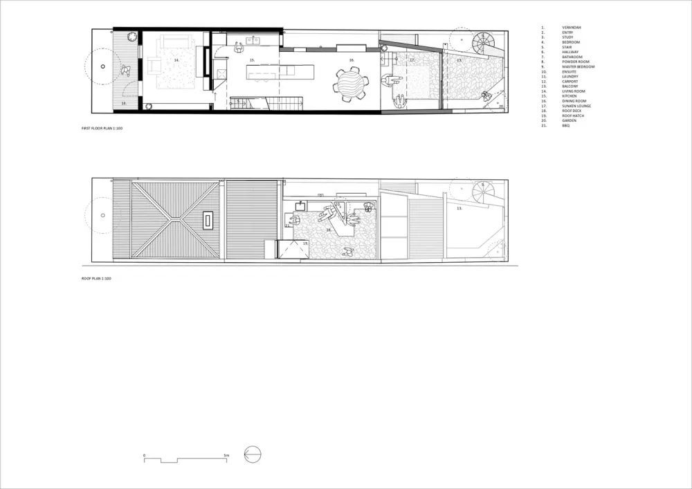
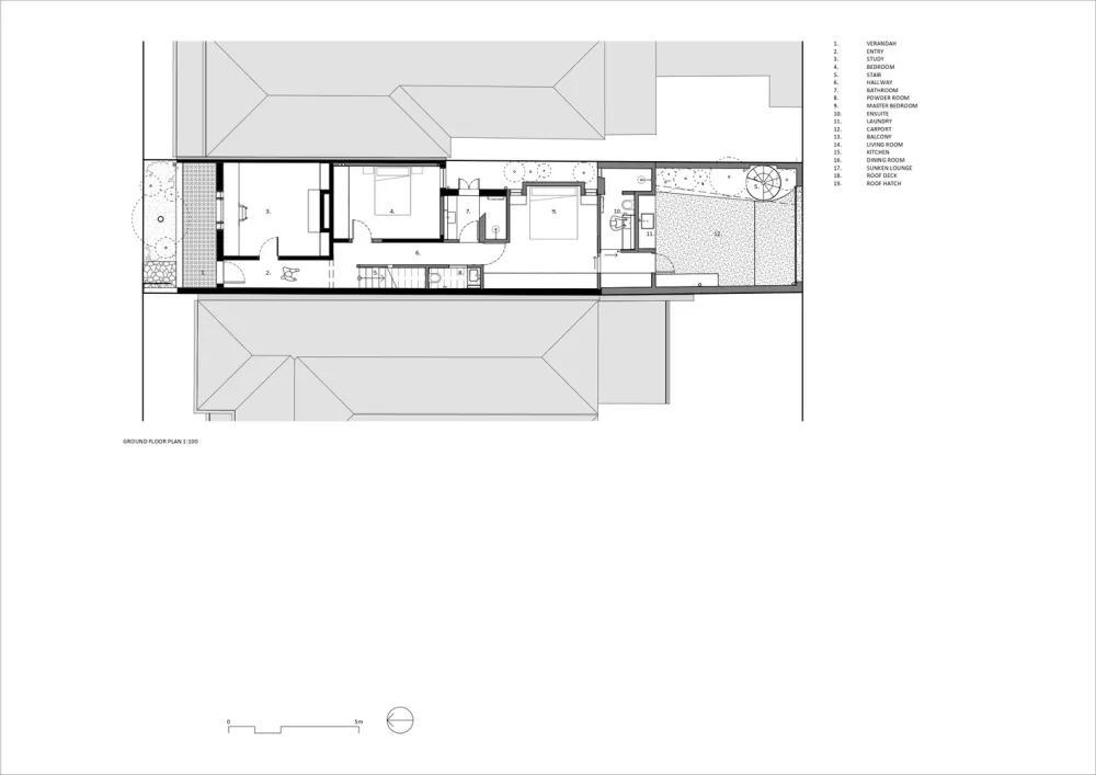
典型的大多数平台项目——的任务处理深度,狭窄,两边锁由双层高方墙壁,和固有的困扰与问题的黑暗,潮湿,通风不良,我们的方法迅速关注注入光深回家的足迹通过一系列的采光量和空缺。此外,室内空间也重新考虑了“倒置生活”的原则,将原有的布局翻转过来,将生活空间提升到一层,以充分利用改善的采光、自然通风和朝南和朝北的有价值的一面。
在住宅建筑中,人们越来越多地意识到(和期望)经过深思熟虑的、有抱负的设计,为此,这个项目真实地反映了社会对提升我们日常体验的东西的集体渴望。除此之外,项目简介的核心是创建一系列灵活的、分层的空间,以适应客户不断变化的生活方式——用于包裹平静的珍贵时刻,以及与家人和朋友共享的其他时间。我们处理这方面的策略是介绍一系列起伏的地板和天花板形式;简单的压缩和膨胀工具-捕捉亮度和蒸馏黑暗-并庆祝阈值之间创建。
同样地,客户也敏锐地意识到视觉接触自然对幸福感的积极影响,因此特别热衷于在每一层引入户外空间。反过来,我们的回应是轻轻地将新增加的部分向南逐渐减少,尊重邻居的舒适,在地面形成一个柔软的花园楔形,并从上面欣赏。一楼的露台也为内部生活空间提供了郁郁葱葱的遮蔽背景,新的屋顶平台提供了向南的城市景观。
考虑到场地具有挑战性的物理限制,我们与结构工程师紧密合作,确保满足整体设计方案和被动原则。
特别引人注目的是,一楼的5米宽的边界到边界,两层高的板形混凝土天花板,然后在餐厅和起居空间上形成一个更亲密的尺度。值得注意的是,这个新的上层是自由和开放的,结构元素整齐地隐藏在窗户框架和光滑的细木工。
抛光材料和头顶上的原始混凝土波纹之间的这种协调,只是形式、实用主义和工艺的复杂相互作用的一部分,这使得这个项目成为与我们有价值的顾问和贸易人员一起工作的如此有益的经验。
Architects Taylor Knights
Location Fitzroy, Australia
Category Houses Interiors
Project team Peter Knights, James Taylor, Julie Sloane
Photographs Peter Clarke

