如果将天体融于空间背景,将电竞赛事赋能于餐饮文化,将思维精神隐性其中,那么此处将不仅是建筑空间之内的新奇,更是自由的呈现,天体现象点缀饱满了空间,现实环境与天体轨迹的“交错”在这里发生,营造出了一个体验式的潮流空间。


空间的迷人之处,在于其不仅能承载一座城市的底蕴与历史的痕迹,同样也绽放着时代的自由与新生的力量。
本项目位于中国成都太古里商圈,紧挨着春熙路,一个是百年商圈,百业争抢的黄金地段,一个是新晋高端商业街区,在这两大黄金地段的边上开一家火锅店,不仅要面对众多品牌火锅店做出自己的特色,还要面临其本身的客观难题:项目处于二楼,是一个极其低矮的空间,层高不足2.5米,当设备通过后空间更加低矮,那么如何解决项目本身的制约,并用好项目自带的赋能资源?


项目紧邻量子光电竞场和滑板广场,这是一个年轻、时尚、充满活力的社区活动中心,如果能结合周边量子电竞的赛事直播,为九里火锅的环境营造赋能,无疑是最佳的。
于是,设计师有了一个大胆的想法:何不把九里火锅置于一个宇宙异度空间的游戏场景中去?正好,天体运动留下的轨迹成为了思维发散的线索,这也成为整个空间设计的创意源点。
∇ 设计灵感


汪宏将空间类比为一个宇宙游戏场景,在整个空间中拉出一条轴线,让混沌的天体变得有序起来,于是各式各样的天文现象在空间中生成,比如日冕、月食、彗尾、轨迹等。
场景的设置不仅确立了主题,同样也是突破空间先天制约的有效手法。采用镜面不锈钢材质运用于天花,通过镜面的反射,拉伸空间的高度,使得原本仅有2.5m层高的空间在视觉上获得拉升,成功解决低空间极易造成压抑感的问题。
在初步构思之时,设计师就对空间进行了探索性和引导性的实验,如何将空间有效的去引导与传达,如何将艺术、电竞、天体轨迹融入空间,成为空间的一个和谐组成部分,是设计师想要创新设计的关键点。
∇ 空间模型演示动图

∇ 空间构成分析


为了契合人类当前对天体的认知,汪宏采用了弧线来呈现出星体圆形的空间构成,通过装置化的空间处理手法,将整个卡座区打造成了类似太空舱的圆形容器。落座其间,小环境把人包裹在里边,原本低矮的空间给客人带来安全、亲切的用餐感受。
设计师希望以形态线条和光影的变化,去打破界限,以勾勒出思维和空间的自生性,来满足人们对未知天体的想象,对成都火锅、窗外青瓦的物化眷恋。
在材料的选择上,汪宏以拉丝面灰钛来折射出星球“虚”的影子,彗星的彗尾就因此而生,依托想象力,成功实现了从照明灯具到彗星的转变。光线透过冲孔铝板,通过其表面的肌理漆导出,显得特别柔和,创造出“实”和“密”的感受,把虚无的宇宙遐想拉回现实,让客人在背景主题的想象与环境的存在之间,随意自由切换不同的体验获得。








这里是成都的时尚潮流中心,楼下便是滑板广场,即邻量子电竞广场,最难得的是窗外那一片青瓦屋面的存在是本案意外的惊喜。
窗户外的青瓦,是老戏院的屋顶,屋里是老戏迷们的活动场所,这里不仅仅年轻人很喜欢,老人们也在这里一边听戏一边用餐,享受空间带来的感观体验。这就是九里火锅的潮流前沿与骨子里的“很地道”、“很成都”。
设计师用了几扇窗,便将这不可思议的一幕串联成了一幕真实的场景。由此,九里火锅便把消费群体从原本年轻时尚的青年消费群体,成功延展到了另外一个年龄层次的消费群体身上。汪宏说,他只是打开了一排窗户,便达到了令人惊喜的效果。







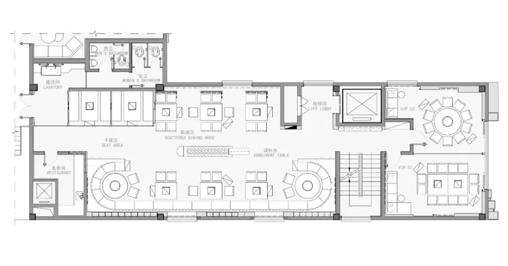
∇ 一层平面图

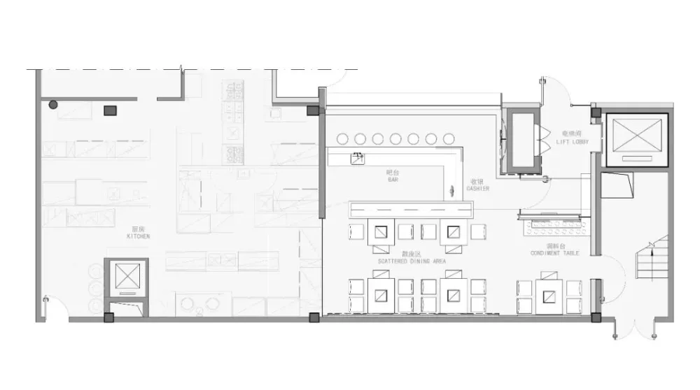
∇ 二层平面图

完整项目信息
项目名称:JIU LI HOT POT
设计公司:成都万谦集环境艺术设计有限公司
空间设计:汪宏 郭楠
软装设计:许冬梅
照明设计:阿特露祺 & 欧未照明
设计时间:2018年10月
完工时间:2019年6月
项目地点:中国 成都 太古里
项目面积:380㎡
主要材料:灰钛不锈钢、镀膜玻璃、铝板
空间摄影:形在建筑空间摄影 贺川

