项目是单向空间书店位于秦皇岛阿那亚社区的新址,一间面积为590平方米的海边书店。设计内容包括外立面改造,室内设计与景观设计。

设计对于空间的想象,最初源于“孤独”。当人们远离城市的暄嚣,独自身处海边,面对自己,孤独感瞬间被成倍放大了。与传统书店不同的是,设计企图创造一个以人为单元的互动空间。在 原有梁柱结构不变的前提下,采用“包裹”和“消解”的方法,将不同功能的深灰色木质的盒子穿插其中。这些形态大小不一的“盒子”赋予原本单一的空间更丰富的延展方式,令读者在随意游走中完成对空间的趣昧探索。既可以隐于一个人独处的小盒子,沉浸于一个人的冥想,也可以走入更开放的空间,遇到新的朋友产 生交流和互动。这些“盒子”给了人们选择孤独的机会,也带来相 聚的可能。


书店主入口和外摆区的景墙由混凝土现浇而成,混凝土自然的表面肌理给人粗粝又有温度的感受。高低错落的墙体和植物营造出的过渡空间,将外界的纷扰统统阻隔在一方墙外。当读者由外至内穿过这一区域,内心也从外界的暄闹自然转换到阅读所需的安静里。
材料运用上,保留了原建筑混凝土的粗犷氛围,搭配深灰色木皮,原色钢板与水磨石等自然朴素的材料,营造出独特的,属于 海边书店的独立冷静的氛围。


阿那亚单向空间书店的设计,不止是一家书店,更是一个场域和氛围。将公共空间与私密空间分解、并置在同一场域,让每一个 读者与自我,与他人共享一个界限模糊的思考空间,产生情感共鸣。这是一种对阅读空间新的探索,也是在快节奏的时代里对于思考和交流的重新认识。















∇ 概念图



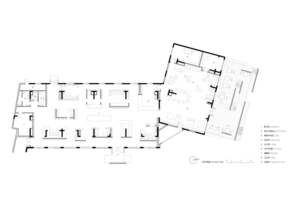
∇ 平面图

主要项目信息
项目名称:Oak Tree House
项目地点:中国河北秦皇岛
项目类型:商业空间/书店
建筑面积:590㎡
完成时间:2018
设计公司:B.L.U.E. 建筑设计事务所
设计团队:⻘山周平,藤井洋⼦,刘凌子,杨⾬嘉,曲海波
摄影:吴清山

