喝拿铁咖啡的美妙之处在于它清新的香气,另一个美妙之处在于它内部缠绕的漩涡图案。我们看到这些漩涡在由Enter项目设计的LOT 1咖啡馆、酒吧和餐厅的建筑上得到了转化。这家咖啡馆位于澳大利亚悉尼,以其朴实无华的建筑和室内设计脱颖而出。“在咖啡行业工作了3代人,客户热情地接受了设计理念,使用精致的花边图案作为臭名昭著的‘拿铁咖啡’的主要设计灵感。建筑师说。
“漩涡”贯穿整个空间,在功能上连接并在视觉上包含所有部件。数字制作的澳大利亚本土木材被用来创造这个从墙壁到天花板和柜台的设计。
在成为这家咖啡馆之前,这里是一家零售商店,而在那之前则是一家仓储设施。整个结构被剥离回原来的样子,裸露的砖块、砂岩墙、旧钢结构和木柱。通过简约而优雅的室内设计,可以看到所有这些特点。“新形式的连续性巧妙地将现有的特征并置在一起,光滑的澳大利亚硬木贴面通过适应性的照明方案进一步分层。”
“精心的空间规划使相互连接的咖啡店和餐厅内的人流量最大化。咖啡馆后面是私人休息室和楼下的便鞋,地下室夹层是露天餐厅。“动态几何与三维曲线交织在许多空间中,确保项目不能从一个优势点理解,”建筑师解释说。
餐厅的设置和咖啡馆一样富有创意,但在设计上有所不同,充满了浪漫而质朴的风格。红色和酒瓶与墙壁和横梁的原始外观形成对比,似乎确定了空间的氛围。
绝对令人震惊的是,这个项目竟然没有使用施工图!“从构思,到早期效果图和3D模型,再到激光切割和CNC,只有3D模型被使用,没有施工图或传统的平面图和剖面图。其结果体现了概念上的漩涡,即建筑、品牌和用户之间的对话。”
“这个设计方案是室内设计的典范,它将令人惊叹的美学和一个给定空间内的全部功能结合在一起:使用非正交几何,它提供了一个对其功能和环境保持响应的形式。”严格的空间规划要求房子的前后都有明确的定义,但微妙的调色板创造了一个舒适和大气的环境。几何形体的体操需要完成多种功能,包括服务、座位、隐私和照明。”
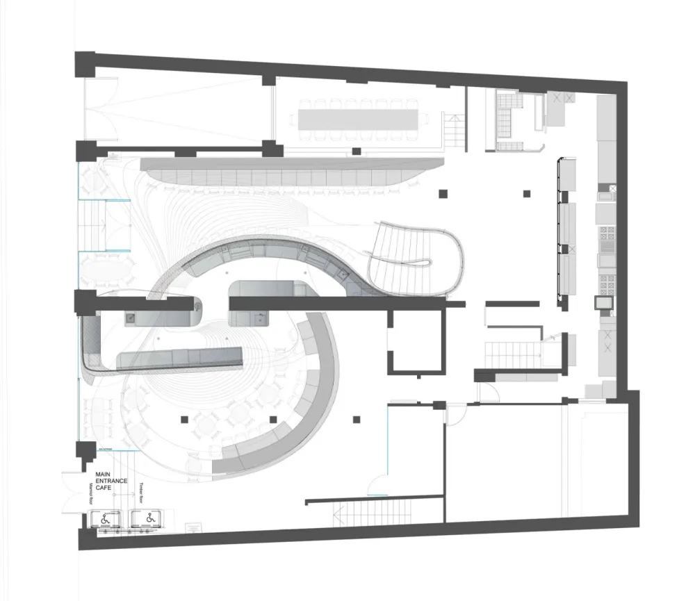
▼平面图
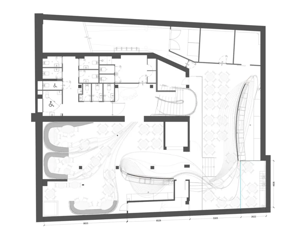
▼空间示意图
Project Information :
Architect : Enter Projects
Location : 20 York St, Sydney NSW 2000, Australia
Project Year: 2016
Total Area : 945 sqm

