一个简约温暖的居所便就此诞生
所有的温情脉脉,一切的栩栩如生
关于美好生活的秘密都藏在其中
天气渐渐转凉,路过街角的时候能偶遇一树的金黄,秋日的浪漫正向我们靠近,一切事物似乎都柔软起来。这是个疗愈的季节,在快节奏的日常里,弥足珍贵。今天向大家推荐的案例同秋天再合适不过,一样的温柔,一样的治愈。
男屋主是摄影师,女屋主是婚礼策划师,对美的追求贯穿于他们的日常生活,所以对新家的颜值有所要求,同时也希望新家能够安静、隽永、舒适、开阔,并不惜牺牲掉一间卧室,改为餐厨一体,宽敞的空间更方便2人5猫日常的自由活动,让轻松自在的温馨氛围,在这个温馨小家弥漫开来~
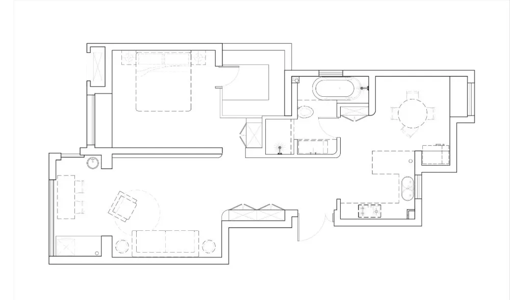
户型:两室一厅一厨一卫
原户型为两室一厅一卫的结构,存在次卧狭窄,入户拥堵空间局促等问题,考虑到屋主的生活习惯,以及这套房子只有两人居住,也很少有客人留宿,因此做了以下改造。
1. 打开次卧、改变厨房入门方向,餐厨一体设计,让空间更开阔明亮,动线也更为合理;
2. 利用部分走道空间扩充卫生间空间,打造更大的沐浴空间;
3. 将阳台的空间与客厅相结合,靠窗摆放书桌,摆放足够的柜子满足收纳需求;
4. 主卧的衣帽间用玻璃砖材质作为界线,空间独立的同时保证主卧采光。
玄关左侧是一整面墙的鞋柜,复古的百叶窗设计,温和的颜色,为空间增添了平静安稳的氛围,这里是一切温柔的开始。
入户后就能一眼望见客厅,大面积低饱和度的奶茶色,轻轻地将归家的旅人轻轻拥入怀中。对于小户型来说,选择相近的色系在视觉上会更为整齐和谐,减少拥挤,给人以开阔感。
低饱和度的奶茶系配上微水泥艺术漆的自然质感,再搭配上同色系的地砖,温柔的气息轻轻荡漾开来。地砖下铺设了地暖,即便在冬天也能在家中光脚行走,有种直达内心的暖意。
没有华丽的吊灯,没有刺眼的白织灯,取而代之的是柔和舒适的暖光源,昏黄的灯火让人卸下了疲惫,身心轻松。
整个设计遵循“没有太多视觉思想负担”的思路,除了大面积低饱和度的奶茶色系,还融入了很多柔和的线条家具、原生态的自然元素,巧妙地将这些元素融合,营造出一个他们专属的治愈天地。
除却一张大的布艺沙发以外,木椅、藤椅替代了相对体积占地的单人位沙发,茶几也是轻盈的树墩造型,再加一张剑麻地毯,自然而慵懒。也为猫主子们提供了游乐的场所。
午后的阳光,照进了生活
客厅与阳台之间用拱形门做了空间上的划分,同时也形成了自然的过渡连接,两者融为了一体。让客厅的视觉效果更宽广的同时,还保证了采光。
柔和的纱帘营造了宁静的氛围,一张宽大的实木书桌置于其中,搭配两把简约的椅子与几本趣味盎然的书籍,阳台就成了一个小型书房,满足两个人同时使用。
质朴复古的风格,在柜门缀以黄铜元素,在细节处增添精致感。
家中的椅子都是设计师和屋主精心挑选而来,藤椅、中古折叠椅、实木椅……独一无二,从不重复。左侧的百叶实木储物柜,复古精致,且容量十分可观,将杂乱藏于无形,令空间更为清爽自在。
敲掉次卧合,令空间更为开阔自由
弧形元素在每个空间都有体现,保证了整个空间的统一基调,以及连贯性,在视觉上也给人一种轻松惬意的度假错觉。
设计师考虑到家中只有两人居住,将本就狭窄的次卧让渡给餐厅,从而形成一个餐厨一体的开阔空间。大面积的大地色系配以扇形花砖,仿佛置身于一部午后的老电影。
软糯的色调,白纱窗和水培绿植,多了一份静谧禅意。莫兰迪色系花砖从地面直接延伸到墙面,扇形的设计不落俗套,颜色搭配上也十足温柔,跟整体的气质相协调。
圆形餐桌依墙而放,不占地,也足够两人使用,风格复古材质温润,是夫妻两人用餐、喝茶、畅聊的最佳地。
紧邻餐厅的半开放式厨房,U型布局留出了充足的操作空间,除了日常的料理,还能用于放置咖啡壶等小型电器,提高生活中的幸福指数。一株姿态疏朗的绿植,一站温暖昏黄的复古台灯,为小小空间增添无限生机。
吊柜与顶面选用了相同的色系,减少了小空间的压抑感,无把手、按压式的顶柜也让整体的视觉效果更加简洁。
洞洞板、吊杆等收纳小物件是让小空间井井有条的必备法宝。
家电的设计对于整个空间的和谐统一也非常重要,复古的款式,相似的色系,让温柔跟随每一烹饪的过程一起蔓延。
秉承着化繁为简的原则,卧室没有遵循传统的设计方式,没有背景墙,有没有床头柜,甚至选用了低矮款的床体,轻松将视线往下拉,释放出了更广阔的空间。
卧室的飘窗同样采用了拱门的设计,用微水泥来营造贴近自然的舒适感,透明玻璃瓶里简单插一枝鲜切吊钟,寥寥数笔为房间勾勒出一抹绿意,临窗小坐,宠物相伴,格外惬意。
床边的一角同样被规划成了一个充满随意感的精神角落,摆放着屋主收藏的书籍杂志,睡前的闲读一伸手就能满足。
在这里书籍的堆积,并没有给人以杂乱的印象,反倒让这个角落更加迷人,对于家里书多的朋友来讲,不失为一种收纳的方式。
衣帽间的门进行了加高的处理,轻微的错落打破了视觉上的沉闷。墙体选用了玻璃砖的材质,光线能够肆意穿梭,让整体的视觉效果也更加开阔。
在衣帽间的部分,设计师抛弃了传统的柜体储物方式,选用了宜家储物系统。大面积的挂衣架,搭配收纳盒,打造出一个清爽又实用的储物空间。
拱门元素同样被运用到了卫生间的设计上,实木的拱门自然清新,与复古的扇形地砖相呼应,独具韵味。
卫生间的内墙、地面、顶都用了一体的色调,视觉被无限延伸,小空间却不让人感到压抑。挂壁式的马桶、定制的极简洗手台,组合起来让视觉上更加的轻松。
值得一提的是,为了跟整体有更好的搭配,一体式的洗手台是设计团队现场制作的,连排水坡度都经过精心的测量,方便日常的打理。洗手池的整体颜色与墙面和谐一致,用线条流畅的黑色金属龙头作为点缀,清爽大气。
嵌入式的浴缸被设置在角落里,周遭保留了平台空间,方便放置泡澡时的各种物品。点上气味馨然的香薰蜡烛,用音响播放一首轻柔的音乐,在角落里享受独属于自己的浪漫时光。
侘寂风与简约温暖的复古风相结合,打造出了如此一个朴素却充满烟火气的家。置身于窗明几净的屋子,捧一杯最爱的热茶,同爱人谈天说地,屋外的风雪只是今日的美景,悠然闲适,夫复何求。无需奢华,不用修饰,朴素大方也能美得令人心醉。
策划 / Vivian
图片来源 / 熹维设计

