| 这个一人居,满足了我所有的想象!
致力于全案服务模式,在落地管理上始终保持高度的前瞻性和严谨。多个团队默契配合,不断探索研究,管理迭代,使设计更高效率高品质落地实现,从而形成独有的市场竞争力。 ——研己设计
今天的故事位于安徽省芜湖市, 主人公是一位在读研究生小姐姐, 经营着一家自然芳香疗愈馆。 这位姑娘对生活的认真与热爱、 对美好事物的积极主动和满怀憧憬, 给设计师留下了深刻印象。 俩人在充分沟通之后, 设计师重新思考每个空间的含义, 充分将她的生活习惯与功能需求融入其中。
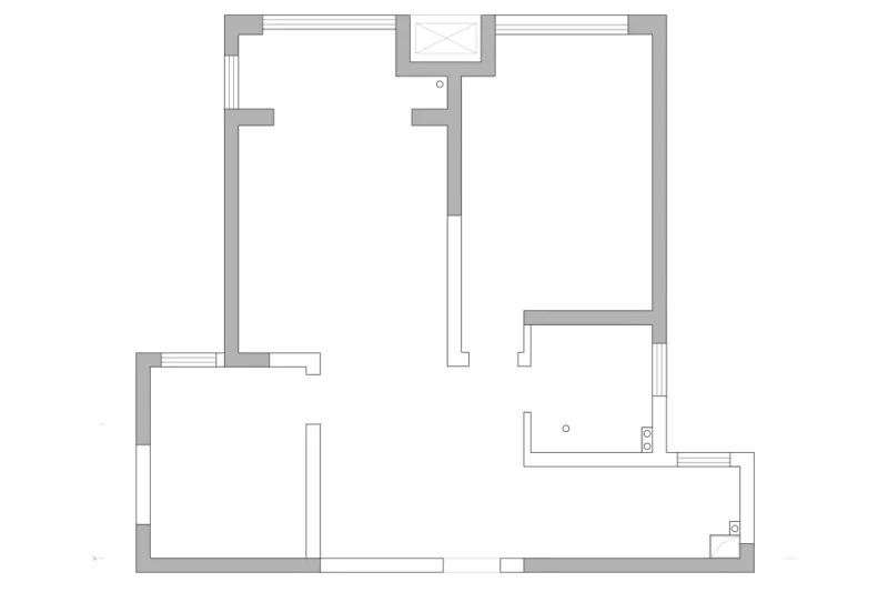
姑娘的家面积91㎡,原户型是两室, 平常家中就姑娘自己住, 因此这个适合三口之家的户型需重新整合。
主要问题和改造需求: 1、入户门正对主卧门,私密性不足; 2、两间卧室的配置不适合屋主独居的情况; 3、喜静的屋主有看书的习惯,需要充足的书柜空间; 4、对衣物收纳有较高需求,希望有大大的衣橱。
针对以上问题,设计师一一做了改善:
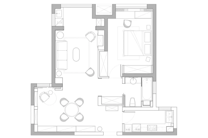
改造要点提示: 1、在入户门与主卧门中间新置一道墙体,保证主卧的私密性的同时,增加玄关功能。 2、原次卧墙敲除,入户区的边柜延伸到整个餐厅区,转角是一整面的书柜墙。 3、将阳台移门敲除,阳台与客厅融为一体,视觉上更加宽阔。 4、主卧设置三组衣柜,满足屋主的储衣需求。
进门左手边是由原次卧改造来的餐厅, 入户区的边柜一直延伸到餐厅, 兼具鞋柜 餐边柜 置物台的功能, 进门便于随手放置钥匙等小物品。
餐桌选用圆形木桌,桌腿的圆球装饰 呼应了整个空间轻复古的优雅调调。
小户型的空间,功能复合是妙计, 这里的餐厅同时兼具书吧 休闲厅功能, 大面积内嵌式书柜足以容纳屋主的爱书。
闲暇时分,静坐于此,读书发呆, 窗外的微风拂起温柔的白色蕾丝窗帘, 空间中白色与木色的交汇犹如一杯拿铁, 不经意间焕发出香醇的生活滋味。
泡个下午茶,点上幽幽香薰, 美好生活的一百种可能, 亟待屋主一点点发现。
留心观察你会发现, 这个空间中大量采用了弧形元素: 弧形转角的门洞、椅子, 圆圆的桌子、沙发和灯具, 一切都将这个家烘托得更加温柔。
采用围合式布局的客厅, 内敛又温馨,符合空间整体格调。
圆敦敦的皮沙发有种安全的包裹感, 铺上厚实的毛绒地毯,可坐可卧。
一人小憩或三两好友聊天的午后, 围坐在一起,怎么舒服怎么来。
将客厅通往阳台的移门敲除, 让阳台与客厅融为一体, 光与风自由畅通地流动着, 小空间也能有无比宽阔通透的效果。
客厅没有传统的电视机, 适度的留白给未来投影仪预留位置。
斑驳的艺术漆、复古的铁艺门、 还有经典又耐脏的地板花砖, 搭配出一个高颜值又实用的厨房。 不规则的壁龛,平添了几分艺术气。
卧室入口前面的墙是新设的, 避免了进门正对卧室门的尴尬, 且两面都有储物功能—— 面朝入户门处作为玄关柜, 面朝卧室门则是一整面通高柜, 大件被褥床品、过季衣物都安置于此。
阳光极好的睡眠区, 肌理质感遍布每个角落。
借助优越的窗台采光布置书桌, 简洁却实用,亚麻台灯和藤编椅, 传递出度假般自然慵懒的氛围。
多样化的照明布置, 随时切换不同生活场景, 搭配简单舒适的床品, 去除华而不实的装饰, 最大化还原卧室睡眠的本质。
在保证空间舒适尺度的前提下, 适度扩张墙体,最终置入三组衣柜, 满足了爱美的屋主的心愿。
为节省空间,卫生间使用了墙夹移门。
卫生间采用清爽的薄荷绿, 符合整体温柔的浅色系, 搭配大理石又更显干净轻奢。 利用墙体厚度挖出三个小壁龛, 趣味十足又能收纳洗浴用品。
高颜值的长虹玻璃和百叶窗, 为小小的空间增添了线条的韵律。 当百叶翻动,阳光洒落宁静的瓷砖, 烘托出雅致谧静的氛围。
这个极致温柔的浅色系小家, 将复古、优雅、自然、舒适糅合, 氛围调得恰到好处。 当大片的阳光透过白纱帘, 穿过弧形的门洞落在每一处角落, 光脚行走家中,自由安排时间和心情, 这大概是每个女生对于一人居 最温暖和完美的想象了。
项目总花费:22w(不含电器)

