感谢来自 深圳壹方空间设计有限公司 的住宅项目案例分享:
生活美学
肇庆四会是岭南地区的千年古邑,因“四水会流”而得名,受广深珠区域的利好辐射,地块发展潜力可期。面对这一山水宜居之地与新旧融合之势兼而有之的理想片区,四会保利和悦江山别墅样板间,为当代都市人群提出蕴含东方生活智慧的全新居住构想。
本案由壹方设计同华南保利携手打造,反思当下的“网红”式设计,逆向回归居住本身,力求从生活的细微处着手,结合现代手法和艺术语境阐述地域文脉与情感归属,引领未来城市居住空间的理想范本。

东方清雅与摩登时尚的极致融合
该户型以城市进阶新贵追求品质与闲适生活为诉求,设计师借鉴中式园林的障、透、点手法,进行淡韵清雅的场景演绎。
主厅用通高的条形木格栅充当屏风和背景,并贯穿到其他功能区的窗栏细节,制造隔而不断、移步易景的雅趣体验。




贝金米黄大理石温润而遒劲,有着隐约可见的自然肌理,铺垫墨色山水般的空间基调。一尊深色的墙壁挂件成为点睛之笔,抽象主义的轮廓蕴含柔性的力量,与散落于空间各处的陈设装置构成连续性的后现代混搭艺术。



契合当代人居需求的场景演绎
空间的布局规划最大化地遵从人体的居住尺度,各功能区依照开放式的建筑语言和行走动线而设,构建忠于生活日常的简练场景。
客厅、餐厅及厨房等公共区域实现一体化的流畅衔接,以当代美学格调的构图与铺陈,凸显设计笔触之下的意境之美。






家具的搭配与选择也显现设计师的整合功力。中国传统的方圆文化被提取为家具形制,经由简约的造型语汇和轻奢材质,将知性、个性与艺术感升华为一种多元共生的居住方式。结合安放于角落的各式绿植盆栽,与户外的山水绰影相映成趣。



居住者精神与情感的诗意安放
书房是人类思想的栖息地。长矩形的桌台上书籍与文具有序排列,组合式的大型书架墙将时光浸染的收藏摆件精心陈列。
在素雅的底色氤氲下,一切都以静谧安然的姿态存在,经由设计手法的平衡诠释,显露着源自东方风雅的文士情结。






卧室作为偏私密的区域,在延续东方清雅之意的同时,以更朴素而细腻的细节处理隐现生活的温度。
东方意象的床头饰面串联起房间的情感主线,搭配雅致的贴身布艺和微小物件,渗透出休憩之所的柔软与舒适感,也将质感空间的生命力娓娓道来。














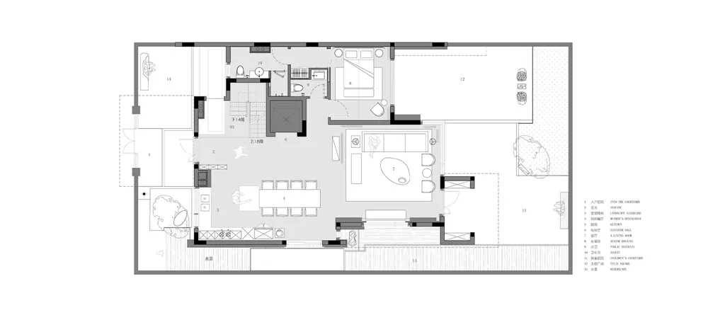
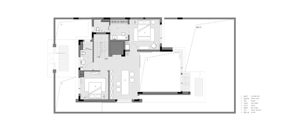
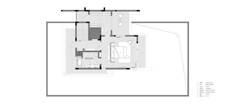
∇ 平面图



完整项目信息
项目名称:保利和悦江山别墅样板间
项目性质:别墅样板间
项目地址:广东肇庆
项目面积:269平方米
硬装设计:ONE-CU壹方设计
软装设计及执行:ONE-CU壹方设计
完工日期:2019年5月
项目摄影:三像摄影 张静
特别鸣谢:华南保利实业有限公司江肇公司

