摄影间与裁缝间 ©尔我空间设计研究室
临近和距离,触摸和感受,当下和想象,提供一个使人沉浸和愉悦的外表,使得我们的眼睛和所有的感官被诱醒,去形成一个从进入开始的完整的体验感。
▼项目概览 ©尔我空间设计研究室
▼摄影间与裁缝间 ©尔我空间设计研究室
对于项目的原空间来说,挑高空间的钢结构搭建,自然形成了很多序列。这些序列竖立或斜立于空间中,降低了空间原始的设计可能。婚纱的质感形容是柔美轻盈和圣洁的。在后期的设计过程中,我们需要去处理钢构和空间三维面之间的各种关系,去建立空间的曲线以在视觉上隐匿秩序带来的肃穆。
▼婚纱展示区 ©尔我空间设计研究室
▼空间的曲线在视觉上隐匿秩序带来肃穆 ©尔我空间设计研究室
▼不同形式的曲线曲面元素营造出多样的展示空间 ©尔我空间设计研究室
其次,采光面单一,外立面无法做任何的开窗改造行为,大尺度的空间内向,这些都影响了空间的光线,而对于一个关联着婚纱服装和妆容的空间来说,光显得尤为重要。我们尽可能的自由窗户可以射及的空间,去制造任何可以洒进阳光的缝隙,配合空间的曲面和高度去呈现白月光一般的皎洁和神圣。
▼楼梯间 ©尔我空间设计研究室
▼可以洒进阳光的缝隙,配合空间的曲面和高度去呈现皎洁和神圣 ©尔我空间设计研究室
▼走廊 ©尔我空间设计研究室
我们想把婚纱作为空间的主体去衬托,而白色作为婚纱的主色系,我们有刻意规避白色去营造空间圣洁的氛围,以大面积的裸色去迎合和凸显婚纱的气质。
▼天花板细部 ©尔我空间设计研究室
▼地毯与墙面细部 ©尔我空间设计研究室
▼一层平面图 ©尔我空间设计研究室
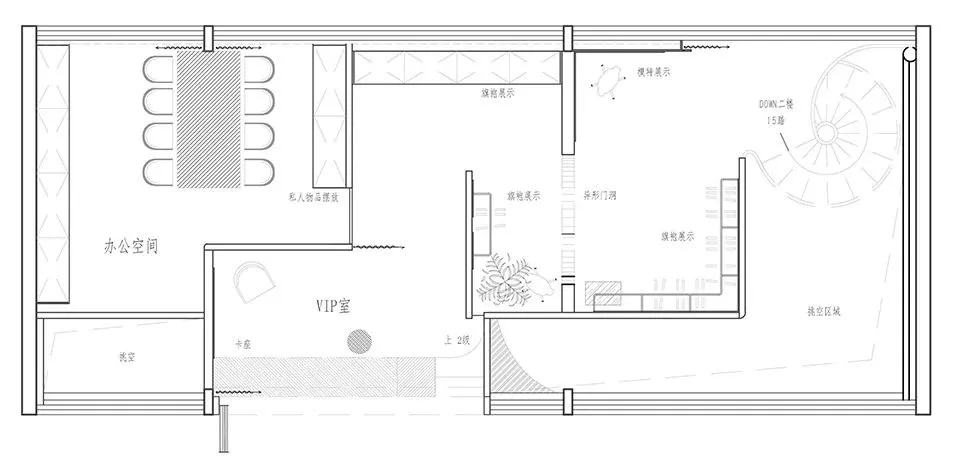
▼二层平面图 ©尔我空间设计研究室
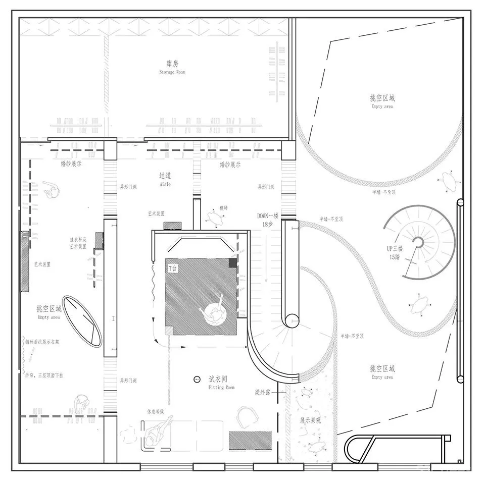
▼三层平面图 ©尔我空间设计研究室

