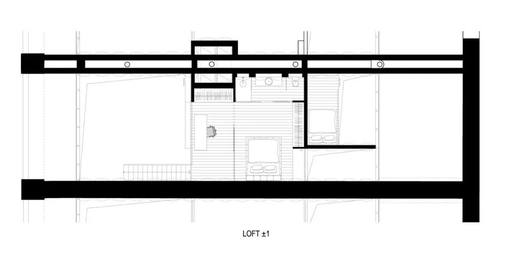
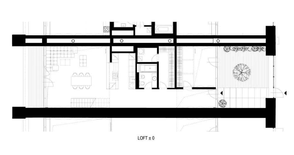
在布拉格的holešovice区,这座废弃的遗产建筑曾经是第一家市政啤酒厂。CMC建筑事务所将这座啤酒厂建筑改造成一个私密的、向外开放的空间,用于创造和现代住宅,表达了一种工业精神。经过改造的建筑可容纳四十个阁楼公寓–其中一半是原装的工业阁楼。其中六间阁楼是在建筑的前部分改造期间建造的,十四间位于对面广场的新扩建部分。
in the holešovice district of prague, a derelict heritage building had once housed the first municipal brewery. the building once used for the fermentation and storage of beer has been revitalized by CMC architects into a both intimate and outward-looking space for creative and modern housing, expressing an industrial spirit. the converted structure accommodates a total of forty loft flats — half of which are authentic industrial lofts in original storage units. six lofts were built during the conversion of the building’s front section and fourteen are situated in a new addition facing the square.


室内设计的特点是未粉刷的砖墙表面,钢制楼梯,钢制书柜,混凝土地板和以哑光黑色完成的桶形拱形天花板。设计团队旨在保护建筑的旧工业特色,并为现代生活创造一个舒适的生活空间。
the interiors are characterized by unplastered brick wall surfaces, a steel staircase, a steel bookcase, concrete flooring, and barrel vaulted ceilings finished in matte black. the design team aimed to preserve the building’s old industrial character and create a comfortable space for modern living.









∇ 平面图


∇ 剖面图

主要项目信息
项目名称:industrial lofts
项目地点:布拉格
项目类型:住宅空间/loft公寓
项目面积:120平方米
完成时间:2019.06
设计公司:CMC architects
主持设计师:vít máslo, david r. chisholm
设计团队:evžen dub, gabriela sekyrová, nela niederle
摄影:boysplaynice


现在这个浮躁的世界,能细心整理一些东西发上来的越来越少了。要么就是敷衍的图片,要么就是枯燥的文字。之后就是AI生成的预制菜类的打包便捷快餐了。感谢楼主的分享,让我能在大智能无人化来临之前,看到同类发出的项目。有幸与您互动,缘分。