Mantab Workplace是S/LAB10的最新成果之一。该团队对现有平房进行了全面的内部改造,在设计最终方案时,团队被要求为马来西亚吉隆坡当地的一家房地产开发公司重新检查东南亚气候和当地的办公室/工作区类型。该公司不仅需要为其不断壮大的团队提供一个工作空间,还需要一系列接待和招待客户的空间。因此,现有的单层、多层的旧住宅被改造成一个闪亮的企业中心,为一个私人实体无缝地融合了商务和休闲。
在Mantab Workplace中,最引人注目的是其闪闪发光的大胆外观。在安静的郊区街道上,金铜合金立面若隐若现,从建筑的地面上升起,隐蔽地保护着内部。磨砂表面的三角面和高度抛光的金铜合金表面看起来是随意的,但本质上是从公司的名称和品牌中推断出来的。从马来语翻译过来,“mantab”的意思是坚固;一种不可动摇的完整性。
设计师们把这比作钻石的坚硬——没有任何一面与之相似,却充满了无可挑剔的耐寒之美。灵感也来自马来西亚的店屋乡土折叠铁百叶窗,金铜合金包覆的折叠板铰链和可操作。无论是半开半闭,内部向外眺望郊区,还是完全封闭,以保护隐私,避免热带强光的照射,立面都是引人注目和迷人的,它的魅力让许多游客猜测内部是什么。
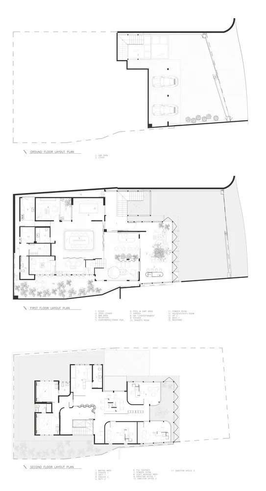
设计纲要不同寻常:在建筑内创建一系列空间,以适应从商业到社交的各种用途。因此,S/LAB10的任务是修订和挑战办公室类型学的规范。新项目将包括该公司三位董事的办公室、一个陈列馆和众多招待客户的休闲空间。
为了满足客户的需求,团队不仅重新设计了上述内容,还设计出了一个视觉冲击力强、功能实用的综合设计方案。
该项目继承了住宅的基本结构(这在处理场地的自然陡坡方面被证明是有利的)。在适当的位置,是一个灵活的发挥悬臂体量,对比表面,材料和纹理,以及考虑使用和设计的错综复杂的细节贯穿始终。



建筑师S/LAB10 Location Bangsar, Kuala Lumpur
位置马来西亚
品类办公室领导
建筑师Jason Sim
设计团队王浩、徐福永、肖丽姿
主承建商WM
家具及装修Sdn Bhd

