面向年轻人的全新立体社群:独立建筑师“黑家”携手创意地产品牌“兆阳地产”倾力打造针对年轻人的全新立体社群 – 佛山兆阳O立方青年联合体。“创想空间”位于这座超高层建筑的顶层,也是青年联合体计划的重要组成部分。
工作&生活 Work & Life 工作与生活,一个老生常谈的话题。生产手段的改变及效率的提高借助高速网络的介入,使我们“工作”与“生活”的界限变得越来越模糊。被“碎片化”的时间要求单一空间不仅要具备功能的灵活多变,甚至要求各种生活及工作场景同时存在于其中。
“私密”与“开放” Private & Open 日趋成熟的高速网络环境及终端科技,在重新定义着传统意义上的“私密”与“开放”。物理上的“私密”及网络上的“开放”渐渐成为年轻人们的新常态,生活如此,工作更是。
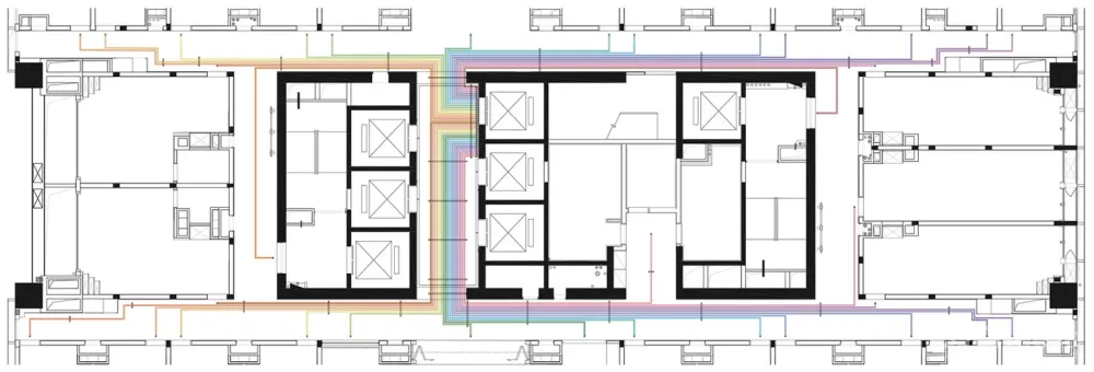
“有色”与“无色” Colorful & Colorless “效率”永远都是组织一个工作场景的核心,如何诠释“效率”则成为了营造各类工作场景的关键。“彩带”即为“无色”空间里的视觉点缀,也是带领“到访者”最快速的到达“目的地”的导视系统。
“粗”与“细” Rough & Smooth 不同的材料的“密度”在同一光环境下塑造出截然不同的空间氛围。


















平面图
彩色管道布局
项目名称:兆阳O立方热点实现社 设计:黑家设计 联系邮箱:17731551@qq.com 项目设计&完成年份:2017年~2018年 主创及设计团队:黑家设计 项目地址:广东省佛山市禅城区朝安南路52号 建筑面积:1450平方米 摄影版权:南图建筑空间摄影
版权声明:本文内容由用户自行发布上传或投稿由设计芝士代为发布,版权归原作者所有,设计芝士不拥有其著作权,亦不承担相应法律责任。如果您发现本站中有涉嫌抄袭或侵权的内容,请点此提交工单进行举报,一经查实,本站将立刻删除涉嫌侵权内容。

