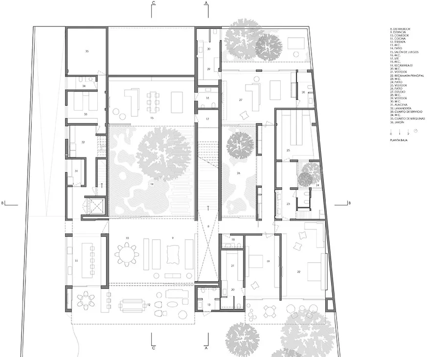
位于瓜达拉哈拉的一个居民区,地势崎岖,几何形状奇特;该项目从一个花园的想法开始构思,一个清晰的意图,体验住在树周围的感觉和与自然的持续接触。
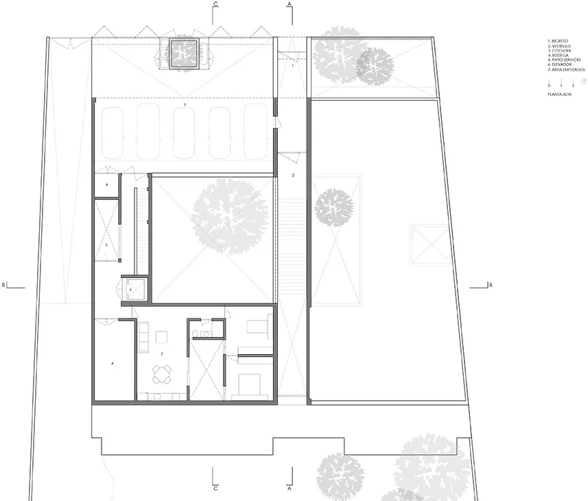
两个主要的轴线划分了房子的不同区域(白天和晚上),其中一个包含了突出的楼梯,它既是入口也是接待处,但也将服务从其他房间中分离出来。

景观景观总是由战略性位置的窗户和强调突出植被的大型滑动窗户构成。

房子的氛围有激发温暖的意图,所以我们用物质作为这种感觉的主要导体。石头、木材、大理石和土色产生了布局感,丰富了气氛,使房子更令人愉快。













位置:瓜达拉哈拉 摄影:César Bejar
版权声明:本文内容由用户自行发布上传或投稿由设计芝士代为发布,版权归原作者所有,设计芝士不拥有其著作权,亦不承担相应法律责任。如果您发现本站中有涉嫌抄袭或侵权的内容,请点此提交工单进行举报,一经查实,本站将立刻删除涉嫌侵权内容。

