吉隆坡阿丽拉酒店位于这座城市曾经的殖民地布里克菲尔德街区和新兴街区孟沙的交界处,新与旧的街区之间体现着过去与现在的联系。酒店包括一座塔楼的地上一层和顶部的八层,其中设有五层客房区域和三层公共区域。如恩负责酒店部分的建筑和室内设计,采用整齐的方格结构贯穿建筑外立面和室内空间,并通过这种规律的格式框定出酒店不同功能空间的界限。


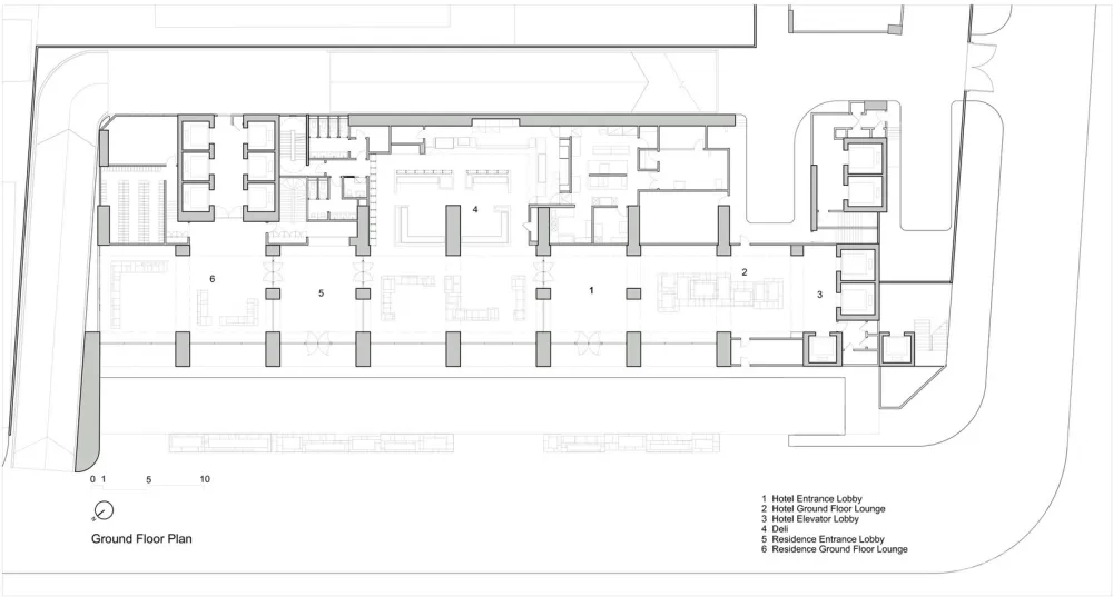
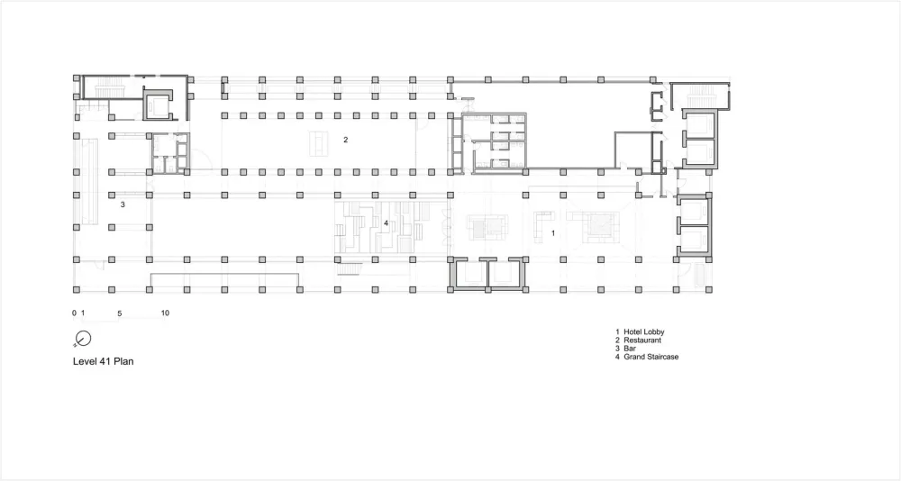
地上一层也采用同样的方格结构,包括酒店的入口和顶篷。进入一层的空间,人们仿佛立刻置身于布满茂盛植被的“城市绿洲”。到达42层的酒店大堂后,双层挑高的空间和延续的方格结构构成一盏巨大的“灯笼”,点亮周围的城市景观,也为酒店内部空间带来充足的自然光。
走出大堂,人们可以沿着一条设计颇具戏剧色彩的阶梯进入泳池的区域,阶梯本身也成为一个可以观景的平台,而观景的人本身也成为风景的一个部分。于此,室内和室外之间的界限变得模糊,室外庭院也延续了方格结构,将人群聚集的空间置于酒店的中心。



酒店的公共空间围绕室外庭院依次布局,跨越三层楼高,由规则的柱梁组成,框定出吉隆坡令人惊叹的城市景观,同时也将室外庭院与都市的嘈杂隔绝开来。自然与建筑融合的景观概念从建筑外部延续至室内空间,成为串联所有公共空间的关键要素,也定义了“城市绿洲”的设计构想。



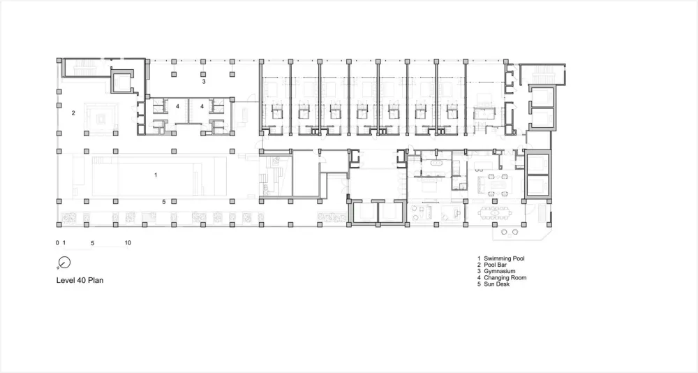
位于室外庭院之上的两层是特色餐厅、鸡尾酒酒吧和屋顶露天酒吧。围绕着室外庭院的各个空间以各自的功能制造出惊喜的体验,为酒店注入丰富的活力。定制家具和精致的黄铜元素为灰、白、木色基调的空间增添了恰到好处的点缀和细致美。













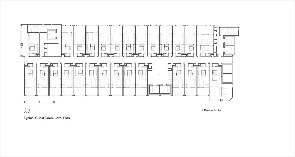
客房的设计着重于通过两种不同的元素界定空间布局:“小屋”和“室内庭院”。“小屋”的概念源自小的村落,小屋就是一个容纳生活日常的空间。浴室有如一个漂浮的盒子,置入“小屋”的结构中,同时形成自由穿梭空间的动线。
客房窗户的区域采用“室内庭院”的设计概念,形成一片私人的“庇护所”,让住客在这里休憩放松时,还能够欣赏到孟沙街区和更远处的城市景观。













∇ 地面层平面图

∇ 标准客房楼层平面图

∇ 标准客房平面图

∇ 40层平面图

∇ 41层平面图

∇ 侧立面图


∇ 背立面图

∇ 正立面图

∇ 剖面图



完整项目信息
项目名称:吉隆坡阿丽拉孟沙酒店
项目位置:马来西亚吉隆坡
项目类型:设计酒店/度假酒店
建筑面积:15000.0平方米
完成时间:2018
设计公司:如恩设计研究室
设计团队:Carmen Marin, Chiara Aliverti, Daisy Yuen, Suju Kim
主要负责人:Lyndon Neri & Rossana Hu
高级经理:Federico Saralvo
高级建筑设计师:Jacqueline min, Xiaofeng QI
摄影:Pedro Pegenaute
厂家:Grohe, Neri&Hu

