如今的商业随着网络信息的高速高效,竞争日趋激烈,特别是餐饮业,早已不再是酒香不怕巷子深的时代。设计方在为门店的风格定位前,先研究了业主的产品、受众顾客以及门店所在的商圈,在与业主的反复讨论后得出做一家符合年轻女生对时下流行元素审美需求的空间,是在这个商圈以及与业主的产品最合适的方案。
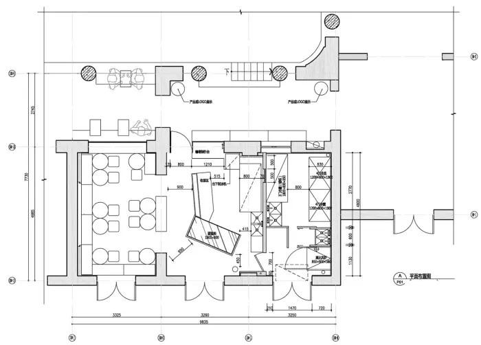
在空间风格达成共识后,设计方开始对空间布局进行规划。原始建筑空间在不大的实用面积内有4个出入口,对于客座的安排以及顾客的用餐氛围都有较大的影响。设计方将其中部分的门扇变成了展示客区氛围的橱窗,巧妙的使缺点变成了优点。同时设计方考虑到两侧入口都是顾客的主入口,将吧台与蛋糕柜做成了异形,使两侧的入口都是迎接顾客的景。
设计方在考虑具体的空间造型、材质、灯光形式时。了解到这个建筑的前身是美国海军游泳俱乐部,经过重新修缮与改造,作为商业体再次启用。设计方考虑到门店的面积并不大,但希望有足够的视觉吸引力,便决定大面积使用拉丝不锈钢冲孔板,配以多彩的霓虹灯,使不锈钢感染霓虹灯的色彩,无论是从室外或是室内都营造出多彩的美式风格,设计方的概念中心即邀请客人们来一场美式的泳池派对。
当今的商业项目,很多业主希望自己的门店能成为网红,即追求更多的关注度带来更多的客流量提升更多的销量,福木设计的负责人希望提醒各位设计师与业主需要先了解产品客群地点的属性,才能综合呈现出一个另人瞩目的项目,从来只有最适合的设计,没有最好的设计。
▼平面图
设计公司:福木设计(www.fumu-design.com)
位置:上海市
功能:商业空间
面积:45㎡
设计时间:2018年
竣工时间:2018年
设计主案:章静
摄影:Sam Wu


每次看都有不一样的感受,这个案子的色彩搭配确实很舒服。杂而不乱,甚至你还能感受到赛博朋克霓虹的感觉。
现在这个浮躁的世界,能细心整理一些东西发上来的越来越少了。要么就是敷衍的图片,要么就是枯燥的文字。之后就是AI生成的预制菜类的打包便捷快餐了。感谢楼主的分享,让我能在大智能无人化来临之前,看到同类发出的项目。有幸与您互动,缘分2
是不是一直复制,人就会变懒,变笨,第一次的复制粘贴,可能还略带羞赧,第二次再复制,内心的自责就少了一分,第三次毫不犹豫的ctrl+v 是那么的心安理得。回头一看,重复的留言已经700多条了。心安理得么?得到了什么呢?
人生本就短暂,走了除了家里三代人能记得,谁有会记得谁呢?反倒是这数字世界会多多少少留下我们的印记,然而周而复始的评论终究无法让人看上一眼,注定成为网络垃圾。
垃圾+1
昨天看到儿子在家里玩儿我的世界积木。突然发现小孩子每天都能摆出不同的造型,比之以前已经创造出很多有意思的空间设计了,除了地上建筑里刚需的客餐卧,还有地下室活动空间,储藏室,战备工具间。。。。。儿子是彩色的,而我的色彩饱和度越来越低了。