感谢来自 阿穆隆设计工作室 的酒店民宿项目案例分享:
北京周边有很多太过讲究的房子,讲究的千篇一律,讲究的太不讲究。瓷砖贴面、洋红粉蓝,总是那么出挑,这个项目原先也是这个样子。
钱不能花太多,所以用在山上拾的荆条子把建筑给裹起来,隐在山里,好看也遮阳。
塔房子用剩下来的脚手架顺手就搭在院子里,拉上遮阳的网子,日头出来的时候坐在底下,看着层峦叠嶂,美。
业主给他这个民宿起名叫“小也山谷”,但我更想叫它“野山谷”。
There are many houses around Beijing that are too fastidious, too uniform and too fastidious. Ceramic tile veneer, magenta pink blue, always so selective, this project was originally like this.
Money can’t be spent too much, so it is used to wrap up the building with the thorns picked up on the hill, hide in the hill, and shade the sun as well.
Tower house with the remaining scaffolding on the courtyard, pull up the shade net, when the sun comes out, sitting under, looking at the mountains, beautiful.
The owner named his house Xiaoye Valley, but I would like to call it Wild Valley.
∇ 改造前,Before transformation



∇ 外立面,facade



∇ 庭院,Courtyard

∇ 庭院夜景,Courtyard night scene

∇ 公共空间,Public space






∇ 黑色房间,Black room



∇ 白色房间,White room



∇ 银色房间,Silver room


∇ 木色房间,Wood room


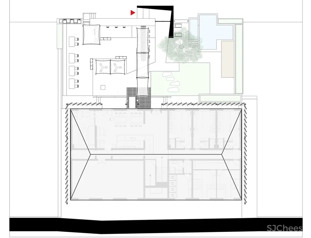
∇ 庭院平面图,Courtyard plan

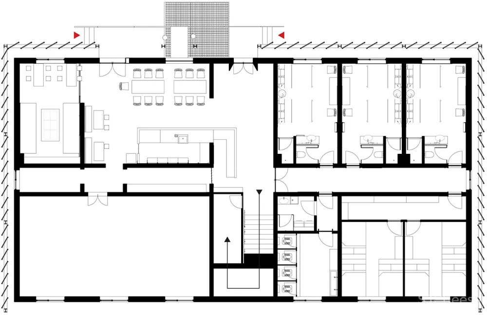
∇ 一层平面图,First floor plan

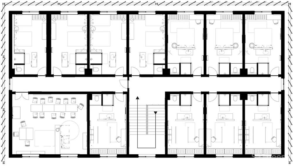
∇ 二层平面图,Second Floor plan

完整项目信息
项目名称:“XIAO YE valley”小也山谷民宿·延庆
项目地点:北京·延庆石佛寺村
完工日期:2018.08-2019.04
项目面积:850㎡
设计公司:阿穆隆设计工作室
联络邮箱:[email protected]
主创建筑师: 阿穆隆
设计团队: 宋小有,刘宠
主要材料:荆条,多层板,钢,镀锌板

