感谢来自 VMDPE圆道设计 的幼儿园项目案例分享:
如何利用空间解放幼儿天性? How to use space to nourish the (natural) curiosity of young children?
主持设计师程枫祺:“我们希望创造一个在室内空间,却能打破室内空间常有的规整,有序的有趣的探索空间。灵感来自于小时候对于孩子们的“秘密基地”的想象,像是蚂蚁窝在地下的结构一样,由一个个小路径联系着一个个小空间,充满乐趣。”
Lead designer Vinci Chan: “We hope to create an interior space, but to break something regular, to build an order and interesting interior space for exploration. The inspiration comes from the “secret base” children’s imagination during their childhood days, which is like the structure of ants nest underground, connecting small spaces with small paths and full of fun.”


狮子国际幼儿园项目位于广州市天河区的一个老社区内,周围环绕着老式住宅。社区本身缺乏幼儿活动场地,这里的孩子们急需一个舒适安全的环境来学习与玩乐。项目选址在一个仅有500平方米的老粮仓内,面对功能、空间与环境的多重矛盾关系,VMDPE圆道设计力图通过设计,突破周边环境和建筑空间的双重限制,为老城区内的孩子们创造一个健康、环保的可持续性成长空间。
The Lion International Kindergarten Project is located in an old residential community in the Tianhe District of Guangzhou. Surrounded by old-fashioned houses, the community itself lacks a venue for children’s activities. Children here are in desperate need of a comfortable and safe environment to learn and play.The project sits in an old granary with an area of barely 500sqm, and presents multiple contradictions between functionality, spatial distribution and environment adequacy. Through conscious design, VMPDE breaks away with the restrictions generated by the surrounding areas and the space available, to create a healthy and sustainable environment for children to grow.
作为一个鼓励幼儿自由探索的教育机构,狮子国际幼儿园遵循STEAM教育理念,即“科学,技术,工程,艺术,数学”多科学融合。教育理念与国际接轨,注重幼儿的全面协调能力发展,引领幼儿在自由探索的环境下,通过身体力行,培养自己的观察能力、解决问题的能力、合作能力、思维能力、沟通能力,乃至启发他们保护环境珍爱生命的社会责任感。基于此,VMDPE圆道设计公司将本案的室内设计与STEAM理念进行了无缝接轨。
Being an educational institution that encourages young children to explore with freedom, Lion International Kindergarten adheres to the STEAM education philosophy, a system based on the objective integration of “science, technology, engineering, art and mathematics”. Such educational concept is in line with international standards and focuses on the comprehensive development of coordination abilities at a young age. Accordingly, the kindergarten exhorts children to, through physical effort in a free environment, develop observation skills, problem-solving skills, communication abilities, thinking abilities and cooperation skills, all by themselves, further inspiring them to protect the environment and to cherish social responsibility. VMDPE designed the interiors of the project to seamlessly integrate with the STEAM concept.


拓展空间形态层级 Expansion of the hierarchy of space
项目改造前是一个老旧的仓库,面积不大挑高近7米,存在单侧空间开窗狭窄采光不足的问题。出于对儿童身体和心理健康的考虑,圆道设计决定扬长避短构建空间的大体格局——将空间分成两部分,前侧安排为课室,保证充沛的阳光;后侧将原有开窗扩大,增加透光度,依靠空间的层高优势,利用贯穿空间的大楼梯,划分出更多可以用来发展儿童天性的自由探索空间。
The site for the project was an old warehouse less than 7m high, with very confined areas, and a problematic narrow side that limited space to open windows and caused the obstruction of natural light. Concerned about the physical and mental health of children, VMDPE decided to extend the general pattern of the available space by dividing the area in two: the front side, arranged as a classroom with plenty of sunshine; and the rear side, an integral space with extended windows to increase the amount of light in the room. Taking advantage of the building’s height and the large staircase on the interior, more spaces were created for the children to explore and fully develop their nature.


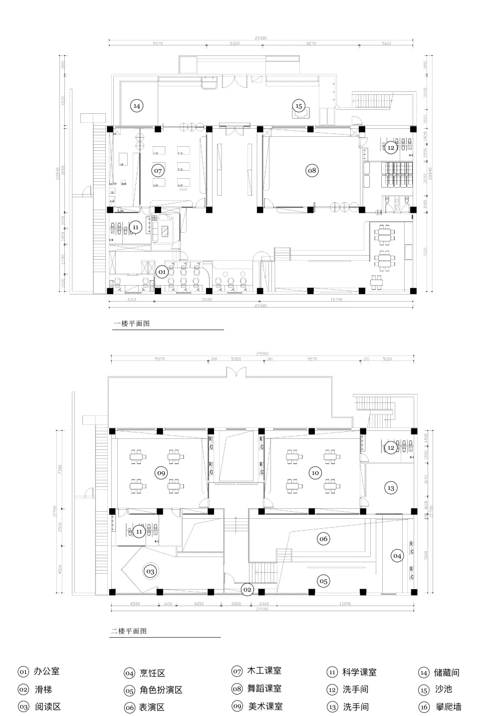
为了与国际教学标准结合,前侧课室分为上下两层:一楼设置木工课室和舞蹈课室,二楼设置美术课室和科学课室。通过合理的学习分区、多样化的师幼互动突出STEAM多学科综合教育的概念。后侧的自由探索空间通过空间内的主楼梯,将滑梯、儿童阅读平台、开放式儿童烹饪教室及角色扮演区等分段式穿插在空间内。
Following international education standards, the front was divided into two levels: the first floor, which holds carpentry and dance classrooms; and the second floor, which houses art and science classrooms. Such logical partitions highlight different interaction areas according to the concept of STEAM’s multidisciplinary integrated education. Furthermore, the rear side of the building was transformed into a free exploration space containing the main stairs, a slide, reading stations, an open cooking classroom, a role playing area among other segmented and intersected areas.




同时,一楼课室的门在打开后营造出一个可以组织小型演出或集体活动的户外空间。通过对空间区角的灵活化使用,在功能上对不同空间进行定位,丰富幼儿教育空间的教学内容,圆道设计在本案中的设计彻底弥补了中国国内幼儿教育空间一直以来功能性不明确且存在缺失的特点。丰富的室内活动区域,不仅可以诱发儿童的探索心理,也让他们可以自由选择,根据自己的兴趣爱好进行主观探索。
Moreover, the door on the first floor opens to create an area useful for small shows or outdoor group activities. The design of flexible spaces grants specific functionality to determined areas when needed, thus enriching the educational content available during early childhood. This case in particular was completely designed to improve the concept of early childhood education spaces in China which often lack specific features or clear functionality. Rich indoor activity areas not only help to induce the desire to explore, but also grant children freedom of choice, promoting subjective exploration based on their own hobbies.


可持续设计模块化 Sustainable design modularity
项目在设计上以原木色为主,用简单朴实的设计向孩子们展示出设计师和教育者的可持续性环保理念。由于圆道设计专业从事幼儿教育空间的设计,因此格外注重空间的环保性和安全性,采用模块化的设计方法是有效达到这一目的的手段。空间内所有的产品经过场外模块设计生产后,再在现场进行拼装组合,从而减少对场地的污染,降低对孩子的二次伤害,真正实现设计的可持续性目的。
The project mainly portrays natural wood colors in an honest, straightforward design that teaches children the importance of environmental sustainability, as it is promoted by both their educators and the design firm. VMDPE specializes in the design of educational spaces for children, with particular attention to safety and environmental protection, through the use of carefully planned modular strategies. To this end, all components are produced off-site. Only final assembly takes place in the building, reducing pollutants and achieving the sustainability goals of the design.
圆道设计认为,模块化设计手段可以有效控制设计和生产成本,通过定位空间的功能性,针对性地生产相关模块,在设计之初就可以大体给甲方提供整个设计投资做出预算。虽然该项目处于中国的一线城市,但这种成本适中、健康可持续的模块化设计对中国的二三线城市的教育空间市场而言具有很强的实用性和适用性。
VMDPE implements a modular approach to efficiently control both the design process and production costs. By allocating functionality of space, the production of related modules can be targeted at the start of the design phase, allowing the definition of an accurate budget for the entire project. VMDPE’s modular design approach features first-class, healthy and sustainable environments, and even though the project is based in a first-tier city, the cost is moderate and fully complies with the requirements of most educational systems for children in China, including operation and development needs. This approach is particularly suitable for high-end brands and chain kindergartens, and also provides guidance to the educational space design market of second and third tier cities in China.


儿童尺度精准细节化 Environment (and details) scaled for young children
在项目的细节处理上,设计师选择对幼儿友好触感的建材,家具根据各年龄层儿童的身高订制尺寸,空间内所有的电源插座与开关的设计也都定位在儿童接触不到的高度。对于中国幼儿教育场地一直缺失的户外使用空间,圆道设计也将室外不大的庭院功能化,以扩充孩子的活动区间。考虑到水、沙、石是幼儿最喜欢的自然元素,因此在户外设计了沙池和攀岩墙,这种设计可以迎合不同年龄段孩子的成长需求。狮子国际幼儿园项目充分体现了对幼儿发展和使用的思考与设计,打造国际化幼儿教育成长空间的设计核心。
The designer selected children friendly materials for every detail of the project. Furniture is custom-made according to the height of every age group. Power outlets and switches are positioned at heights that children cannot reach. VMDPE even provides a solution for the lack of outdoor spaces in children’s educational institutions, by expanding functions of the originally small courtyard.Taking into account that water, sand and stone are the natural elements that children like most, a sand pool and a climbing wall were designed outside the building. This caters to the growing needs of children of different ages. The Lion International Kindergarten Project truly embodies the development of young children. Through rationality and thoughtful design, the core of an international educational space for children’s development has been achieved.


随着近年来中国对幼儿教育的注重,圆道设计专业地做出了一个回应场地条件局限并符合品牌方国际化教育理念的幼儿园,它被寄望成为社区服务的一部分,以安全、健康、可持续为宗旨实现其社会职能。
With vast experience on early childhood education in China, VMDPE professionally solved the site’s limitations, allowing the kindergarten to meet the educational philosophy of the international brand. The kindergarten is expected to achieve its social functions in a safe, healthy and sustainable environment.

∇ 分析图

∇ 平面图

∇ 剖面&立面图

完整项目信息
项目名称:广州狮子国际幼儿园
项目地点:中国广州天河区员村507创意园
设计公司:VMDPE圆道设计
设计时间:2018.03 -2018.05
施工时间:2018.05 -2018.09
场地面积:700m²
建筑面积:500m²
室内面积:1000m²
项目状态:已建成
主持设计师:程枫祺
设计团队:张健,卢育纯
项目类型:建筑外立面改造与室内设计、灯光设计、道具设计
建筑结构:框架结构
建材及厂家品牌信息
灯光:Philips
地胶:LG
墙面漆:buoncolor
摄影:半拍摄影
文字:张森文字工作组
Project name: Guangzhou Lion International Kindergarten
Project location: 507 Creative Park, Yuancun Village, Tianhe District, Guangzhou, China
Design company: VMDPE
Design date: March – May, 2018
Construction date: May, 2018 – September, 2018
Site area: 700m²
Construction area: 500m²
Indoor area: 1,000m²
Project status: completed
Lead designer: Vinci Chan
Design team: Dio Chang,Lucy Lu
Project type: building façade renovation and interior design, lighting design, prop design
Building structure: frame structure
Information of building materials and manufacturers
Light: Philips
Rubber mats: LG
Wall paint: buoncolor
Photography: Chao Zhang
Text: Sam Zhang

