宝格丽,是生而不凡,与众不同的从容气度;是丰饶迷人,耀目璀璨的真我风范;是大胆无畏,鲜明纯粹的绝世典雅。正如宝格丽的slogan一样,活出华丽人生是一种生活态度,享受宝格丽般的精致人生是一种极致追求。
招商局大厦广场,纵览绝佳海景,北临葱郁大南山。作为深圳唯一的山海写字楼,雄踞商圈之列,尊享海上世界商务地标荣耀。臻房汇选址于此,为高端商务办公定下奢华基调。
设计师郑鸿基于客户的品牌发展定位与审美艺识,以宝格丽风格的古典奢华糅和现代主义的精简,通过鲜明浓郁的色彩搭配,舒适且人性化的细节,呈现华丽经典的设计美学,诠释办公新业态,致敬精致迷人的宝格丽精神。
前厅一角,一把随意的休闲椅构设出安静而独立的等候区。光是一味奇妙而诱惑的催化剂,见证格栅的参差错落,旖旎于水滴状通透吊灯,如同午夜巴黎那一杯令人情迷的威士忌,透过光影的变幻,实现精尚定调。
五行之道作为中国朴素的哲学思想,追求宇宙平衡,相济共生 ,木性暖,万物生长,寓意生机勃发。设计师通过现代手法的演绎,实现西方古典与东方文化的碰撞融合,用向上的力量构筑起鲜活灵动的精神境界。
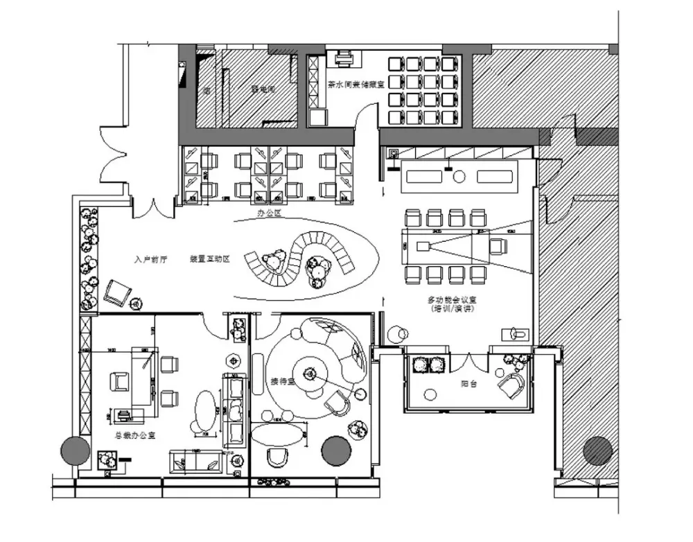
良好的秩序是企业管理中至关重要的一环,设计师将传统的分区规则弱化,通过漏斗状开放性的空间布局,赋予空间招财纳福之意,以包容的姿态欢迎更多的圈层精英,展现了企业的人文关怀与艺术性。
设计师认为办公空间的设计也应该是温暖的、充满关爱的,通过空间的灵活切换为客户创造更多的商业价值。墙面以磁性黑板漆穿插其间,实现视觉上的层次迭代。薄暮紫夹丝玻璃推拉门实现了会议室与办公区的自由切换,开放式空间为来此进行房产咨询的精英人士提供了线下答疑、培训学习的平台,成就双方合作共赢的发展期待。
设计除了考虑到会议培训时的功能性需求,同时也关注了空间的艺术性表达,彰显客户精尚不羁的美学风范。红蕊萌动,清新雅致,樱桃摆件形象生动,大自然无时不刻在赋予人们关于美学的灵感启迪,或绚烂,或无华,或凝练,或简约,交织谱写新的空间艺境。
接待区以弧形沙发围合成互动性强的洽谈状态,金属纹理圆几在光的参与下呈现精致的一面,格栅半掩,意式沙色时尚简约家具,凸显了实用与美学的无声契合。
总裁办揽括超大面海景风光,光线充足,不同的色彩、材质、肌理与功能性承载商务会客与独处休闲的不同场景。黑白灰几何地毯,温暖的体量烘托优精致商务风空间的泰然与稳重,引领精英办公新主张。
后记:“我们希望呈现的设计是符合客户品位的,通过设计创造更加丰盛美好的人生。对于办公空间而言,无论是朝夕相处的同事,还是商务往来的客户,把设计落实到每一个精致的细节,让人眼前一亮,心头一暖,宾至如归,是一件特别有幸福感的事情。”郑鸿提到。
项目名称 | 深圳招商局广场办公室设计
项目地址 | 广东 深圳
设计面积 | 260㎡
项目时间 | 2019年12月
硬装设计 | 鸿艺源设计
软装设计 | 例外软装设计
鸿艺源建筑室内设计坚持“理性设计丰盛人生”的核心理念,为国内外400多位名企高管和社会名流(腾讯、华为、富士康等企业巨头,奥斯卡金像奖得主)实现其关于家的梦想;例外室内设计在地产设计、商业空间设计与办公空间设计方面开疆拓土,为众多高端客户提供优质室内设计服务;例外软装设计坚持有爱有温度的设计实现,为地产、商业与私人客户提供“所见即所得”的顶级软装定制设计服务。
办公空间 现代 自然 绿色

