环顾巴塞罗那的哥特式街区,我们发现很少有直线。这个街区是一个迷宫,狭窄的街道通向意想不到的广场,广场上陈列着各式各样的拱门和弧形结构。它们是加泰罗尼亚文化遗产的保存地,我们在整个地区的景观中都能找到它们——不仅在公共区域,而且在房屋、博物馆、酒店,或者在这里,是一家餐馆。
 
 
本森餐厅最初是由厨师汤姆·格里森(Tom Gleeson)在都柏林创立的。虽然作为一个品牌,他们设计了一个城市和休闲的氛围,在他们的第一家海外分店的开业,餐厅融入了周围哥特式社区和当地酒吧文化的特色,其室内设计。墙壁上的窗帘让人想起典型的邻里酒吧,餐厅两个入口之间的连接走廊让我们想起邻近街道的通道。

 
 
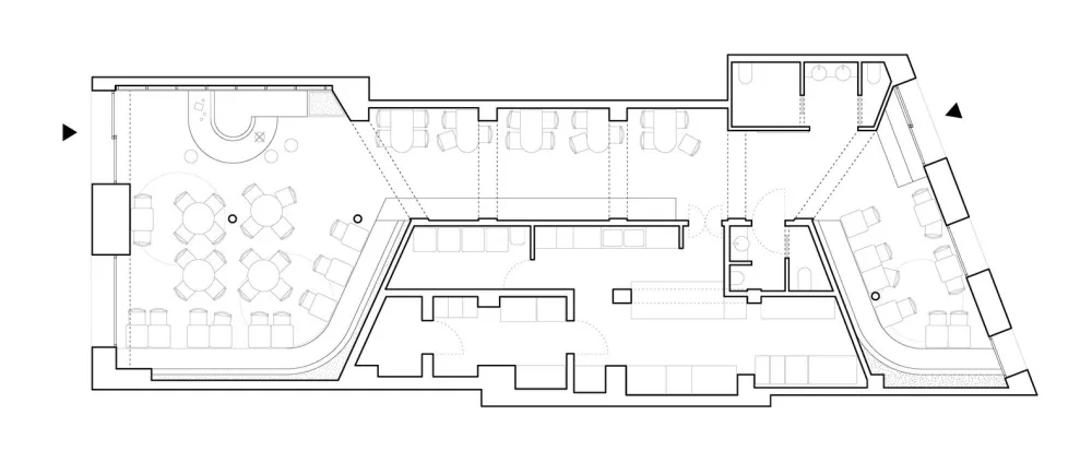
本森餐厅Bunsen Restaurant的核心是一个陶瓷长椅,沿着餐厅的墙壁弯曲(这是我们现代主义传统的一个亮点)。与该地区的其他设计一样,它蜿蜒的形状不是毫无意义的装饰,而是与人体相适应。

 
 
沿着建筑在室内走廊上的加泰罗尼亚拱顶,这些有机的形状与我们在当地建筑和室内设计中找到的城市记忆相呼应。其结果不是一个封闭的餐厅区域,而是一个流动的开放空间——很像它所处的地中海文化。

 
 

 
 

 
 

 
 

 
 

 
 

 
 

 
 
 
 
 
 
 
 
 
 
 
 
 
 
 
 
 
 
 
 
项目位置:西班牙巴塞罗那
设计公司:MESURA
项目名称:Bunsen Restaurant
设计面积:30.0平方米
设计时间:2019年
摄影师:Enric Badrinas


