线性包含弧曲与垂直、水平变化,皆是概念与造型的主要元素。
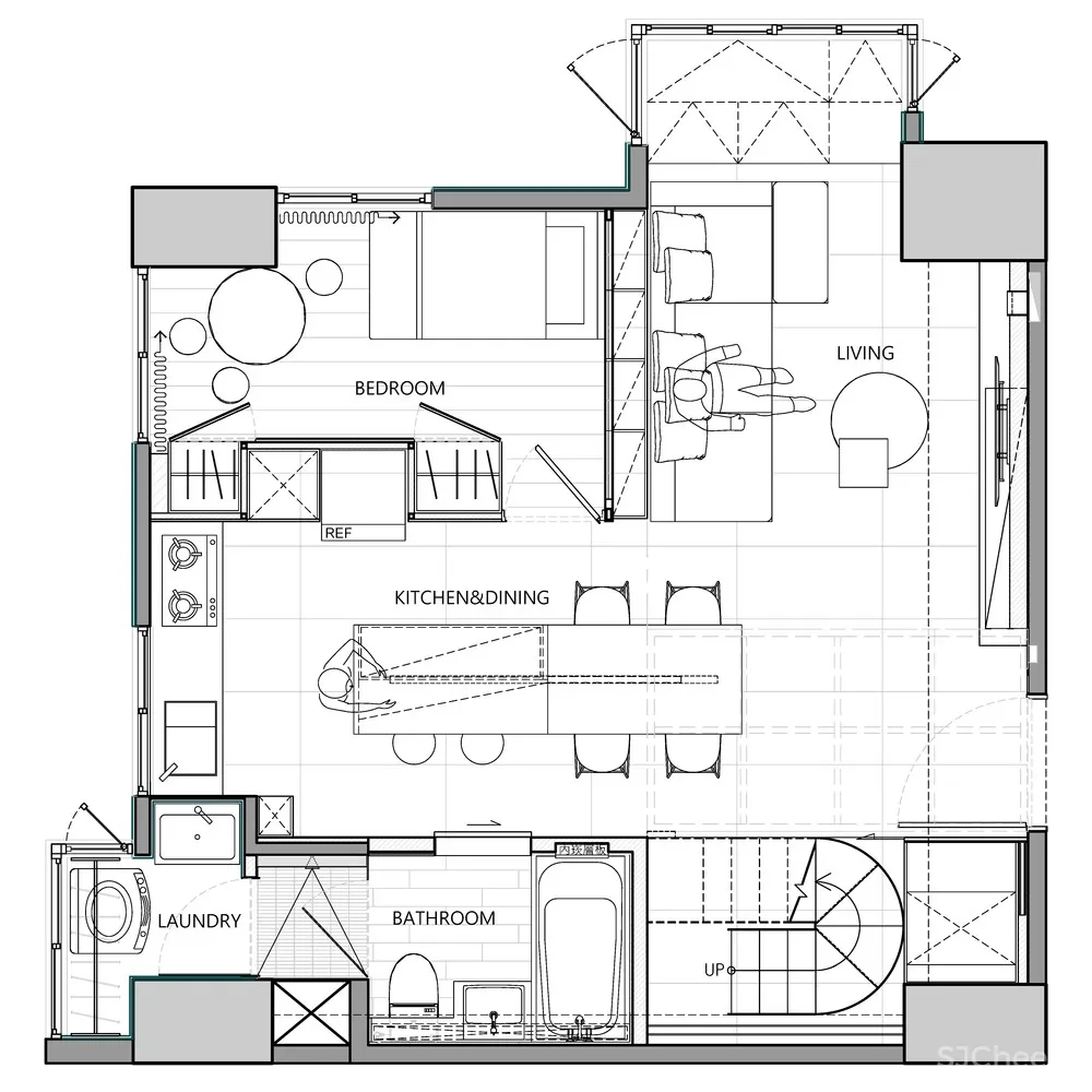
本案基地虽不大,但拥有高度优势,因此垂直向量作为运用。以一座玫瑰金弧形旋梯衔接两个楼面、后衬水平线性的灯光酒柜墙,作为楼层上下界定的公、私领域。
客厅保留垂直挑高状态,搭配强烈的水平线性铁件书墙,与大片落地窗都有延伸景宽的长效,带出赏心悦目的生活亮点。特地将厨房、中岛和餐桌设定为单一轴线,激发生活日常、聚会交谊凝聚的多样性,中岛上方订制金色线性吊灯,与玫瑰金弧曲旋梯呼应成趣。
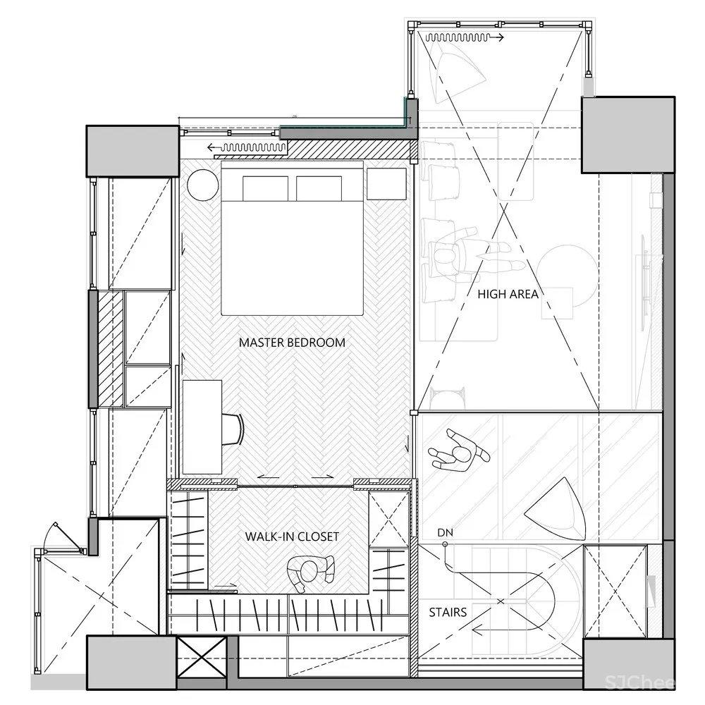
二楼卧室保有高度通透感,楼上、楼下犹如堆叠的大小光盒,人型拼接木地板流露细致与温暖,各式光源在不同时段、角度的交互投射,光影调和的美,似永恒的脉搏,余韵不绝。




室内设计 PENY HSIEH INTERIORS
地址 新北市,台湾
类别 室内设计
建筑面积 84.0 m2
项目年份 2018
摄影师 Kyleyu Photo Stuio


厉害