la Floresta位于巴塞罗那和桑特库加特之间,是一个位于科塞拉山脉的低密度社区。杂乱的房屋星罗棋布地散布在长满植物的山上。在la Floresta,既有土路和沥青路,也有新建的房屋和50年代的建筑。
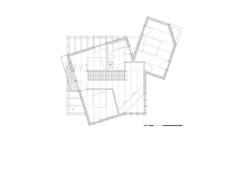
该项目取代了60年代由业主父母自行建造的小型建筑,该建筑因严重的病态而被拆除。该地块有一个陡峭的斜坡,项目使用了旧房子曾经所在的小平台作为基地。该项目分为两层,被设想为一个家庭团聚的空间,一楼有一个开放的空间和三间卧室。
立面上的开口旨在加强住宅与地块和森林的关系。一层相对于一层旋转,定义了一系列天窗和小露台,为附近的树冠留出空间,使其更接近立面。
房子内部的特点是非常简单,结构本身定义了主要的室内装饰,墙壁用的是生木材,地板上的是明亮的木材,通过反射寻找外部成为内部的一部分。
房子是一个木头盒子,上面覆盖着钢板,放在一个简单的混凝土基座上。
该项目的结构由叠层木板组成。这些面板在垂直放置时用作承重墙,在层压杉木梁的帮助下,截面较浅,在水平放置时用作楼板。

在包层方面,承重墙外表面覆盖10cm绝缘。垂直的木条放置在隔热板之间,整个建筑覆盖着泰维克板材。带钢作为omega钢部分的支撑,这些部分支撑着完成立面的镀锌波纹钢板。









位置:西班牙
结构:顾问Eskubi Turro Arquitectes SLP
区域:200.0平方米
项目:年2018
照片:José Hevia

