Casa Forbes是一栋独栋房屋,坐落在Costa d’en Blanes的山坡上,可以俯瞰整个帕尔马湾(Bay of Palma)。巴比伦空中花园建造了一个驯化的自然环境,Casa Forbes在这个看似不可能的地形上提供了必要的水平方向。
当你接近入口时,斜钢板条的外壳会动态地过滤景观。在克服了隐藏在它们后面的风景的沐浴后,视线从你的视线中消失,朝向花园屋顶,第五个立面显示出香气和颜色,与一个铺好的日光浴室相协调,值得一杯卡瓦……每一天!

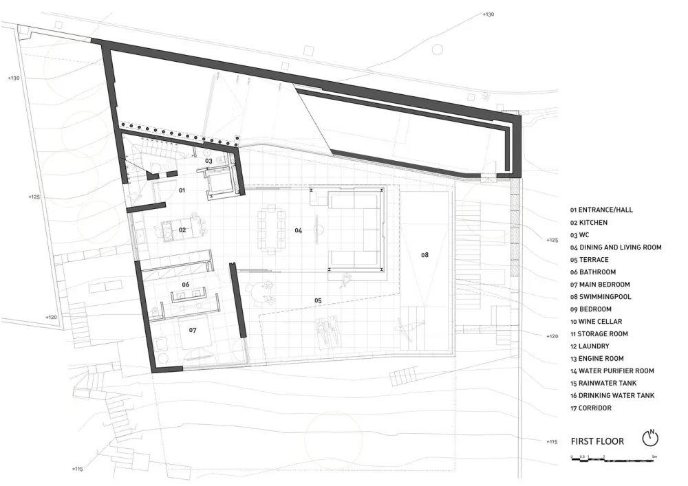
进入房子你要潜水通过楼梯下的主层客厅,餐厅,露台和地中海合并石头周围的平静的节奏:钙质的板石、白母马石de cas busso和墙上的石笼柯尔顿钢圆柱体景观。
作为主人,厨房用一个大橡木岛欢迎您准备和交谈,同时将通往主房间的入口与社交区域略微隔离。就在这一层,业主的房子就在这里,包括他们的房间——浴室——更衣室,在这里,觉醒需要没有眩晕,人们可以在cinemascope里与大海一起沐浴。

在楼层的另一侧,有一个由露台环绕的客厅和餐厅,一个游泳池和一个蔬菜和石头垂直花园。南阳台是享乐主义和裸露主义的,有玻璃栏杆,以避免地平线和房子之间的任何干扰,甚至游泳池的眼睛朝向大海。另一方面,北面的露台享受着这座高达5米高的石质植物巨像给它带来的亲密感,它是一面低语和倾听的墙。
下沉到较低的楼层是由一块挖成螺旋状的平板和一组像水母一样的透镜状灯具完成的。

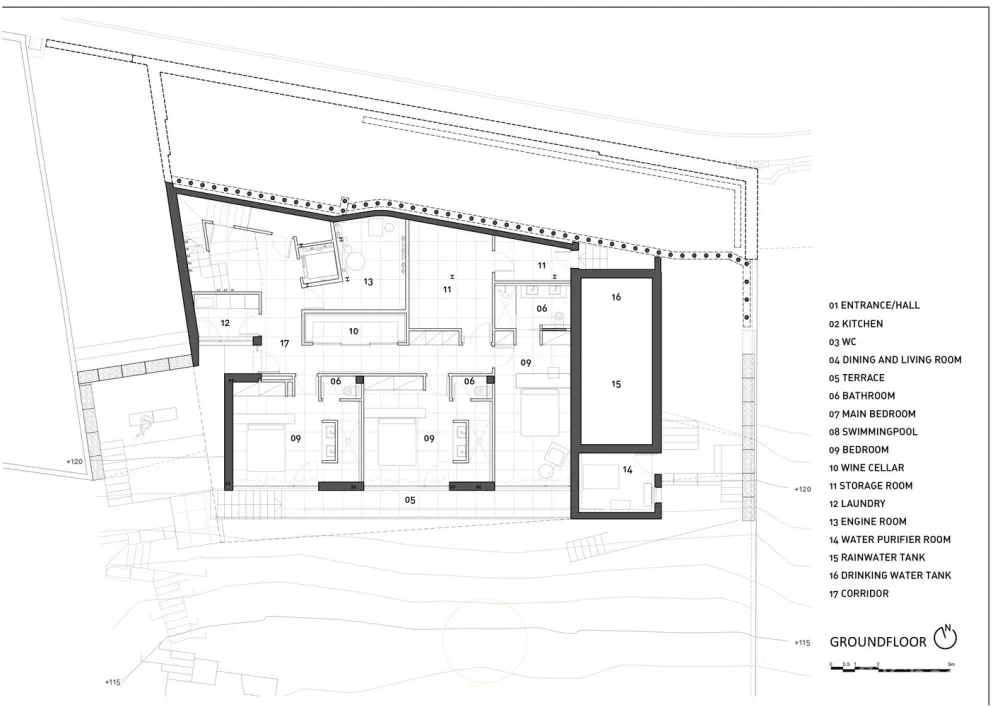
房子的最后一层是主人送给家人和朋友的礼物,三间带阳台的套间卧室,可以让他们从现实中抽象出来,同时他们也可以成为你的客人。在这一层的地下有一个仓库、酒窖(向照片胶卷分发器致敬)、机房和带出口的洗衣房。
外,地中海森林的重新解释,一旦站在这山坡上,来自一组完整的橡树,我们扩展柯尔顿钢楼梯,压实土,排水篾筐利润率与灌木和树一起支持已有的森林的恢复的植被。

这个空中花园建造材料的岛,是由aerotermia钢筋与家庭自动化控制的太阳能电池板和让他们看一看海,游泳在冬天和夏天,触摸控制设施的移动和最重要的是他们觉得马略卡岛的每一个角落。





















地址:西班牙 年份:2018
版权声明:本文内容由用户自行发布上传或投稿由设计芝士代为发布,版权归原作者所有,设计芝士不拥有其著作权,亦不承担相应法律责任。如果您发现本站中有涉嫌抄袭或侵权的内容,请点此提交工单进行举报,一经查实,本站将立刻删除涉嫌侵权内容。

