此项目在坡州出版城市(Bookcity)的二期地块中,隔路面对的是与这出版城市并不协调的乐天奥特莱斯。在这巨大商业建筑的支配之下怎样能够让这小建筑不失存在感,这是最大的课题
因此在道路边上立起墙体来实现内部的安定。此面墙体是混凝土墙,但在墙面上做了书架似的线条来给墙面赋予表情。

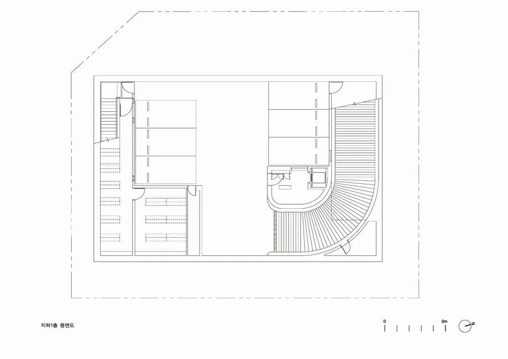
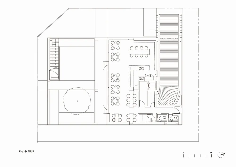
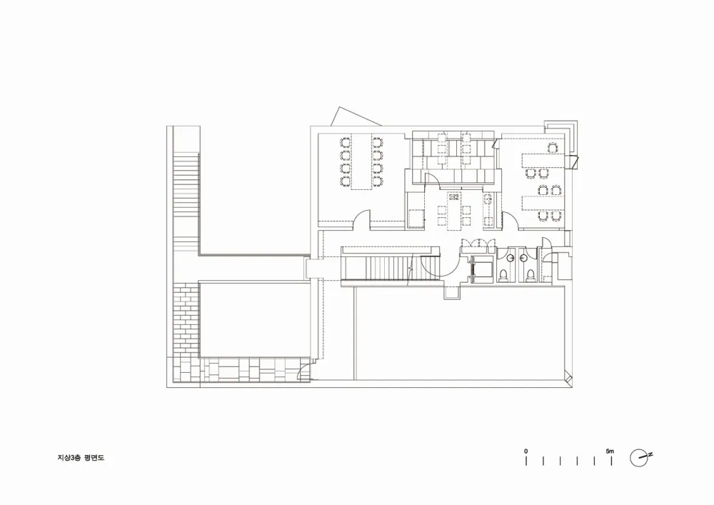
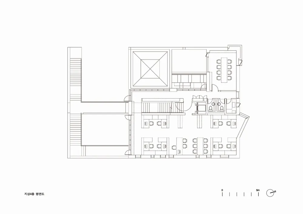
在这墙体里围绕院子布置的建筑体块,虽小但有丰富的内容。面向公共院子的咖啡厅,设计书籍的工作空间及展览和聚会空间,还有特殊形态的会议室,也有小的公园,还有冥想空间。
所有空间各自有着不同的光和暗的条件,空间形态和大小也都不同。所有空间是独立的,都有不同的能量,在其中的回游会是愉快的散步。
外立面的混凝土并不要求精致,只是吩咐能够对齐垂直和水平,表面用普通的胶合板但要尽心尽意去做。这样,施工者的诚实就能呈现在表面上,再用白色颜料轻轻地将这种表情包起来,就成了本真。













































建筑师 : 履露斋 地址 : 626-15, Munbal-dong, 坡州, 京畿道, 韩国 主创建筑师 : 承孝相 建筑面积 : 276.4 平方米 项目年份 : 2016 摄影师 : JongOh Kim
版权声明:本文内容由用户自行发布上传或投稿由设计芝士代为发布,版权归原作者所有,设计芝士不拥有其著作权,亦不承担相应法律责任。如果您发现本站中有涉嫌抄袭或侵权的内容,请点此提交工单进行举报,一经查实,本站将立刻删除涉嫌侵权内容。

