设计师:王凤波设计机构
简介:呼市“狮子熊网咖” 独特的空间 王凤波设计机构
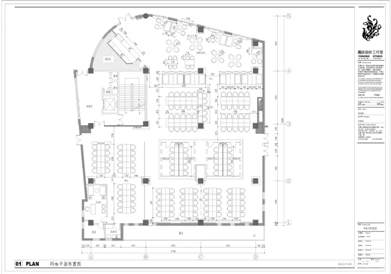
项目名称:狮子熊网咖 项目类型:经营性场所 项目所在地:呼和浩特金游城 项目面积:700平方米 设计单位:北京王凤波装饰设计机构 主案设计师:孟冬 设计说明: 这是北京王凤波装饰设计机构的设计总监孟冬,为内蒙古自治区呼和浩特市的“狮子熊网咖”所做的设计方案。这个高端网咖的主人是两位年轻的业主,他们对这个项目格外的重视:从企业VI系统到室内空间,均由非常专业的设计师来量身定做。他们希望“狮子熊”能与普通网吧有所区别,能够为顾客提供更多元化的服务,以及更加舒适的空间。 设计师根据业主的要求,采用了略带SOHO工业风的室内装饰风格,以红砖搭配大量原木材质来装饰空间,在有效控制造价的同时,让空间显得更具个性和舒适感。 在空间划分上,设计师合理的把700多平米的空间分为了三个区域:门口的咖啡吧、普通散座区及VIP对战包间。咖啡吧做为网咖的一个附属功能,是提供给其他顾客一个休憩、先聊和聚会的空间,并为整个网咖提供饮料及简餐。 设计师在普通散座区的设计上,也大幅度的提高了使用者的舒适度。从人体工程学的角度出发,所有家具的尺寸和材质都是设计师精心搭配的结果。设计师在普通散座区还设置了很多书架,方便顾客在长期上网之余,可借阅读来休息一下。 在VIP对战包间与普通散座区之间,设计师以大面积的玻璃做为两个空间的区分,并以简洁的木梁造型来做为装饰。 纵观整体设计,设计师在满足了业主对于网咖的所有功能性要求之外,还有效的控制了装修的整体造价,并为所有顾客提供了与众不同的上网空间。 ———————————— 欣赏更多精品案例,请登陆官方网站:http://www.wangfengbo.com 或关注官方微信号: wfb96731216
项目名称:狮子熊网咖 项目类型:经营性场所 项目所在地:呼和浩特金游城 项目面积:700平方米 设计单位:北京王凤波装饰设计机构 主案设计师:孟冬 设计说明: 这是北京王凤波装饰设计机构的设计总监孟冬,为内蒙古自治区呼和浩特市的“狮子熊网咖”所做的设计方案。这个高端网咖的主人是两位年轻的业主,他们对这个项目格外的重视:从企业VI系统到室内空间,均由非常专业的设计师来量身定做。他们希望“狮子熊”能与普通网吧有所区别,能够为顾客提供更多元化的服务,以及更加舒适的空间。 设计师根据业主的要求,采用了略带SOHO工业风的室内装饰风格,以红砖搭配大量原木材质来装饰空间,在有效控制造价的同时,让空间显得更具个性和舒适感。 在空间划分上,设计师合理的把700多平米的空间分为了三个区域:门口的咖啡吧、普通散座区及VIP对战包间。咖啡吧做为网咖的一个附属功能,是提供给其他顾客一个休憩、先聊和聚会的空间,并为整个网咖提供饮料及简餐。 设计师在普通散座区的设计上,也大幅度的提高了使用者的舒适度。从人体工程学的角度出发,所有家具的尺寸和材质都是设计师精心搭配的结果。设计师在普通散座区还设置了很多书架,方便顾客在长期上网之余,可借阅读来休息一下。 在VIP对战包间与普通散座区之间,设计师以大面积的玻璃做为两个空间的区分,并以简洁的木梁造型来做为装饰。 纵观整体设计,设计师在满足了业主对于网咖的所有功能性要求之外,还有效的控制了装修的整体造价,并为所有顾客提供了与众不同的上网空间。 ———————————— 欣赏更多精品案例,请登陆官方网站:http://www.wangfengbo.com 或关注官方微信号: wfb96731216
北京样板间设计 酒店设计 咖啡厅设计 会所设计 校

