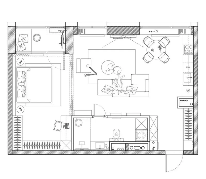
Julia Khabarova用简约的设计手法为一个三口之家设计的私人住宅,面积112㎡,业主要求他们的家简洁通透,客厅要有一个生物壁炉,除了主卧室,还需要一间儿童房、一间客人(和儿童)浴室、一间厨房客厅和一间洗衣房。
设计师将空间划分为3部分:主人房,儿童房和公共区域(厨房,起居室/走廊/洗衣房/浴室)。由于公寓的中央有一个带立管的空间,设计师把它设计成一个立柜的形式。
因此,围绕这个立方体可以方便地将路径分配给子单元和主单元。
在厨房用餐区中,岛台与之相邻的有四个桌子
,这个桌子可以增加其长度,以便6个人可以舒适地共餐。
别致的吊灯将空间点缀的优雅、细致。木饰面的厨柜的地板,丰富空间调性。
客厅的设计更为现代和艺术,大面积窗户光线充足,灰色的窗帘和沙发,将空间融合的恰到好处,简约而不失格调。
在走廊位置设计了一个存储系统,这里可以进入洗衣房间,
把手的垂直线使空间具有一定的节奏感。
洗衣房是封闭的滑动门,如果它被打开,将看到涂在该项目的重点色彩的一个墙-cher石色。
客用浴室位于“立方体”中,该立方体上铺有复杂的蓝灰色阴影的装饰石膏,
强调了形式的整体性。浴室的入口是从走廊进入的,以便尽可能将其隐藏在在客厅之外。
Julia Khabarova
Julia Khabarova在设计中,遵循“从一般到特殊”的原则。因此项目始终基于有效的规划和体积空间解决方案。首先,借助人机工程学,组合的自由度和灵活性。始终强调每个空间的优点:注重自然光,视野和位置。
,由Katerina Kuznetsova设计,
Julia Khabarova可视化,延续了过往现代极简的风格,充分运用极简的体块设计结合现有的空间条件,建立透亮的空间秩序。

