项目名称 | 忱意空间设计办公室
项目地址 | 河南省洛阳市涧西区美景阁7-801室
项目面积 | 180㎡
主创设计师 | 陈程意、沈笑婕
设计师公司 | 忱意空间设计研究室
开始时间 | 2020.05.02
完工时间 | 2020.09.17
视频 | REMEX-潘翔
意:从心音,听从内心的声音
Work is practice
当我们进入一个空间的时候,通常会在第一时间被空间的色彩所环抱,注意力也最容易被空间色彩所吸引。我们的这个空间,是一个纯白色的空间。
令塑造空间升华为塑造人心。
因为这个空间设计师使用的频次最高,也因为设计师需要面对的设计需求最多,最容易被设计之外的事项干扰,所以,纯白色的空间更利于设计师在创作期间保有更高的设计“纯真度”,并随时可在空间里“内观”、“自省”、找到“初心”,产生更多有价值的设计灵感。
虽然是白色的空间,却不是空无一物。
这种时断时续的“蜿蜒”“流动”,并不具有特别固定的符号,而是以一种无常的形态散布在空间之中:反复、流动、变换、起伏,形成一种无常的气韵。
正所谓:“看山是山,看水是水,看山不是山,看水不是水,看山还是山,看水还是水”。
“我”最容易被忘记,也最容易被提起。
空间即是人心,混沌的白,在无常的流动中,架起桥梁,悬浮于水面,倒挂于苍穹,好似“我”一般,看似近在眼前,却又远在天边。世界翻转,天地倒悬,个体在强化的桥梁之上,放弃,消融,最终通向超越的彼岸。
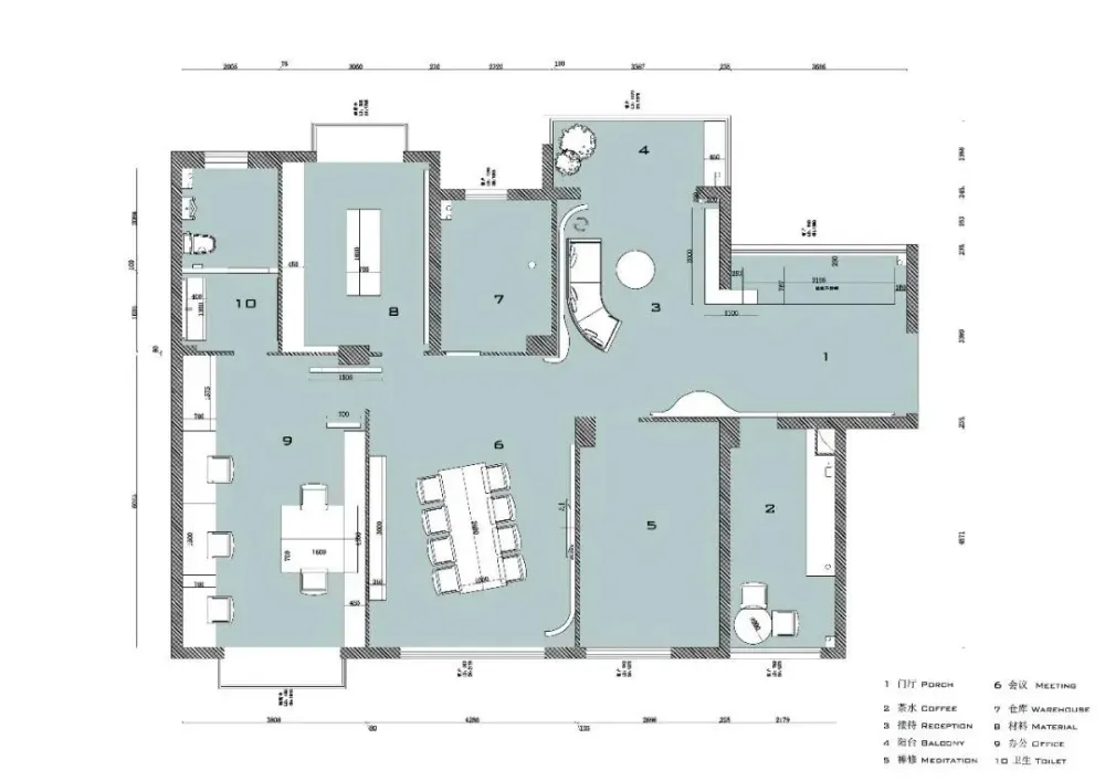
整个空间我们划分成六个部分:
一、进门后的一个艺术装置区域,原本是这个房子的入户花园,现在用一套艺术装置作为进入空间的引领或是心理准备区域,让进入者在这里稍作停留,适当将匆匆赶来的忙碌和焦急与此时此刻的此空间稍作分离。
二、小书吧/小憩区。墙面白色的悬浮书架上,罗列着近些年设计师自己阅读过并觉得值得购买的书籍,还有很多书籍在不断的补充进来。
三、方案汇报区/小型会议室。这里不仅仅是我们约谈设计事项的地方,也是我们设计成果的展示区域。落地窗左右两面墙上,一面以电子显示屏展示我们最新的设计作品图片,另一面墙以书架的形式展示我们的设计作品斩获的最新设计奖项。
五、 材料展示间。材料展示间除了陈列需要用到的各种材料之外,也陈列着我们自己设计的家具样板,艺术装置。
六、 内省/自观室。我们不仅是设计工作者,更是精神思考者;不仅在技术层面实现设计,更在精神层面进行雕琢和引导。
艺术装置《月光与合金》
以波纹不锈钢和落地发光球体作为展示媒介,通过艺术的陈设手法,形成“月落水面”的奇妙幻境。
艺术装置《Urban Decay衰败城市》
用大面积镜面锡纸、白色几何框架、碎镜共同搭建的艺术装置,名为《Urban Decay衰败城市》。
艺术装置画《无序的光影》
利用编织金属色管状材料制作的艺术装置画,安置在阅读区沙发背后的曲面墙上,借助右边窗户投射进来的光线,随着一天中光线位置的变化,装置画中立体的线条投射的影子也在画框内不断变化虚实长短。
艺术装置画《梦与镜中我执》
利用超轻黏土造型的白色大幅装置画,由若干小型体块与曲线造型组合而成。曲线部分意指水流,配合空间内的山水拆解意向;小型体块组合,意指自然界中繁花缤纷的景象。
艺术组画《就这样静静的听》
小型白色组画,在展现黏土在经过不断揉搓、拉伸后的独有肌理的同时,以及其简单的环装呈现于画布中间,仿若一个个形态不同的“耳朵”,用不同的阅历和经验和姿态,聆听着现实世界的一切声音。
使用三宅一生惯用的服装面料——带有皱褶肌理的白色面料,为作画的材料,用特殊手法将面料在画布上呈现不规则而又具有美感的立体凹凸质感,与白色空间融合,却又十分突出。
陈程意-创始人及设计总监
沈笑婕-创始人及软装总监
忱意空间设计研究室 ZEAL.DESIGN
ZEAL.DESIGN忱意设计,于2016年在上海成立,是一个以设计为驱动的团队。团队成员经过多年行业熏陶,拥有深厚的专业功底、丰富的实践经验和卓越的创新精神。
忱意设计一直实践着对当代艺术美学的探索和理解,回归设计的本质,在理性的简明中觅得灵魂的舒张,呈现空间形态的干净凝练与流畅协调,自然而然地生发出生活的格调,凝聚时空意识,让人回归内在的安宁,进入丰厚的精神世界。设计团队不断研发独特的设计风格与个性化标签,在将空间功能极致优化的前提下,通过寻找更具品质感的材质、更具艺术感的色彩搭配方案,为业主带来更多细节上的人文关怀。
2020年 法国双面神全球设计师TOP100
2020年 HDA她设计奖 全国年度最佳软装设计作品TOP10
2020年 40UNDER40中国(河南)设计杰出青年
2020年 “造点”城市空间设计大赛 一等奖
2020年 网易碧桂园“居住在中国”样板间大赛 全国百强
2020年 网易幸福家室内设计大赛 全国40强
2020年 三棵树健康 “室内设计新星大赛” 全国30强
2020年 喜马拉雅设计之巅奖 入围奖
2020年 芒果奖 入围奖
2019年 艾特奖 铜奖
2019年 金蝴蝶奖 金奖
2019年 金堂奖 入围奖

