实践大学B栋建筑为1975年完工之美工大楼,为受现代主义建筑思潮影响,有清晰的梁柱系统、水平开窗及挑空穿透的大厅之三层楼建筑体,经历几次外墙改造及内部装修后,逐渐削弱建筑体中介于内部与外部的连结作用,且失去原有的水平性。
建筑南侧校园空间在这十多年来成为有活力的开放草原,B栋建筑背面却仍维持背向与封闭状态,阻断了人与草原及三棵大树连结的可能性。
2017年,校方欲将此栋建筑改造为一处供国际师生交流、教学及办公的空间。
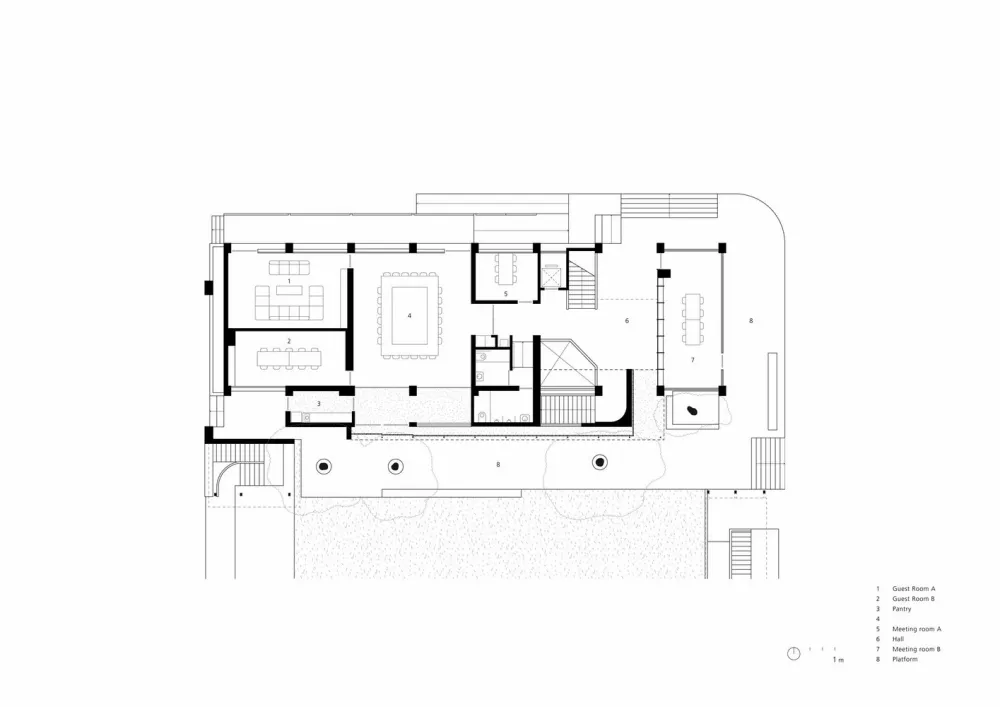
基于新PROGRAM本身隐含之交流与开放性格,在将其植入既有建筑时,顺势打开建筑的背面与侧面之墙面,建立一个连续的内外关系。接着,拓展一楼建筑边界,于外部置入混凝土平台、黑色钢构檐带及金属网幕,人的活动得以依附此而延伸展开,从建筑内部至大树下、草原,形成一处剧场舞台般的水平场域。
于建筑内部持续创造空间的延伸感,置入适度的墙与天花,构成压缩的廊道出入口,以及开放的活动与办公空间,墙体与天花等新元素依顺既有建筑清晰的梁柱构架与水平开窗设置,藉新与旧元素形成的接力或对话关系,重建空间秩序,窗景与光景抵达内部。
B栋建筑的内外关系重整后,内部空间、树、草原、建筑体共同构成属于校园的场所,在内部、边界与角落,注入新的生活。


建筑师 沈庭增建筑师事务所
地址 大直街, 中山区, 台北市, 台湾
类别 更新项目
主创建筑师 沈庭增
建筑面积 440.0 m2
项目年份 2018
摄影师 Studio Millspace

